查看完整案例

收藏

下载

翻译
Architects:Jun Mitsui & Associates Architects,UnSangDong Architects
Area:431m²
Year:2023
Photographs:Namgoong Sun
Lead Architects:Jang Yoongyoo, Shin Changhoon
Lead Team:Jang Yoongyoo, Shin Changhoon
Design Team:Kim Bongkyun, Han Narye, Goh Youngdong, Lee Siyoung
City:Seongbuk District
Country:South Korea
Text description provided by the architects. Although locals adore Odong Park, they have voiced concerns about a number of issues, including dust from an unsightly area where wood was being chopped. We would want to provide a forest library as a public refuge where we may converse with books because the residents needed fresh architectural proposals.
Odong Park is a fascinating urban park featuring a spacious walkway. The walking path in the park, which is made up of decks sloping downhill, can accommodate a range of activities and offers residents leisure and relaxation. The Odong Public Library occupies the beginning position to create room for the path's expansion.
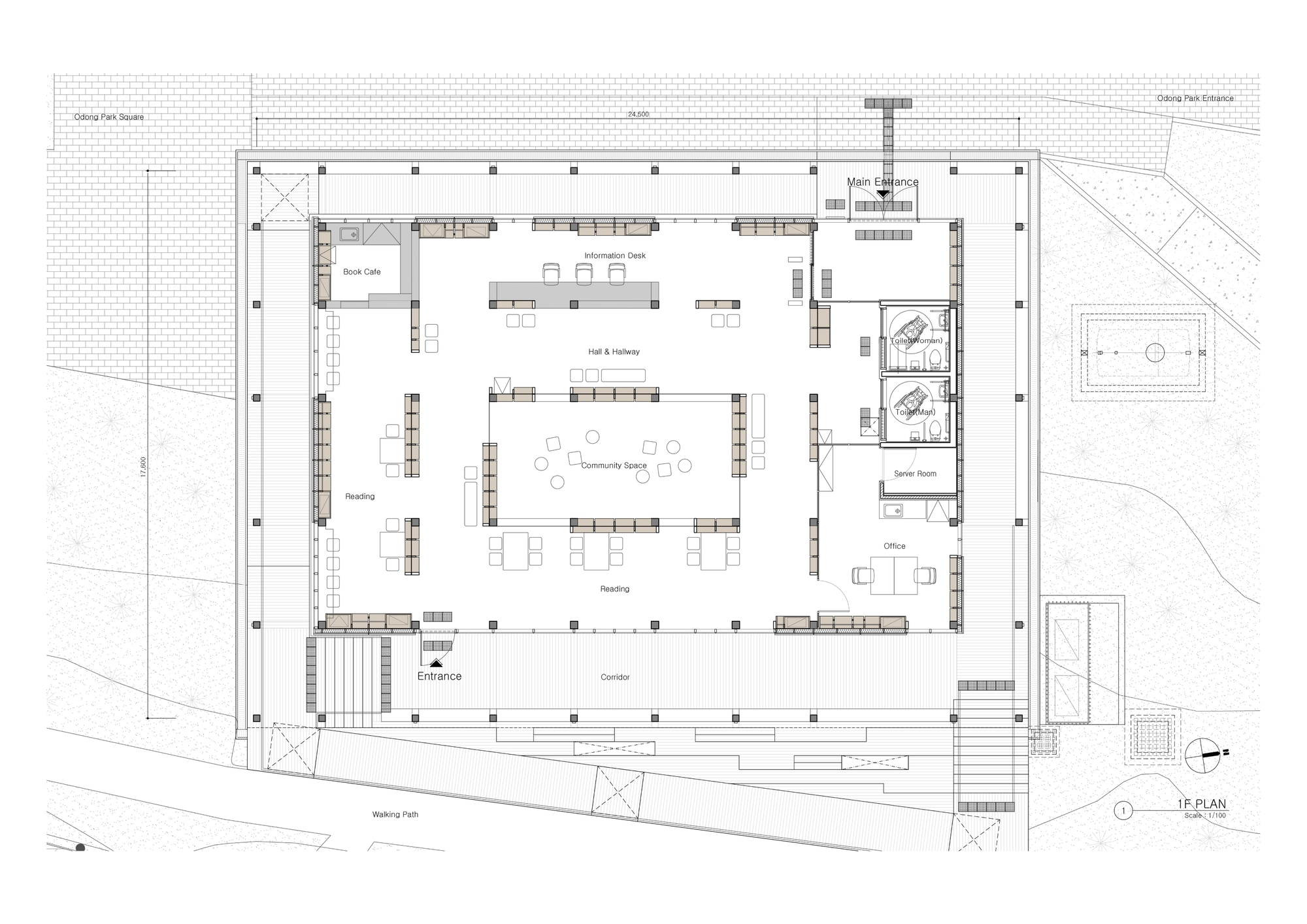
To create an open area, the space's fundamental element was changed into a bookcase wall construction. The fundamental component of the area was changed to a bookcase wall structure in order to create an open area at the bottom. With the central main room at its peak, the spiral ceiling resembles a mountain. Because the foldable roof has varying heights, sunlight can pour through the opening of the roof. It serves as a transparent area within and offers a sense of semi-exterior space.
One feature that divides and distributes a space is the bookshelf wall. The bookshelf wall we suggest comprises a flowing space, communicating with each other and generating a dual maze structure that is adequately autonomous or integrated, whereas the traditional wall had restrictions related to structure and inhibiting spatial communication. The purpose of the bookshelf wall's arrangement and size is to guarantee that the structure's application and program arrangement work together. Stated differently, it achieves a balance between furnishings, area, and framework.
Despite being a small library, people from different social classes who visit feel both purposeful and nomadic in the flowing space. A little room transcends its smallness of scale and becomes a space of multilateral value through an integrated and circular space.
One way to interpret the different overlaps of the bookshelf and linear window frames between the triangular roof frames is as a gap that lets in natural light and the surrounding landscape. The multiple-code maze is a creative area that fosters delight, ingenuity, and innovation in both locals and kids.
Project gallery
Project location
Address:Seongbuk District, South Korea
客服
消息
收藏
下载
最近




























