查看完整案例

收藏

下载
空间是品牌价值呈现的重要载体,从材质选择到肌理形态,塑造品牌价值的高度一致。——波哥
由表及里,由此及彼,LubanEra·Design 创意总监 Bobo 为 matsa 赋予不同维度的商业价值,从共性契合,定义空间内容,到创造场景,传递品牌的内在精神。期望消费者在这个空间中看到的不仅仅是物件及产品的陈列,更能感受到整个空间调性带来的情绪与能量传递。
From the outside to the inside, Bobo, the creative director of LubanEra·Design, endows matsa with different dimensions of commercial value, from the common fit, to define the space content, to create the scene, and transmit the internal spirit of the brand. What consumers can see in this space is not only the display of objects and products, but also the emotion and energy transmission brought by the tonality of the whole space.
鲁班精神· 匠心营造 · 专注极致
Lu Ban Spirit·It’s a work of art·Focused to the Max
路漫漫其修远兮,吾将上下而求索。
▲轴侧分解图
不追求所谓的设计风格,只探寻美学给空间创造的商业价值。这是 LubanEra·Design 创始人波哥的设计创新之道,此案着重开放性与功能的融会贯通,用简练的现代线条,重构现代空间,空间多样层次,赋予空间轻松、开放、包容、灵动感,实现物质与意识的张力平衡。
We do not pursue the so-called design style, but only explore the commercial value created by aesthetics for space. This is the way of Design innovation of LubanEra·Design founder Boge, which focuses on the integration of openness and function, uses simple modern lines to reconstruct modern space, gives space a variety of levels, relaxed, open, inclusive and dynamic, and realizes the tension balance between matter and consciousness.
褪去浮华 Fade the glamour 少即是多,趋于本质美,文化、服饰、艺术化的展馆,给予更多心灵上的守护。在空间里,通过简洁淳朴的色彩语言,缓缓叙述历经沧桑与时间的洗礼,一切褪去浮华,展现本真的原始状态,风格没有定位,设计呈现品质,宽大处体现温和,细微处看见力量。
Less is more, tends to the essence of beauty, culture, clothing, art pavilion, give more spiritual protection. In the space, through the simple and simple color language, slowly narrated after the vicissitudes of life and the baptism of time, all faded flashy, show the original state, style has no positioning, the design presents quality, the wide reflects mild, the subtle see power.
叙事体验 Narrative experience 作为饱含品牌基因的独特场域,这里更延展着想象之外的丰富可能、更多衍生的叙事体验、更多独一无二的先锋灵魂。交替艺术与现实的碰撞,释放着挣脱风格束缚后的另一种新奇可能。
As a unique field full of brand genes, it extends the rich possibilities beyond imagination, more derivative narrative experience, and more unique pioneer souls. The collision of alternate art and reality releases another novel possibility after breaking away from the shackles of style.
新的共振 New resonance
从不同角度探索事物,发散认知,以平静的方式,阐述内在诸多复杂的可能性,让空间更具考究,建立“秩序”的变化。人,物与空间形成感官上的连通,从而让服装与空间产生新的共振。
Explore things from different angles, divergent cognition, in a calm way, elaborate the internal many complex possibilities, make the space more elegant, establish “order” changes. People, things and space form a sensory connection, so that clothing and space have a new resonance.
感官末梢
Sensory endings
色彩在空间的探索与点缀,似有章法,却没有规则,牵动着感官的末梢,生动的晕染着空间,让空间产生距离,以此探讨物与物之间的关系。内部在适量留白的空间基底中,藏着一抹神秘的“藕粉色”,通过色彩上的反差给消费者留下深刻的印象,让空间拥有了生命之力。
The exploration and embellishment of color in space seems to have rules, but there is no rule, affecting the sensory ends, vivid staining the space, making the space produce distance, in order to explore the relationship between things. Inside, in the space base of the right amount of white space, there is a mysterious “lotus pink”, which leaves a deep impression on consumers through the contrast of colors, so that the space has the power of life.
艺术与现实
Art and Reality
强调功能性、简约性和艺术性,纯净、简洁、线条优雅耐看,通过色彩、材质与周围的环境相呼应,艺术与现实相结合,形成一个和谐统一的整体,从而增添空间的艺术气息。
Emphasis on functionality, simplicity and artistry, pure, concise, elegant lines and durable, through color, material and the surrounding environment echo, art and reality combined to form a harmonious and unified whole, thereby adding the artistic atmosphere of the space.
感官延伸
Sensory extension
线条语汇阐述整体气质,元素的叠加牵引出序列感与延伸性,贯穿整个建筑物,连接所有的空间,创造一个平和的节奏。不同元素的对话、融合,让空间展现丰富的质感和细腻的层次,为消费者提供感官延伸的思想空地,使其所见所感唯有空间及产品本身。
The line vocabulary illustrates the overall temperament, and the superposition of elements draws a sense of sequence and extensibility, running through the entire building, connecting all Spaces and creating a peaceful rhythm. The dialogue and integration of different elements make the space show rich texture and delicate level, providing consumers with an open space for sensory extension, so that what they see and feel is only the space and the product itself.
自我呈现 Self presentation 审视材质、色彩作用于空间所产生的反差、融合、聚焦、扩延等影响,并非为了纯粹视觉效应,更重要的是在此之上创造品牌与艺术的语言共通,创造多元多维的情感语境,进而实现品牌对于外界的自我呈现与宣言。
Examining the contrast, fusion, focus, extension and other influences caused by materials and colors on space is not for pure visual effects, but more importantly, to create a common language of brand and art on this, create a multi-dimensional emotional context, and then realize the brand’s self-presentation and declaration to the outside world.
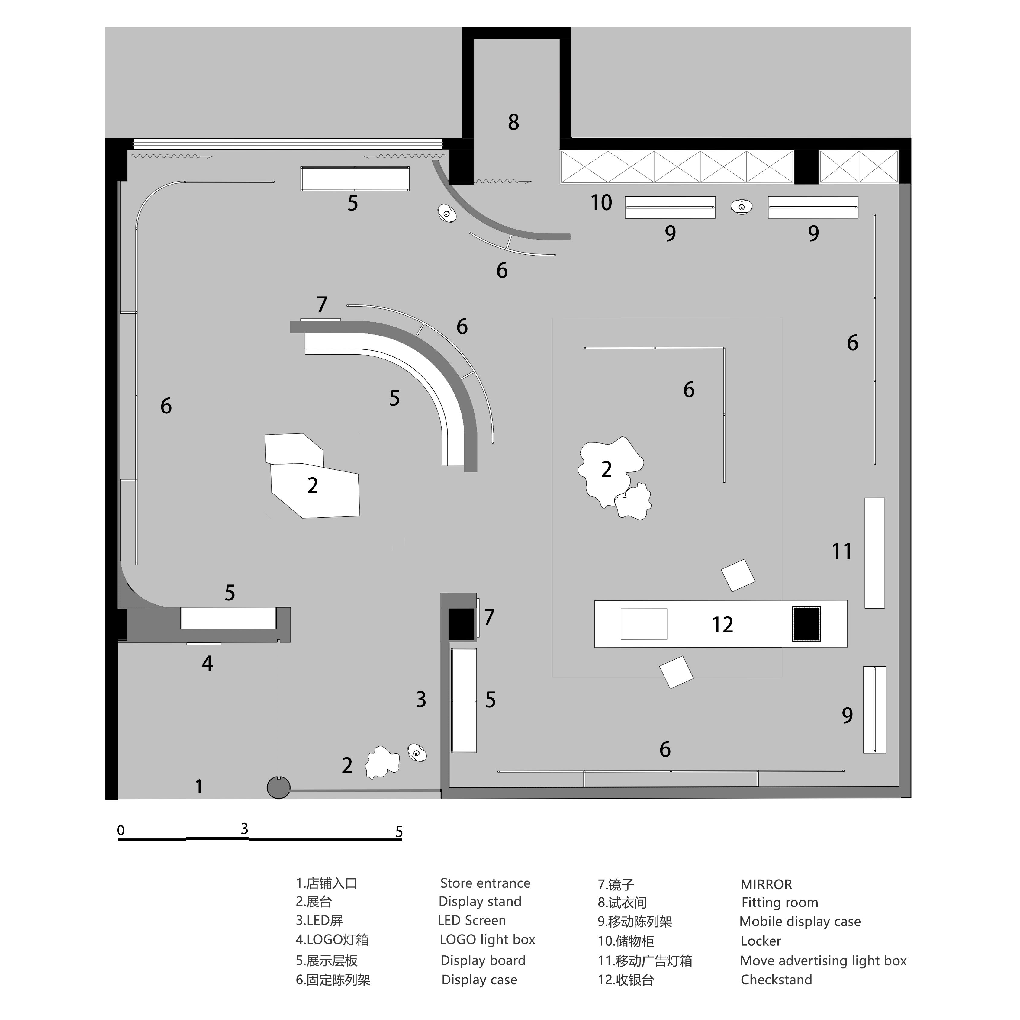
▲平面图,Plan
▲平面图,Plan
项目信息——
项目名称:MATSA 麦沙
项目地址:中国·深圳
项目类型:商业空间
项目面积:150㎡
完工时间:2023.07
设计公司:LubanEra·Design(鲁班时代建筑装饰设计)
创意总监:陈洪波
设计团队:甘澳,江毅锋
空间摄影:聂晓聪
客服
消息
收藏
下载
最近



































