查看完整案例

收藏

下载

翻译
Kings Crown Real Estate - Office Design
Location: Dubai Silicon Oasis
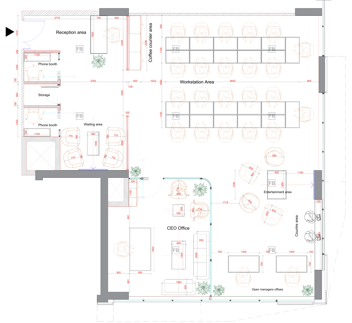
This modern office design and fit-out project at Dubai Silicon Oasis encompasses a comprehensive and thoughtfully planned workspace:
Reception Area: Welcoming entrance with a side waiting area that doubles as a small meeting space.
Private Phone Booths: Two secluded phone booths for privacy.
Workstation Area: Accommodates 22 employees, designed for maximum efficiency and comfort.
Entertainment Area: A space dedicated to relaxation and team bonding.
Manager Desks: Two strategically placed desks in the open space for easy accessibility.
CEO Office: A private, well-appointed office for the CEO.
Open Workspace
The design theme is modern, featuring a palette of green, white, and beige, complemented by grey carpet flooring. The office benefits from abundant natural light, thanks to windows on two sides, creating a beautiful and inviting work environment.
This blend of aesthetics and functionality ensures a productive and pleasant atmosphere for all employees.
Reception and Waiting Area
CEO Office
This project in Dubai Silicon Oasis seamlessly blends modern design with functional workspaces. The combination of natural light, contemporary color schemes, and thoughtful layout creates an inspiring and productive environment for all team members. This office space not only meets the practical needs of a busy workplace but also enhances the overall employee experience, fostering creativity and collaboration.
Site Pictures
客服
消息
收藏
下载
最近






















