查看完整案例

收藏

下载

翻译
Century Bank Brokers - Dubai Office Design
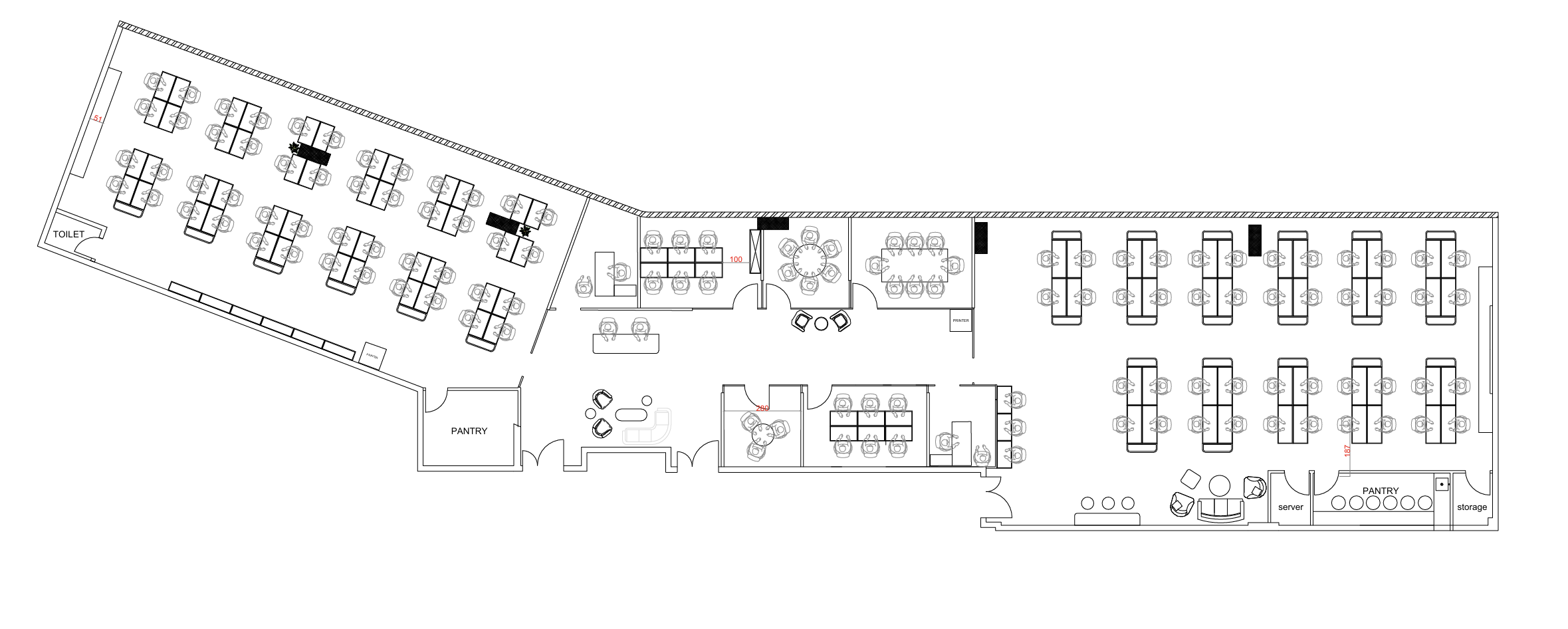
This office design project for Century Bank Brokers focuses on creating a welcoming and productive work environment with warm wood elements and ample natural lighting. The office layout includes:
Workspaces: Two expansive workspaces accommodating a total of 95 employees, designed for efficiency and collaboration.
Marketing Team Rooms: Two dedicated rooms for the marketing team, each fitting 6 employees, fostering focused teamwork.
Managers' Rooms: Two private rooms for managers, ensuring a quiet and functional space for leadership activities.
Meeting Rooms: Three versatile meeting rooms equipped to handle various types of meetings and collaborative sessions.
Reception and Waiting Area: A welcoming reception area with a comfortable waiting space for clients and visitors.
Open Workspace
The design emphasizes a harmonious blend of warm wood tones and natural lighting, contributing to a pleasant and inspiring atmosphere. This office environment is tailored to enhance productivity while providing a comfortable and welcoming space for both employees and visitors.
Comfort and Luxury Seating
This project for Century Bank Brokers highlights the importance of a well-designed workspace. The careful integration of warm wood elements, strategic lighting, and functional layouts creates a productive and inviting environment. This office design not only supports the operational needs of the company but also fosters a positive and motivating atmosphere for all its occupants.
客服
消息
收藏
下载
最近











