查看完整案例

收藏

下载
“此⼭”是⼀家餐饮公司,旗下有多家餐饮品牌,办公室位于西溪湿地附近⼀个办公园区的建筑顶层。公司主打低调内敛、沉静⽽理性的氛围,我们希望在设计中通过材料对话、动线布局、虚实空间、室内外切换、景观⾃然的引⼊以及⽼家具的展示,润物⽆声地体现品牌调性和设计理念。
CISHAN, a catering company with multiple brands, boasts an office on the top floor of a building in a business park near Xixi Wetland. The company prides itself on a low-key, restrained, serene, and rational atmosphere. Our design subtly reflects the brand ethos through thoughtful material selection, strategic spatial layouts, the interplay of solid and void spaces, seamless indoor-outdoor transitions, the integration of natural landscapes, and the display of antique furniture.
▼室内景观概览,interior landscape overview© 张大齐
⼯作是⽣活的⼀部分,现今办公空间中的温度和⽣活⽓息是不容忽视的要素。于是我们在常规办公空间设计的基础上,整合多元化空间以满⾜不同需求,将办公空间局部⽣活化,让⽇常⼯作的环境更舒适宜⼈。空间动线划分动与静,分别对应公共交流和内部办公的使⽤路径。
Work is a part of life, and in contemporary workspaces, a warm and homely ambiance is crucial. Beyond conventional office design, we integrate diversified spaces to meet various needs, partially domesticating the office space to make the daily work environment more comfortable and pleasant. We have divided space circulations into dynamic and static paths to accommodate public communication and internal office work.
▼从入口接待区望向开放厨房,view from entrance area towards the open kitchen© 张大齐
原建筑布局为⽅正规整的柱⽹结构,我们希望打造⼀个可与外界环境⾃由切换⼜融合的开放办公环境,室内空间与户外⾃然结合,同时保留局部空间的私密性。整体空间结构采⽤虚实结合,我们在柱⽹中⼼围合出⼀个相对“实体”的中⼼岛区域,容纳⼩会议室、开放厨房和影印储藏功能。这座多功能的中⼼岛作为公共与私密的过渡,区隔从接待交流的公共区进⼊相对私密安静的办公区。柱⼦并未完全包裹⽽是将其局部露出,弱化中⼼岛的封闭体量感,让空间流动起来。
The original building layout features a square and regular column grid structure. Our goal was to create an open office environment that seamlessly integrates with the external environment while maintaining areas of privacy. The overall spatial structure combines solid and void elements. We enclosed a relatively “solid” central island within the column grid to house small conference rooms, an open kitchen, and photocopying storage. This multi-functional central island serves as a transition between public and private spaces, separating the reception and communication area from the private office area. Partially exposed columns soften the enclosed volume of the central island, allowing the space to flow.
▼“实体”的中心岛区域,a relatively “solid” central island© 张大齐
▼会议室,meeting room© 张大齐
▼办公区一瞥,a glimpse at the workspace© 张大齐
与实体中心岛比邻对景的是一处补充采光的景观“虚”空间,这也是办公空间中另一个核心重点。我们希望为封闭的室内办公空间打造一处连通户外的自然之地,于是借助顶层空间优势,将建筑进行局部改造,设计增加下沉庭院,引入采光天井,将室内空间打开与楼顶露台相连。天井里一高一低的树池可适配种植不同根系品种的植物,以丰富景观。不论从电梯厅入口的“客厅”接待区,透过开放式厨房,还是从内部开放办公区、通往卫生间的过道,都能望见这一片对景庭院,从室内即可感受户外气息,室外景观与室内空间既彼此独立又巧妙融合。
Adjacent to the central island is a landscape void space to enhance lighting, serving as another core element in the office. Leveraging the top-floor advantage, we designed a sunken courtyard with a skylight connecting the indoor space to the rooftop terrace. The courtyard features tree pits accommodating various plant root systems, enriching the landscape. From the “living room” reception area, the open kitchen, the internal office area, and the aisle leading to the bathroom, one can see this courtyard, feeling the outdoor atmosphere from the interior. The outdoor landscape and indoor space are independent yet intricately connected.
▼景观“虚”空间,a landscape void space© 张大齐
▼会客室概览,guest dinning room© 张大齐
▼天井树池,a landscape void space© 张大齐
▼一角, corner© 张大齐
⾃然之地承载对景、采光、分隔和空间切换的功能,同时也连接了开放办公空间与会客室。进入会客室需要穿过庭院,由一个灰空间连廊相接,形成一个由室内到室外,再步入室内的独特体验。天井的墙体设计巧思在于其延伸至楼顶露台,不仅串联上下空间,也为会客室留下一处庭院景观框景,保留了私密性。从公司内部楼梯行至楼顶露台则来到完全的室外空间,我们并未选用成品户外家具,而是用混凝土定制浇筑成烤火炉、矮台、座椅和树池,背靠钢板挡墙,辅以绿植点缀,作为公司活动场所,创造了一个既适合自然休闲又可工作交流的多功能户外空间。
This natural area provides views, lighting, partitioning, and spatial transitions, while also connecting the open office space and the meeting room. To access the meeting room, one must pass through the courtyard via a transitional gray space corridor, offering a unique experience of moving from indoors to outdoors and back. The patio wall design ingeniously extends to the roof terrace, connecting upper and lower spaces while creating a courtyard landscape frame for the reception room, maintaining privacy. Internal company stairs lead to the rooftop terrace, a completely outdoor space. Instead of using ready-made outdoor furniture, we custom-cast concrete into a fireplace, low tables, seats, and tree pits, backed by steel plate retaining walls and embellished with greenery, creating a multifunctional outdoor area suitable for relaxation and work-related gatherings.
▼室外天台,outdoor terrace© 张大齐
▼天台细部,terrace details© 张大齐
整个办公空间采⽤⽆吊顶设计,直接露出原有梁底结构,局部配以筒灯精准照明。开放办公区的吊灯可上下发光,微暖的灯光营造柔和氛围。室内材料简约克制,以⽊材、艺术涂料和⽔泥⾃流平为主。公区开放厨房和茶⽔空间⽤⿊⾊⽊板包裹环绕,⾯向开放办公空间则为⿊框玻璃。我们⽤同样的⽊板材料将岛台对⾯管井包裹起来,做成半围合⻓椅空间,⼈们可在此休息洽谈并与开放厨房形成互动。开放办公空间的沿窗柜⼦也沿⽤⿊⾊⽊板,与办公家具结合,不同材质间的对话,冷静⽽克制。
The entire office space features a ceiling-free design, exposing the original beam structure, with spotlights providing precise lighting where needed. Pendant lights in the open office area offer both upward and downward illumination, creating a warm and inviting atmosphere. Indoor materials are simple and restrained, primarily using wood, artistic paint, and self-leveling cement. The public area’s open kitchen and tea space are wrapped in black wood panels, with black-framed glass facing the open office space. The same wood panel material encloses the pipe shaft opposite the island, creating a semi-enclosed long bench space for resting, conversing, and interacting with the open kitchen. Window-side cabinets in the open office area also use black wood panels, integrated with office furniture, establishing a calm and restrained dialogue between different materials.
▼办公区概览,workspace overview© 张大齐
▼家具与材质细部,furniture and material details© 张大齐
空间中偏柔和软性的元素来自业主所喜爱收藏的古董老家具,入口接待区的小凳茶几、会客室的茶桌凳椅、光井过道旁的边桌,还有开放办公区尽头的一把明椅以及一组中药抽屉柜子,都不约而同地中和了办公室的理性和硬朗。在此,办公空间与生活老家具的结合营造了充满禅意的氛围,沉静中带有一丝温情,也于细微处传递了这家公司内敛沉静的形象和气质。
Soft elements in the space come from the owner’s antique furniture collection. The small stool and coffee table in the reception area, the tea table and chairs in the meeting room, the side table next to the light well corridor, and a Ming chair and a set of Chinese medicine drawers at the end of the open office area subtly balance the office’s rational and rigid elements. This combination of office space and antique furniture creates a Zen-like atmosphere, serene with a touch of warmth. Extending the company’s brand ethos, its restaurant ‘Shy Table’—which serves modern Sino-Western fusion cuisine—is located on the ground floor of the building. From the top-floor office to the ground-floor restaurant, the design consistently conveys the brand’s restrained and serene image and character, down to the finest details.
▼古董⽼家具,antique furniture collection© 张大齐
▼明椅以中药抽屉柜⼦,terrace details© 张大齐
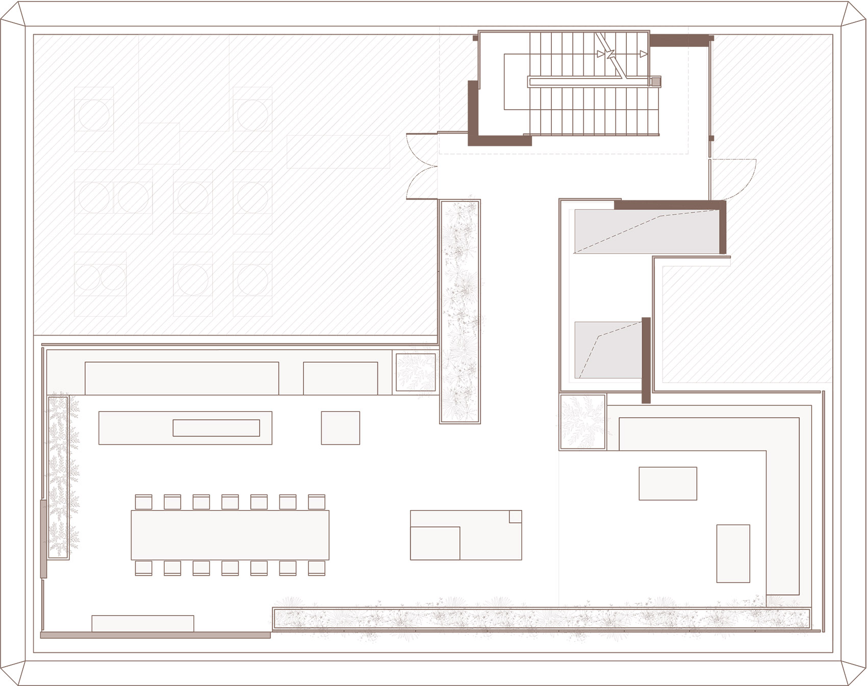
▼平面图,floor plan©八荒设计
▼天台平面图,roof terrace plan©八荒设计
业主:杭州此⼭酒店管理有限公司
项⽬地点:杭州云起中⼼
项⽬类型:办公
项⽬规模:300 平⽅⽶(室内),190 平⽅⽶(露台)
设计时间:2022 年
建成时间:2024 年 2 ⽉
主持建筑师:董雪莲, Matteo Piotti, Andrea Maira
设计团队:⼋荒设计团队
设计范围:建筑改造,室内设计,景观设计
光学顾问:⼗⾆(上海)照明设计有限公司
声学顾问:上海德洛声学科技有限公司
施⼯单位:上海翼楠建筑⼯程有限公司
主要材料:⽊材、混凝⼟、⽔泥⾃流平、花岗岩、⽯灰岩、玻璃、艺术涂料
品牌:B&B Italia, Knoll, Slamp, Geberit, Axor
摄影:张大齐
Project Information
Client: CISHAN
Location: Hangzhou, China
Project Type: Office
Design Scope: Architecture renovation, Interior, Landscape
Project Area: 300 sqm (Interior), 190 sqm (Rooftop)
Design Start: 2022
Completion: February 2024
Chief Architects: Shirley Dong, Matteo Piotti, Andrea Maira
Design Team: STUDIO8 Architects
Lighting Consultant: Unolai Lighting Design & Associates
Acoustic Consultant: Shanghai Delhom Acoustics Science & Technology Consulting Co., Ltd
Construction: Shanghai Yinan Construction Engineering Co., Ltd
Main Materials: Wood, Concrete, Self-leveling Cement, Granite, Limestone, Glass, Art Paint
Brands: B&B Italia, Knoll, Slamp, Geberit, Axor
Photography: Sven Zhang
客服
消息
收藏
下载
最近




























