查看完整案例

收藏

下载
「生活因设计更美」Life is better because of design
说在前面:
它所在的建筑具有浪漫主义风格,别具一格的色彩搭配。
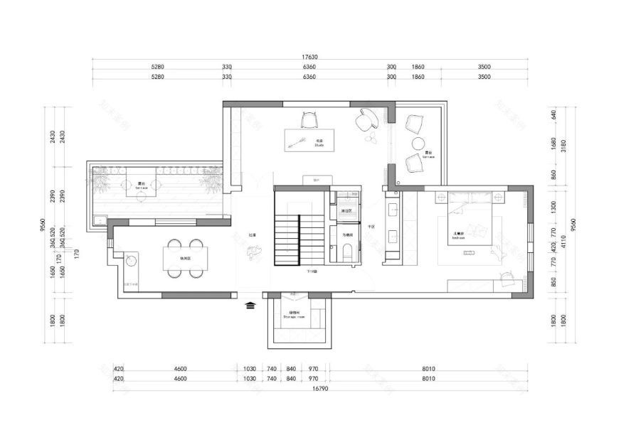
▲户型图
入户空间
ENTRANCE SPACE
生活的美,往往藏匿在不经意间,或是简约的配色,或是光影的表达。
The beauty of life is often hidden inadvertently, or in simple colors, or in the expression of light and shadow.
客厅
LIVING ROOM
用最朴素的材料:原木白墙,让空间在岁月的白驹过隙中散发着浥浥清香。
The most simple material: log white walls, let the space exude a fragrance in the gap between the white horses.
餐厅
RESTAURANT
繁忙的日子里,归家即浸透在自然中,无丝竹之乱耳,无案牍之劳形。
In the busy days, when I return home, I am soaked in nature, without the chaos of silk and bamboo, and there is no case of labor.
中西厨
KITCHEN
生活的纯粹,一半是日复平淡,一半是历久弥新。
The purity of life is half dull day by day, and half timeless.
主卧
MASTER BEDROOM
松弛的氛围感让时间放慢了脚步,是一种自带电影滤镜的空间美学,微醺着自然的静谧与安逸。
he relaxed atmosphere slows down time, and it is a kind of spatial aesthetics with its own movie filter, slightly drunk with natural tranquility and comfort.ELDER BEDROOM
沉稳舒适的色调诠释了优雅与魅力的高级感,更带来了一种落日余晖般的温暖与治愈,慵懒且美好。
The calm and comfortable color interprets the sense of elegance and charm, and brings a kind of sunset-like warmth and healing, lazy and beautiful.
书房
STUDY
入神提笔间,书页和树叶随风沙沙作响,不敢想象那是何等惬意!
When I was in the middle of the pen, the pages and leaves rustled in the wind, and I couldnt imagine how comfortable it was!
休闲区
RELAXATION AREA
沉浸于这份宁静与舒适的氛围之中,仿佛被温暖的怀抱轻轻包裹。
Soak up the tranquility and comfort of the atmosphere, as if you are gently wrapped in a warm embrace.
儿童房 CHILDRENS BEDROOM
以温柔的色调、随性的布局以及浪漫的韵味,为孩子编织了一个梦幻而温馨的童话世界。
With gentle tones, casual layout and romantic charm, it weaves a dreamy and warm fairy tale world for children.
卫生间
TOILET
一池热汤,忘记了一天的疲倦,享受片刻宁静的幽远。
A pool of hot soup, forget the tiredness of the day, and enjoy a moment of tranquility.
关于我们
项目名称 /西庭网球俱乐部
Project Name / Xi Tin Wang Qiu Ju Le Bu
项目地址 / 闵行
Project address / Min Hang
主案设计师 / 侯敏
Chief Designer / Hou Min
面积 /319m²
Design area /319m²
户型 / 复式
Door Model / Penthouse
/ 18616273955
客服
消息
收藏
下载
最近



































