查看完整案例

收藏

下载
在微醺的空间醒来,摇曳在老上海的呢喃。一杯煮酒醉出喜悦,一道微光印出心甜。岁月静好,化春为安。留声的指针唱着远去夜,老上海腔调敲打着火焰。寻楼而上捧起月色,指尖抖落一杯茶颜。
本项目为毛坯交底,业主偶尔度假使用,故设计的笔触将个人喜好进行最大化呈现,以老上海的经典元素为灵感,融入当代设计手法,经典与现代交织,过往与未来并存,由此开启一场关于时光与记忆的美好旅程。
01 ART-LIFE 艺术与生活
步入客厅,墙面由米色与绿色的艺术漆打底,空间中透着清新的自然气息,时光仿佛被温柔地拉长。
布艺沙发与木质茶几围合一方悠然天地,而那副油画悬挂于墙面正中,带着旧时光的余温,唤醒了对往昔的绵绵思绪。
P. 01
P. 02
P. 03
老式的唱片机低吟浅唱,悠扬的旋律如丝如缕,静静流淌。音符跳跃间,老上海街头的繁华与喧闹似火焰般鲜活重现,艺术与生活于此无声中交融,不禁让人沉醉其间。
P. 04
P. 05
空间的底色延续至餐厨区域,厨房入口移至光影交错处,视野拓宽,起居动线更为便捷灵活。桌由自然之木雕琢而成,其温润的质感在柔和的灯光下为整体增添了诸多温暖气息。开放式布局下,厨房与餐厅、客厅无缝衔接,每一个角落都弥漫着食物的香气与家的欢声笑语。
P. 06
P. 07
P. 08
02STRUCTURE
AESTHETICS
结构与美学
楼梯,作为链接上下层的纽带,未改变原有的位置,而是运用设计的巧思赋予其全新的结构美感。摒弃传统扶手的单调与束缚,以艺术造型的玻璃及温润的木饰面板结合呈现,光与影自由穿梭,为空间带来更多的诗意流动。
P. 09 台阶之下,隐藏式灯带缓缓亮起,如夜空中的星光闪耀,行走之间,愈感空间的精致与动人。
P. 10
P.11 为进一步提升空间的层次感与私密性,于楼梯的起始之处精心融入屏风设计,巧妙地隔绝了外界的喧嚣与纷扰,使得步入餐厅与楼梯之前,亦能收获一段静谧而充满期待的过渡时光。
P. 12
P. 13
P. 14
• 03
QUIET
ELEGANT
静谧与雅趣
转入茶室,一方雅趣天地,将阳台部分区域纳入室内空间,成就更大的视野与气度。同时,不设立物理意义上的门与窗,保留茶室的开阔与通透,仿若将室外的清风明月纳入其中,给予心理极大的放松感。时光缓缓流淌,茶水声似一首轻柔的乐曲,在茶室中轻轻回荡。
P. 15
P. 16
P. 17
木质窗台静谧伫立,与一楼屏风隔空呼应,编织成一幅古今交融的雅致画卷。复古的落地灯洒落斑驳光影,为空间披上了一层神秘而雅致的纱幔。置物架上,古瓷新茗,错落有致,不仅仅是器物的堆砌,更静默地陈述着过往的故事与内在的底蕴。一杯清茶,热气袅袅,酔人的不仅是茶香,更是那份对美好生活的向往与喜悦。
P. 18
P. 19
• 04
ELEGANCE
POETRY
优雅与诗意
主卧,精神与物质并存的私属场域,每一寸空间都镌刻着对品质生活的极致追求。巨幅的落地窗,邀日月星辰共舞,洒落一室温柔光芒。天花以弧形柔美过渡,窗帘轻垂,空间界定而不失通透,室内与室外交织成诗。而原有的阳台并入,空间视觉放大,摇椅静候,方寸之间,思绪随风轻扬,尽享难得且惬意的休憩时光。
P. 20
P. 21
次卧,作为家中的休闲区域,以榻榻米进行铺展,闲暇之余,邀三两好友,围坐畅聊,谈笑风生,共度欢乐时光。
格栅衣柜以简约而不失格调的姿态矗立,收纳着日常的琐碎,释放着空间更多的自由与灵动。
P. 22
洗手间延续着整体的设计脉络,古典拱门以流畅的线条奠定空间的优雅气息,而墙面铺设浅绿瓷砖清新自然,与木质柜台相得益彰,营造出复古与现代交织的空间氛围。
P. 23
居住设计不仅仅是功能与实用的结合,更是精神上的归属与生活哲学的细腻呈现。将老上海的元素融入于空间设计之中,如同过去与未来的对话,温柔而深刻,让人在诗意的栖居中,找寻到那份跨越时光的温暖与美好。
• 05
ANALYSIS
DIAGRAM
分析图
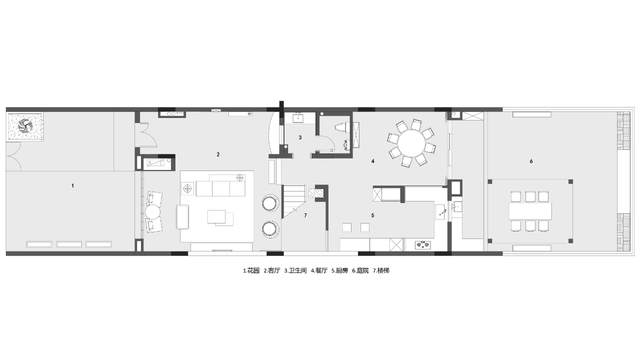
1F 平面图 P. 24
2F 平面图 P. 25
3F 平面图 P. 26
INFO
- 项目名称 - 繁花市井
- 设计主创 - 邝淑仪
- 设计团队 - 麦强龙
- 项目面积 - 367㎡
- 项目地址 - 广东 东莞
- 项目摄影 - 广州大象视觉空间摄影
DESIGNER
邝淑仪
广州简美设计 设计总监
广州简美设计
依托“简美品牌”于 2018 年在广州创立,致力于高级定制化研究及一体化设计服务。主创成员拥有丰富的设计及设计管理经验,擅长为客户解决问题,以设计落地结果为导向。业务范围涵盖私宅、地产、商业、办公、软装定制及落地实施管理等。
简美设计注重人文内核,追求自然环境与空间美学的共生融合。基于对事物本质的深刻认知,不断探索空间的内在秩序,在寻常中以达突破,为客户真正赋能。
MAGNUM OPUS
东西绮境
简美设计 • 森林苏醒
简美设计 • 予白
客服
消息
收藏
下载
最近



































