查看完整案例

收藏

下载
Aquapark 运动和休闲中心以现代化的室外公共游泳区为特色,并增加了一座新建的室内游泳馆为补充。该建筑的历史可以追溯到 20 世纪初,作为河流游泳水疗中心使用。综合体的位置非常敏感,坐落于现有城市结构和 Kyjov 中央公园之间,周围被百年老树环绕。由于新的经营安排,现有的建筑面积需要得到最大限度的利用。在靠近公园和城市中心的优美环境中,本项目为人们提供了富有吸引力的运动和放松场所。
The Aquapark Sport and Relaxation Center began with a modernization of the outdoor public swimming pool and now has a newly-built indoor swimming pool to complement it. The pool history started early in the 20th century with the establishment of the river swimming spa. The complex is sensitively set in the interface between the existing urban structure and central Kyjov park; it is surrounded by 100-year-old trees. Because of a new operating arrangement, the existing area receives maximum use. With close proximity to the park and city center, clients can discover an attractive sporting and relaxation experience.
▼外观概览,overall of exterior©BoysPlayNice
新建筑与周围环境相辅相成,和谐融入到社区的整体环境中。新建筑的线性布局和精细结构沿着 Mezivodí 街道延伸,并终止于街道的端点。游泳池的新前院位于通往市中心的主要行人和自行车路线上。作为城市中心复兴的一部分,小巷两侧的树木重新焕发出生机,户外地面也经过了重新的铺制,城市肌理进而得到了增强。泳池的游客和路人可以在任何时候进入该中心,并在室外露台上享受一杯咖啡。
The new building complements the surrounding environment and does not disturb its overall character. The linear arrangement and fine structure of the new building extend along Mezivodí Street and terminate at the street’s endpoint. The new forecourt of the pool is located on the main pedestrian and cycling route leading to the city centre. As part of its revitalization, an alley of trees was rejuvenated, paved areas were modified, and urban structures were added. Pool visitors and passers-by can enter at any time and enjoy a cup of coffee on one of the outdoor terraces accessible from the lobby.
▼建筑与环境,architecture and landscape©BoysPlayNice
▼顶视图,top view©BoysPlayNice
▼立面夜景,night view of the facade©BoysPlayNice
▼细部近景,closer view©BoysPlayNice
砖材和金色穿孔金属板的结合为立面带来了一丝柔和的印象。具有视觉穿透性的材质,将室外泳池区域与游泳池的前院连接起来。室内泳池室与建筑呈 90 度直角,并延伸到室外绿地区域。全高的玻璃幕墙增强了室内外空间的连接。这种设计充分考虑了中心未来十年的发展,预见到了泳池未来扩大的需求。
The facade is softened by lining it with brick strips and gold-colored perforated sheet metal. All this is supported by views through the building, which visually connect the area of the outdoor swimming pool with the forecourt of the pool. The indoor pool chamber is turned in relation to the building by ninety degrees and runs into the outdoor greenery. The full-surface glazing of the pool chamber enhances the feeling of connecting the indoor and outdoor spaces. The architectural proposal envisions a gradual increase in the pool’s construction over the next 10 years.
▼建筑底部为砖材,上部为金色穿孔金属板,the building is made of brick at the bottom and perforated gold metal at the top©BoysPlayNice
▼立面细部,details of the facade©BoysPlayNice
室内泳池区域分为三个主要部分,包括主游泳池、冒险池以及健康区域。主游泳池设有 5 条泳道,长度为 25 米。按摩射流、泳池喷口和水滑梯为其增加了更有趣的体验。此外,室内还设有一处漩涡泳池,小朋友们也能在儿童的涉水池里玩得很开心。在游泳池里,游客可以欣赏到邻近公园和室外建筑群的宜人景色。
The indoor pool chamber is divided into three main parts – swimming pool, adventure pool, and wellness. The main swimming pool has five lanes with a length of 25 m. The pool experience features benches with massage jets, pool spouts, and a water slide. There is also a whirlpool, and even the little ones will have fun in the children’s wading pool. While in the pool, visitors enjoy pleasant views of the adjacent park and the greenery of the outdoor complex.
▼室内泳池,indoor pool©BoysPlayNice
健康区有五间桑拿房,每间桑拿房都有不同主题,包括:热带、盐、香气、土耳其蒸汽浴,以及能够欣赏到室外泳池景观的芬兰式桑拿。桑拿房的大小和内部温度均不同,但都沉浸在亲密的氛围中,在这里,游客们将享受到最大程度上的宁静和隐私。此外,健康区还设有一个冷却池和一间带 Barrisol 星空天花板的休闲室,以及三处室外露台。
There are five saunas in the wellness area – tropical, salt, aroma, Turkish steam bath, and Finnish ceremonial sauna with a view of the outdoor pool. All saunas are of different sizes and temperatures and are constructed to create a feeling of intimacy. Visitors discover maximum peace and privacy here. The wellness area includes a cooling pool and a relaxation room with a Barrisol starry sky. There are three outdoor terraces.
▼建康区,wellness area©BoysPlayNice
▼桑拿房,sauna rooms©BoysPlayNice
▼休息室,lounge©BoysPlayNice
中心底层设有衣帽间、淋浴间和室外游泳池的更衣室,以及 Aqua 酒吧柜台,为室外和室内游泳区提供服务。
The ground floor features cloakrooms, showers, and changing rooms for the outdoor pool. There is also an Aqua bar counter, which serves both the outdoor and indoor swimming areas.
▼底层入口大厅,entrance hall of the ground floor©BoysPlayNice
▼更衣室,dressing room©BoysPlayNice
▼楼梯,staircase©BoysPlayNice
▼酒吧餐厅与细部,bar/restaurant and material detials©BoysPlayNice
▼艺术装置,art installation©BoysPlayNice
室外游泳池区域基本保持不变,新的不锈钢嵌件被安装到现有的水池中。冒险池设有放松区、按摩椅、篮球圈、水滑梯、大滑梯,以及一座供小孩子玩耍的浅水池。主要户外游泳池设有三条 50 米长的泳道。此外,非泳池区域还设有有趣的泡泡按摩椅。游客可以在靠近游泳池中心的室外酒吧享用茶点。
The outdoor swimming pool remains mostly unchanged. New stainless steel insertions were fitted into the existing pools. The adventure pool boasts a relaxation area with a massage bench, basketball hoop, water slides, and a large slide. There is a wading pool for the little ones. The swimming pool offers three lanes with a length of 50 m. A non-swimming component features bubble massage benches. Refreshments are provided for visitors in an outdoor bar in the very center of the complex in the immediate vicinity of the swimming pools.
▼室外游泳池区域,the outdoor swimming pool area©BoysPlayNice
▼泳池,pool©BoysPlayNice
▼顶视图,top view©BoysPlayNice
▼户外泳池酒吧,outdoor pool bar©BoysPlayNice
建筑的地基采用了直径 600mm 的钻孔桩。由于地下水位较高,地下空间采用了由 Permacrete 混凝土制成的白色整体结构。地上部分由带支撑的预制混凝土框架构成。室内泳池区域采用了设有矿物棉隔热层的 CLT 板。底部楼层周边墙体采用带砖条的 EPS 隔热。二层外立面则采用了能够通风的金色穿孔型材。屋面设有植被和广泛的绿化。夏季泳池和室内泳池的浴缸材质则采用了不锈钢制成。
The foundation is made on drilled piles with a diameter of 600 mm. Due to the high level of groundwater, the substructure is a monolithic white tub made of Permacrete concrete. The above-ground part is made of a prefabricated concrete frame with bracing. The pool chamber is coated with CLT panels with mineral wool thermal insulation. The perimeter walls of the ground floor are insulated with EPS with brick strips. The second floor has a ventilated facade with a gold-colored profiled sheet. There is FVE and extensive greenery on the flat ridges. The summer and indoor pool tubs are made of stainless steel.
▼建筑外观夜景,night view of exterior©BoysPlayNice
▼立面夜景,night view of the facade©BoysPlayNice
▼户外泳池夜景,night view of the outdoor pool©BoysPlayNice
▼泳池夜景,night views©BoysPlayNice
▼区位图,location©SENAA architekti
▼总平面图,master plan©SENAA architekti
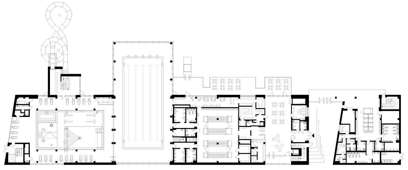
▼一层平面图,ground floor plan©SENAA architekti
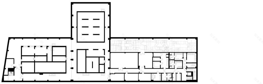
▼二层平面图,first floor plan©SENAA architekti
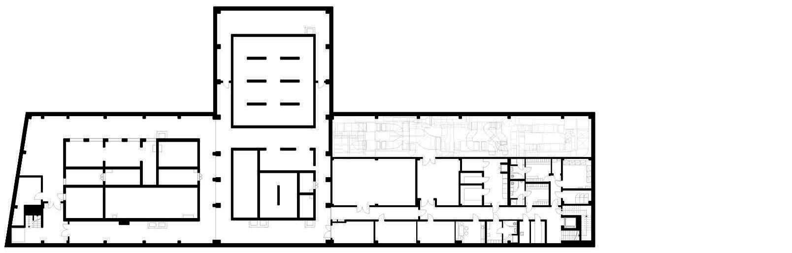
▼地下层平面图,basement plan©SENAA architekti
▼立面图,elevations©SENAA architekti
▼剖面图,sections©SENAA architekti
Studio: SENAA architekti
Author: Václav Navrátil, Jan Sedláček
navratil@senaa.cz
Social media:
Studio address: Jakubské náměstí 7, 602 00 Brno, Czech Republic
Design team: Eva Pokorná, Patrik Obr, Markéta Raková, Eliška Brabcová, Jan Cihlář, Kateřina Zabadalová
Project location: Mezivodí 2029, 697 01 Kyjov
Project country: Czech Republic
Project year: 2018
Completion year: 2023
Built-up area: 2430m²
Usable floor area: 4630m²
Plot size: 18000m²
Client: Town of Kyjov
epodatelna@mukyjov.cz
Photographer: BoysPlayNice,,
Collaborator: Building contractor: Consortium Metrostav and Metrostav DIZ,
Chief engineer: CENTROPROJEKT GROUP
客服
消息
收藏
下载
最近













































