查看完整案例

收藏

下载
△ 立面细节 摄影:Studio Millspace
△ 项目外观 摄影:Studio Millspace
设计单位 如恩设计研究室
项目地点 中国台湾
建成时间 2023年12月
建筑面积 8,485平方米
这是一座夸张的城市:
不断重复着一切,
好让人们记住自己。
记忆也在夸张:
反复重复着各种符号,
以肯定城市确实存在。
——伊塔洛·卡尔维诺
《看不见的城市》
△ 设计手稿 绘制:郭锡恩
独具一格的社区文化滋养着台北这座现代化大都市,高耸的玻璃建筑与20世纪70年代的拱廊式建筑并存,亚热带气候让郁绿的植被在城市景观中蓬勃生长。
项目坐落于士林区天母芝山,这片区域不仅有着丰富的文化背景,也是外来文化的聚集地。直至今日,这里依然是大多数国际学校的所在地。天母的居民在远离城市喧嚣的同时也在享受着跨文化的生活。在如此背景下,我们在设计中追寻芝山的历史脉络,试图以构造形式和触觉材料在这一精品住宅项目中追寻一种隽永的美学。
△ 项目周边现状 摄影:Studio Millspace
考虑到项目地理位置的特殊性,设计团队在北角保留了一个棱角分明的边缘,以保持建筑在街道上的存在感,而建筑的南侧则因其锯齿状的轮廓变得柔和。立面用比例优雅的方柱和横梁构成灰色浅石包覆的网格,独特的转角细节,为结构框架的表达注入了一些轻盈感。
△ 建筑转角处理 摄影:Studio Millspace
在每个网格框架内,插入了一个倒置的悬链拱形状的铜色金属屏风,用以围合阳台并叠加在玻璃窗前面。如恩设计利用材料和图案重新诠释台湾省老建筑窗户顶部的“花窗”屏风。结构和屏风两个元素相得益彰,以表达阳刚和阴柔、历史和现代、清冷和温暖、理性和感性之间的二元性。
△ 建筑立面 摄影:Studio Millspace
△ 立面细节 摄影:Studio Millspace
室内空间的设计,我们强调设计的延续性和材料的丰富性。进入室内,人们便置身于一个用温暖的灰色水磨石包裹的双层挑高拱形空间,这种材料延续至信箱区、电梯大堂和休息区,休息区以定制的青铜和手工吹制玻璃吊灯为亮点,其中黑胡桃木家具配有青铜饰条和纺织品。
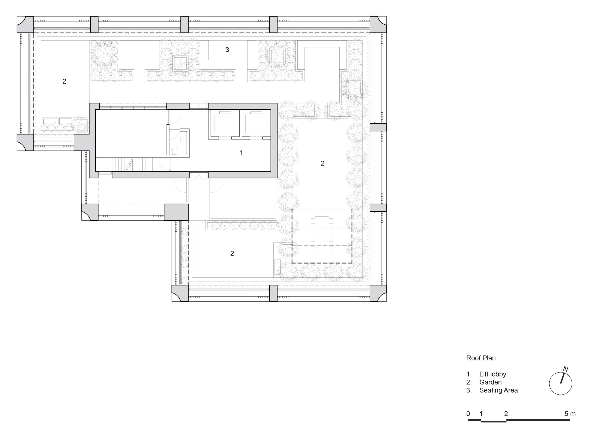
在二楼的小型图书馆可以俯瞰整个休息区,其宽阔拱形的比例让人想起旧时台湾省建筑中的拱廊。屋顶设施包括健身房和各种户外空间,如户外厨房和活动区、休息角落、瑜伽平台和宠物区,户外空间周围布满郁绿植物,人在空间中可以远眺壮丽的阳明山和更远处的景色。
△ 通高的室内空间 摄影:Studio Millspace
△ 室内二层空间效果 摄影:Studio Millspace
△ 室内吊灯 摄影:Studio Millspace
△ 室内细节 摄影:Studio Millspace
设计图纸 ▽
△ 总平面图 ©如恩设计研究室
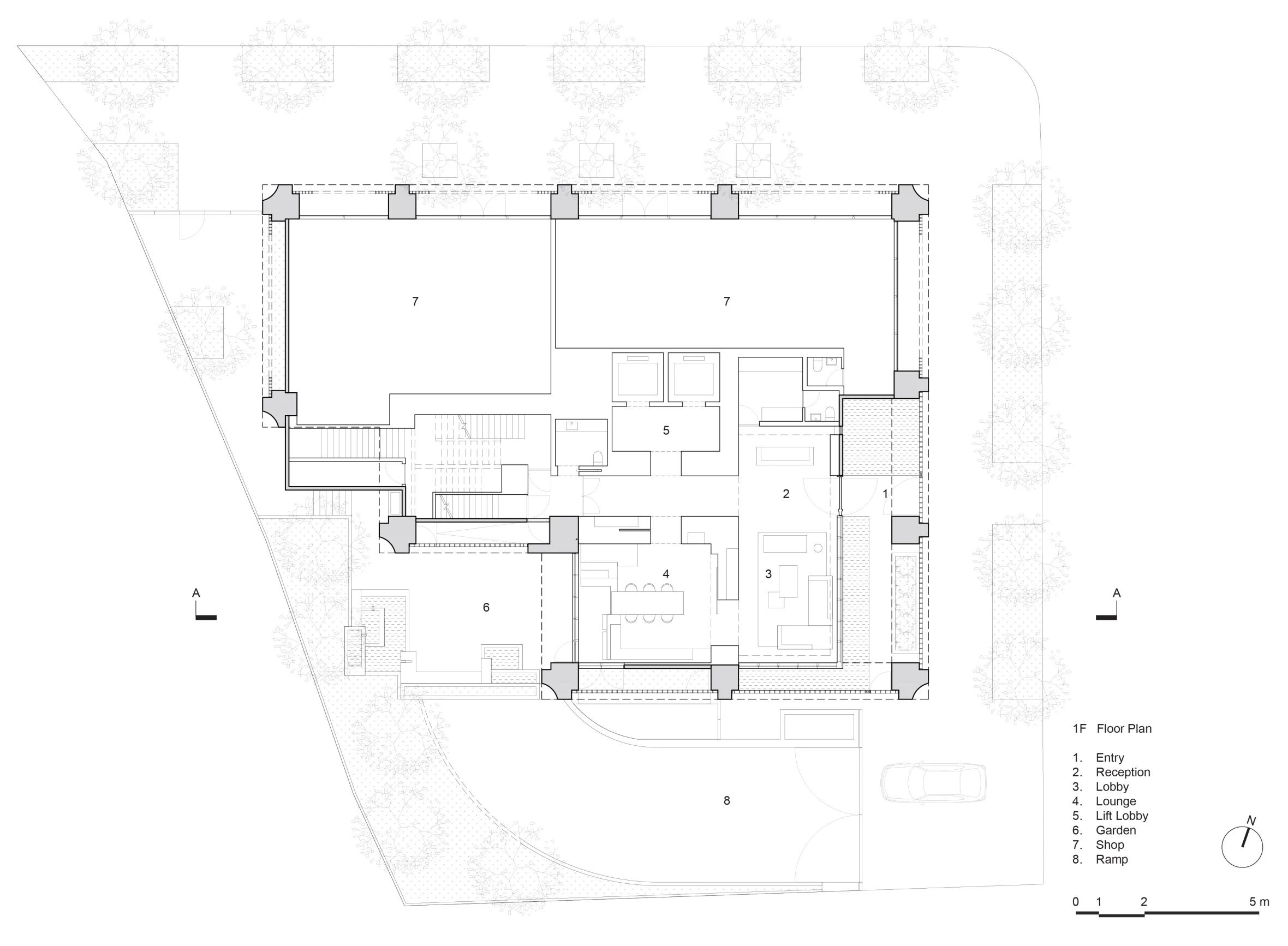
△ 一层平面图 ©如恩设计研究室
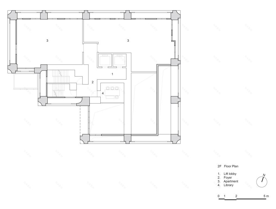
△ 二层平面图 ©如恩设计研究室
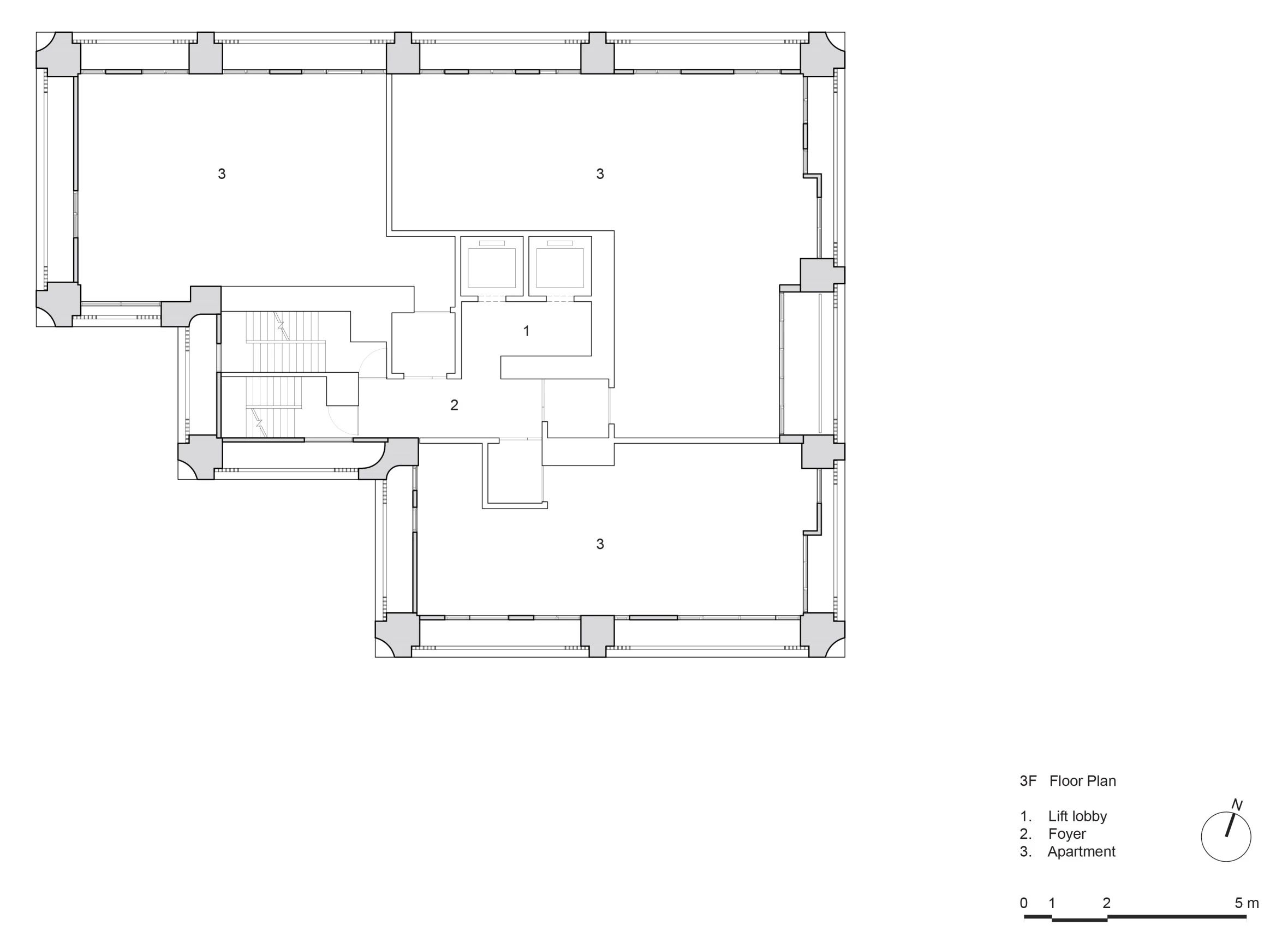
△ 三层平面图 ©如恩设计研究室
△ 屋顶平面图 ©如恩设计研究室
滑动查看>> 立面图 ©如恩设计研究室
△ 剖面图 ©如恩设计研究室
完整项目信息
客服
消息
收藏
下载
最近
























