查看完整案例

收藏

下载
客厅/living room▼
将空间写作一首春天的小诗,叶的绿,花的柔,光的暖。在方寸之间感受春色如许,治愈之居,美好与未来不期而遇。
周末的午后,闲适的清晨,电影或音乐皆成日常。从容留白的空间,充满了各种温馨美好的想象。
兴趣休闲区/Relaxation area ▼
原木质感与植物相遇,便有了自然的回响。将陪伴场景,兴趣时刻,化作一方的治愈天地。小小的角落,温柔了时光。
餐厅/dining room▼
花香在烛光与灯光的故事氛围中温柔低语,一年四季三餐被赋予了立体的感官,浪漫与诗意皆化作日常的回忆。
主卧/Master bedroom ▼
如果说客厅是春日的序语,那么主卧便是绽放的华丽。浪漫古典的法式地毯,演绎着步步生花,香氛伴读的窗台,成为尊享的私人场域。
客房/guest room ▼
城市喧嚣的风,吹不走此间的诗意。温润的木质唤醒了空间中的静谧,恰到好处的装饰,给予了居者沉浸式的自然体验。
客厅/living room▼
遵循空间无界,阳台与客厅的贯通,使阳光畅通无阻地铺洒于室内。温润的品质,在开阔的空间内缓缓流淌。
精致的挂画与独特造型的灯饰自成一处艺术美景,家居的质感与空间的色泽无一不彰显着优雅的品味。
餐厅/dining room▼
BVLGARI 的经典元素与黑胶音乐的复古格调相得益彰,将整个餐厅的精致奢华推向了一个新的高度,三两好友相聚,美酒咖啡,人生欢矣。
主卧/Master bedroom ▼
统一、优雅的色调打造的独处空间,是为“自我”设立的小小家。在这方独属于自己的天地,静享舒适与安宁。
多功能室/Multi-purpose room▼
生活不止眼前的日常,还有诗意与远方。将旅程的回忆定格于照片,每每回望,便能回到那个自由肆意的瞬间。
女孩房/Girls' room▼
用画笔勾勒想象的轮廓,用颜料丰富生活的色彩。审美来源于对艺术的感悟,品味在日月升沉之间沉淀。
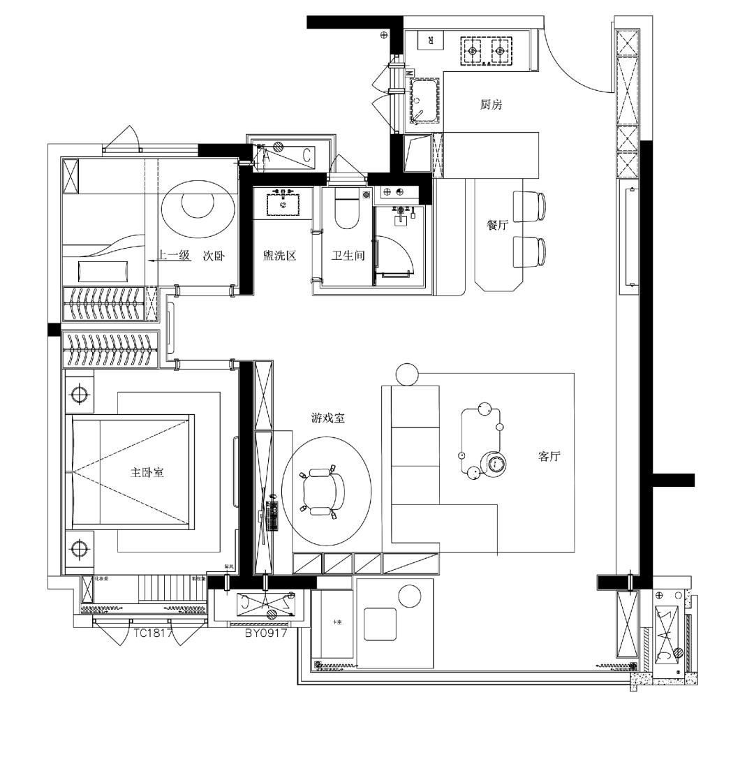
94㎡户型平面图 ▼
112㎡户型平面图 ▼
项目信息
项目名称 | 万科·星耀大道
室内设计 | 深圳市蜜尔室内艺术设计有限公司
陈设设计 | 深圳市蜜尔室内艺术设计有限公司
项目地点 | 武汉市硚口区
设计面积 | 94㎡/112㎡
客服
消息
收藏
下载
最近










































