查看完整案例

收藏

下载
一座城市里的每一寸土地都印刻着文明的烙印。
千年南阳,五圣故里,历史文脉悠久。至臻至极,返璞归真,承继三千年宛都文脉积淀,本案汇隆·璞樾样板间位于河南南阳CBD时代垂青之地,以跨越时代豪宅,造诣南阳人居极筑,开创现代豪宅,拉开了南阳世界性豪宅的序幕,开辟一片属于自己时光的悠然居。
是一种极致美学,打破建筑束缚,用艺术法则连贯每个空间,以创新手法塑造新维度,衔接人与城市,描摹生活的无界本源,边界消融后,艺术得以无限延伸。
在这处温馨的居所中,客餐厅呈现出一种“无界”的魅力。宽敞的布局消弭了区域之间的明确界限,让客厅与餐厅相互交融,浑然一体。从客厅步入餐厅,没有丝毫的阻隔,流畅的线条和通透的视野,仿佛将整个空间无限延伸。在这里,亲朋好友的欢声笑语得以自由穿梭,温馨的家庭时光不受拘束地蔓延。
客厅观景视野,天地入怀,淡看风云,生活与空间相融,打造天然舒适与流线美感,组合的体块、视觉的秩序和对比的色度,模糊了空间与外界的界限,給予空間最大限度的光线互相交融,打造风雅自在的生活情调。
空间的视觉与城市文化韵律相得益彰,大面积的暖白色从视觉角度,拉开了空间广阔度,开放式的设计使两者之间的过渡自然而流畅,没有生硬的隔断,只有无尽的开阔与通透。光线毫无阻碍地洒落在每一个角落,让整个空间充满了明亮与温暖。
整体公共空间中,沙发后侧便是用餐区域,在充分考虑功能性的同时,进一步扩展用餐时的舒适度,风自由出入,内外之间,流动着空间的“气韵”。食物的清香与自然的清新混合在一起,共同构成生活的本味。
吧台处成开放式状态,满足亲朋好友的聚餐品酒,满足居者需要的社交属性,酒精的熏陶下,摒弃日常生活的焦虑和复杂,感受家里最温柔的时光。
走进主卧,一股温暖而沉稳的气息扑面而来,棕色仿佛是岁月沉淀下来的温柔底色,独有的屏风成为了视觉的焦点,角落的氛围灯与环境相互交融,让整个卧室沉浸在一种宁静而舒适的氛围中,仿佛时间都在这儿放慢了脚步,让人能够尽情享受这份属于自己的宁静与惬意。不论是衣帽间还是过道长廊,都承载着强大的展示功能,让生活的小角落也暗藏精致优雅。
次卧延续简约风格,低饱和度配色搭配艺术吊灯,静谧极简之外不乏温馨优雅,空间摒弃浮华,回归实用性分身。
同样让人放松的还有书房,在喧嚣尘世的一隅,有这样一方天地,它是心灵的避风港。在这里,时间仿佛静止,空间无限延展。它不仅是一个空间,更是一种生活态度,一种对知识和美的不懈追求。富有品味的生活,总能从简单的氛围里提炼出源源不断的新鲜感,没有外界的束缚,只需要一个随心的生活,一方独享的天地。
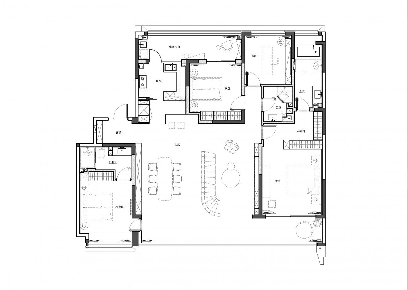
平面图
项目名称:汇隆璞樾 样板间
项目地址:河南 南阳
项目面积:200m²
完工时间:2024年
设计公司:吉禾设计
设计总监:朱勇
设计团队:赵仕煜、余本磊
空间摄影:陈铭
文案策划:涂雨思
朱勇 Rodin.chu
吉禾设计 创始人
由朱勇先生于2012年创立的吉禾设计,是一家立足于中国武汉的多元化室内设计事务所,生活美学空间建构者,一直专注于建筑和室内空间设计,项目涵盖商业空间、私人豪宅、度假酒店等。拥有国际化视野和对空间价值特殊视角,以全球化的观念结合体验来创造新的范例。
空间作品遍及全国,近年来在国内设计领域备受专注,先后斩获APDC亚太大奖、广州设计周40 under 40中国杰出设计青年、国际空间设计大奖、现代装饰传媒大奖、金堂奖、艾特奖、M+高端室内设计大奖、唯美中国大奖等国内外权威荣誉。吉禾设计 以“做有价值的设计”理念,将空间设计完整落地。整合美学、商业、文化、设计与空间之间的逻辑系统,擅长运用建筑空间思维,推动“解构形式”概念化的实践。创造出美学、实用、经济共生的作品。
客服
消息
收藏
下载
最近
























