查看完整案例

收藏

下载
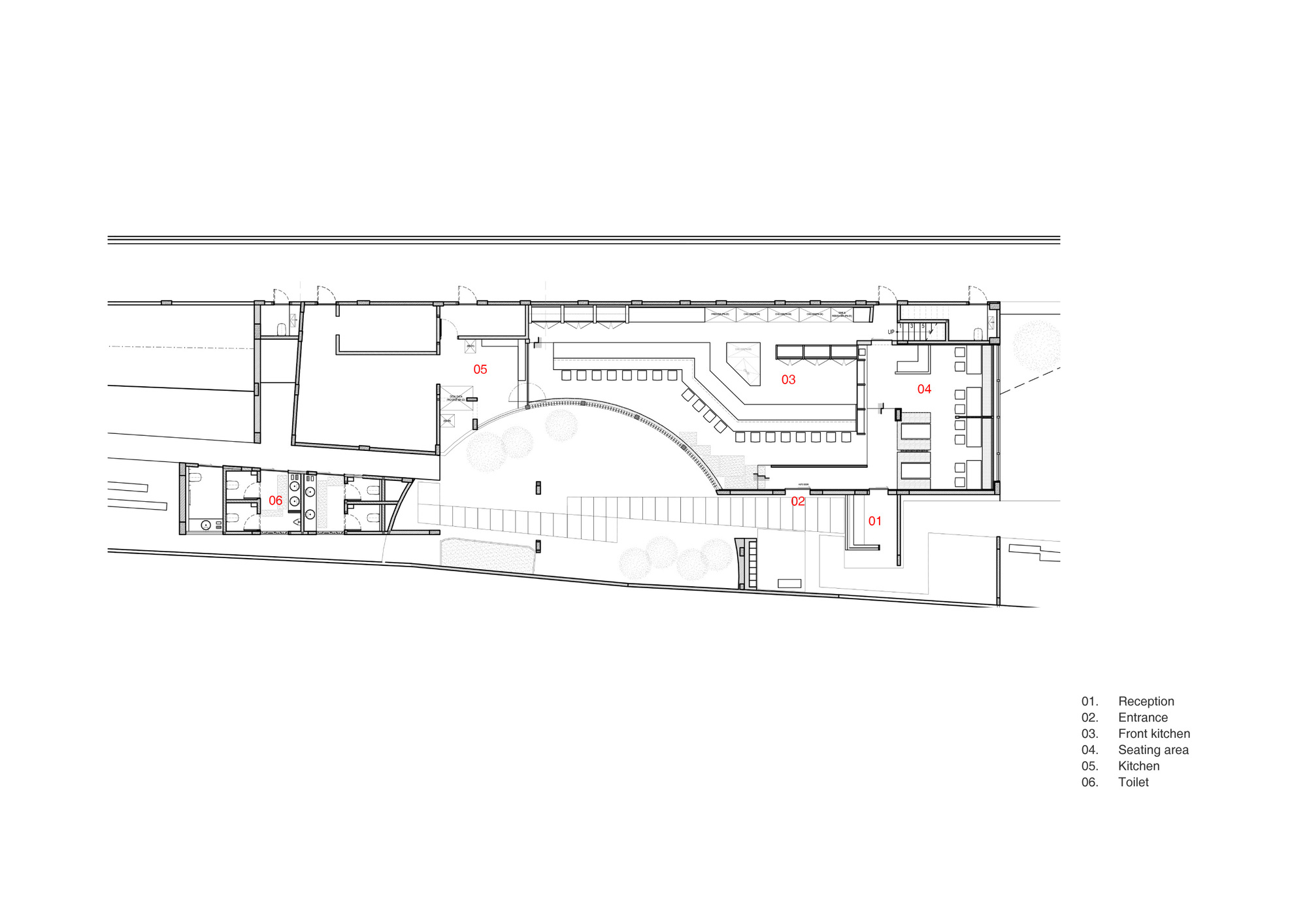
印度尼西亚巴厘岛最具活力的地区之一水明漾开设了一家新的多功能餐饮空间。该项目由著名厨师 Joel Sijin Lim 策划,包括名为“32do”、“Younghee”和“SJ2.0”的咖啡馆、餐厅和鸡尾酒吧。其目的是通过视觉和味觉体验捕捉韩国血统和印度尼西亚环境的精髓。该项目是印度尼西亚建筑公司 Studio Terasu 和 FFFAAARRR 与韩国设计工作室 stof 合作完成的。咖啡馆 32do 和餐厅 Younghee 是该项目首先揭幕的部分。
进入极简对称的立面后,游客会体验到约 3,000 平方米的狭长地块上的一系列空间。基于“相对新颖”的概念,stof. 试图通过结合东亚的四季景观(印度尼西亚的异国情调体验)和不断变化的水形态(该岛上熟悉的元素)来表达该品牌提供的感官扩展,使其感觉新颖。每个提供不同服务的空间都反映了四季的图像 - [夏季风]、[秋季池塘]、[冬季冰洞] - 让游客体验四季的循环,并将整个旅程视为一个有凝聚力的体验。
穿过狭窄的走廊,第一个进入的空间是“32do”,体现了春夏的意境。从不知何处悄悄流下的静水开始,标志着通往夏之谷的旅程的开始。透过天窗和高高的天花板射入的自然光展现出丰富的立面,营造出动感明亮的印象。不规则形状的水磨石和周围的植物传达出夏日的生机勃勃的形象。每一层都发挥着独特的功能,例如烘焙坊和巧克力坊,它们在结构上相互连接,作为一个景观提供各种服务。顺着水声进入内部,游客会在空隙区域遇到由多个雨链组成的“夏季季风雨”。穿过木桥或爬上其中的楼梯,可以直接体验季节。
沿着建筑外的小径穿过“32do”,透过几棵树可以看到“Younghee”的身影。穿过小径尽头的小型接待处旁的一扇锤打铜门,秋天的风景便映入眼帘。这个空间的设计模仿了秋天池塘中的景色,为客人提供温馨的款待、美食和与厨师交流的场所,氛围平静。铜叶模块的灵感来自漂浮在水面上的树叶和竹子形状的隔断,有助于让游客沉浸在想象中的风景中。此外,传统的红色调亚麻布、石墙和自然光以诗意的方式表达了季节的变化。
Studio Terasu、FFFAAARRR 和 stof 正在最后阶段开放最后一个空间 SJ2.0,它将以异国情调的冬季景观完成这段旅程。
项目设计:FFFAAARRR, stof.
项目面积: 241.2501349m²
项目年份:2024
项目摄影:Ernest Theofilus
首席设计师:Seongjae Park
灯光顾问:Erreluce
项目建造:Inovasi
Interior Design: Park Seongjae, Sungmo Lee, Munhee Kang, Hyejin Kim, Sojeong Jeon
Architecture Designers: Studio Terasu, FFFAAARRR
项目成市: Kecamatan Kuta Utara
项目国家: Indonesia
设计师:stof.
语言:英语
客服
消息
收藏
下载
最近





















