查看完整案例

收藏

下载
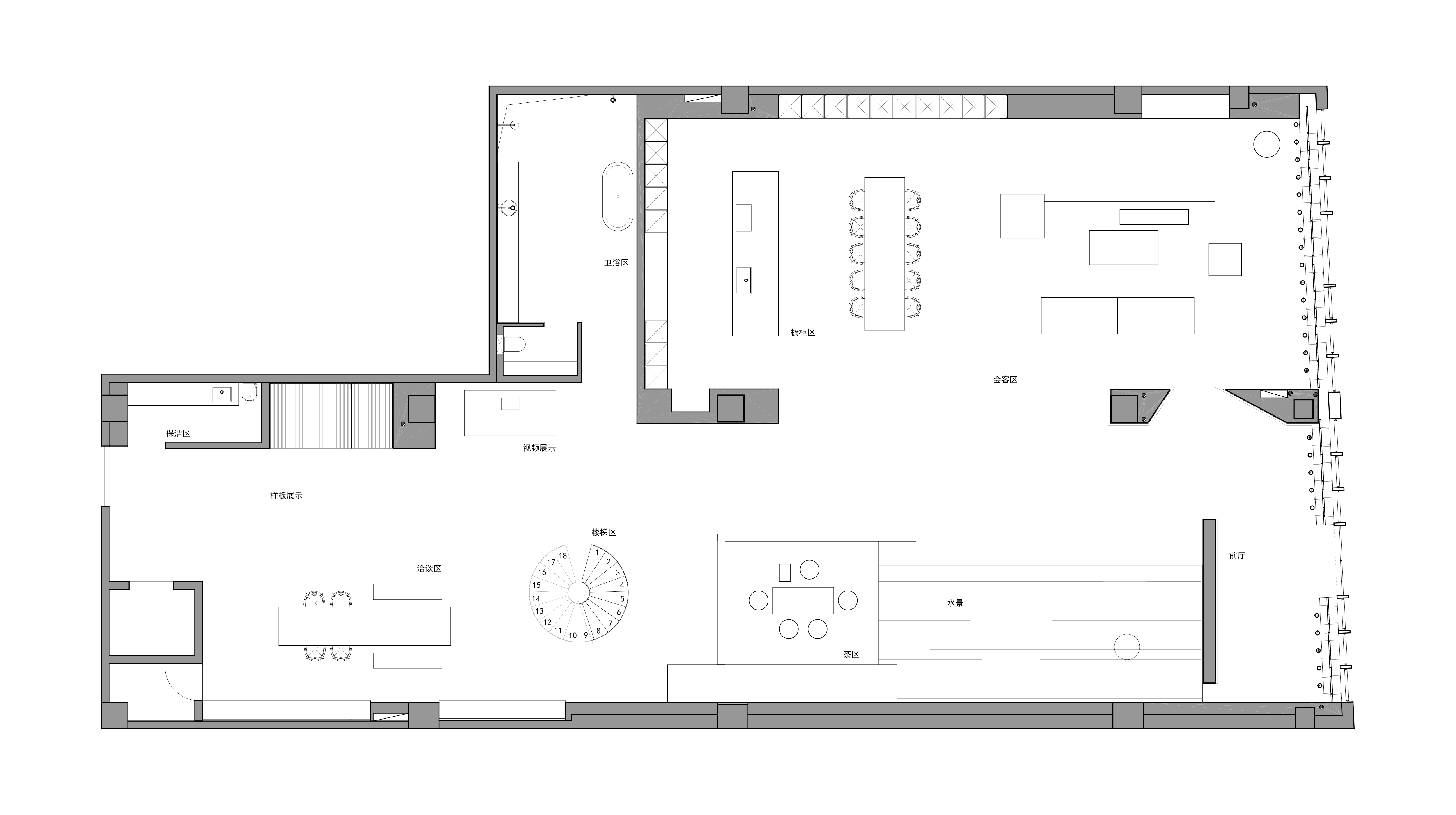
与大刀阔斧的结构设计相对的,是极为克制的色彩运用,以最基础的黑白色烘托起干净明亮的场域,在场景中引入自然光,在立面的切割下,光影,倒影,人影化作场地中的装饰元素,表达动态的、活泛的艺术形式。
卫浴空间如同一幅静止的雕塑画,天然的肌理色泽克制又疏离,软膜天光置于一角,模拟自然光的倾入,拉伸空间纵向的视觉关系,为场景注入向上的生机。
10
设计的内在使命,是不断地去洞察时代背景的变化下,人们需求与审美的改变,设计有别于寻常展厅追求空间展陈的充盈,反而留下大量的空白,启发人们退一步去欣赏存在的意义。
客服
消息
收藏
下载
最近


































































