查看完整案例

收藏

下载

翻译
Architects:Alexis Papadopoulos Architectural Practice
Area:160m²
Year:2023
Photographs:Mariana Bisti
Manufacturers:D. Tillyris Ltd,Evpalia Trading Co. Ltd,MARAZZI,Nouris Ltd,Α/Φοι Α. & Χρι. Τσαγγαρη Λτδ
Project Manager:Alexis Papadopoulos
Architect:Maria Protou
Civil Engineer:ASD Hyperstatic Engineering Design
Mechanical Engineer:S. Aristedou Engineering Consulting
Electrical Engineer:Makis Ioakim Consulting Engineers Ltd
General Contractor :V.M.S Vasiliou Constructions Ltd
Mechanical Installations:Isotherm Solutions Limited
Electrical Installations:CPM Electromechanical Ltd
Pool Sub Contractor:Poollab
City:Limassol
Country:Cyprus
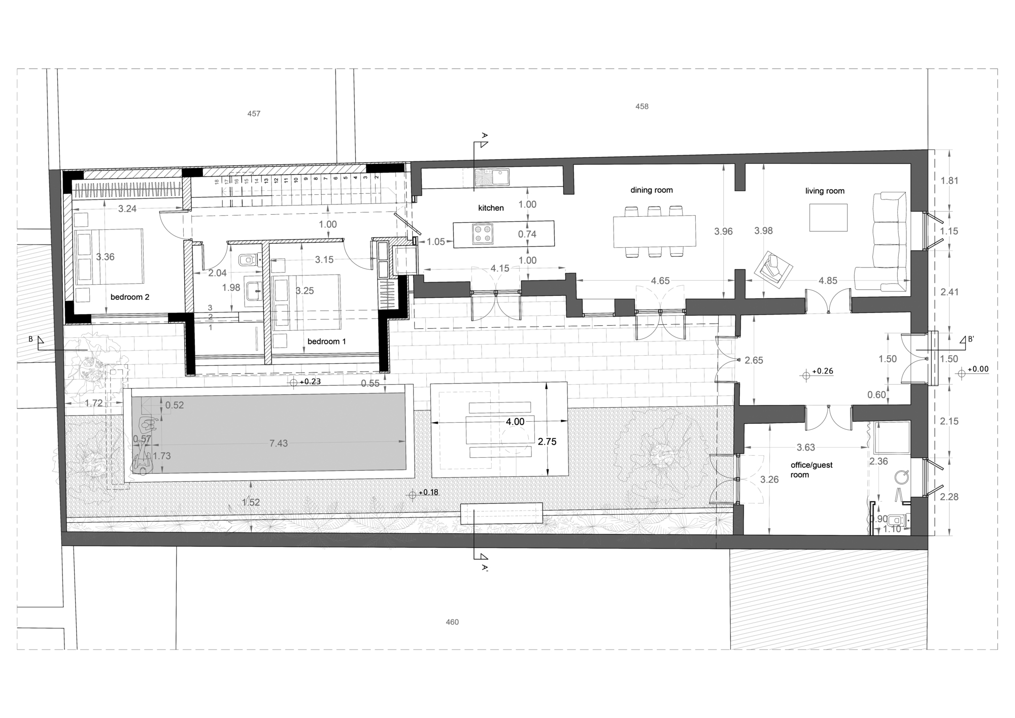
Text description provided by the architects. Starting the study for the preservation and restoration of a listed building in Limassol while trying to meet the needs of the family that would be the new inhabitants of this house, first, we proceed with demolitions to bring the building to its original form. In this way the inner courtyard is bigger, as it used to be in the past and it can be reached directly through the foyer (heliakos) of the listed building from the street. Also, sunlight is now reaching again the foyer and the two spaces on its two sides as well.
The new additions follow the traditional way of house expansion, continuing the linear arrangement to the end of the courtyard. Thanks to the correct orientation, the house is functioning bioclimatically correctly, in winter the sun reaches all the rooms heating them, while in summer the openings are protected by a small canopy. The microclimate of the yard is formed by many trees which will grow in the following years and the soil which is not covered and absorbs the rainwater in winter time while not retaining the heat in summer time. Combined with the pool water, it naturally cools down the house. The relation of all the inner spaces with the outdoor space turns the yard into the protagonist of this house during the whole day, since it can be even used to move from one room to the other.
At the connection point between the old building and the extension, an expansion joint was carefully designed to allow the two buildings to move individually in terms of contraction and expansion and in the case of an earthquake. This joint is thermally insulated and waterproof. A niche is interrupting the continuation of the walls to highlight this connection point between the new and the old building. The difference between the new and the old building is also highlighted through the difference in form and colour. Rectangular simple and strong volumes will accommodate the new uses, having coloured walls and not frames as it used to be in traditional architecture. Colours were an important feature in Limassol city in the past and vivid colours were used. We chose to use a reddish colour as an interpretation of the colour of the tiled roofs, a colour that dominates the city centre.
The entrance to the house is through the foyer. To the left of the entrance, a semi-autonomous room, accessible through the foyer opening also directly to the courtyard, can function as an office, a workshop or a guest room, following the needs of contemporary life. To the right of the entrance are the main uses of the residence succeeding one another in a linear arrangement. Special attention was given to the bathroom design, both in terms of materials and form. An excavated bathtub surrounded with green colour on the floor, walls and ceiling is giving the feeling that the yard is continuing inside or vice versa the bathroom is at the exterior space.
Project gallery
客服
消息
收藏
下载
最近


























