查看完整案例

收藏

下载

翻译
Architects:AGENCIA TPBA,Clube
Area:2152ft²
Year:2024
Photographs:Javier Agustin Rojas,Acervo Interno dos Autores
Author Architecture Project:Gabriel Biselli, Thiago de Almeida, Priscila Bellas
Construction:Aimberê Construção
Lighting Design:Nina Morelli
Landscaping Project:Flavia Tiraboshi
Graphic Design:Anna’s
Program:Restaurant
City:São Paulo
Country:Brazil
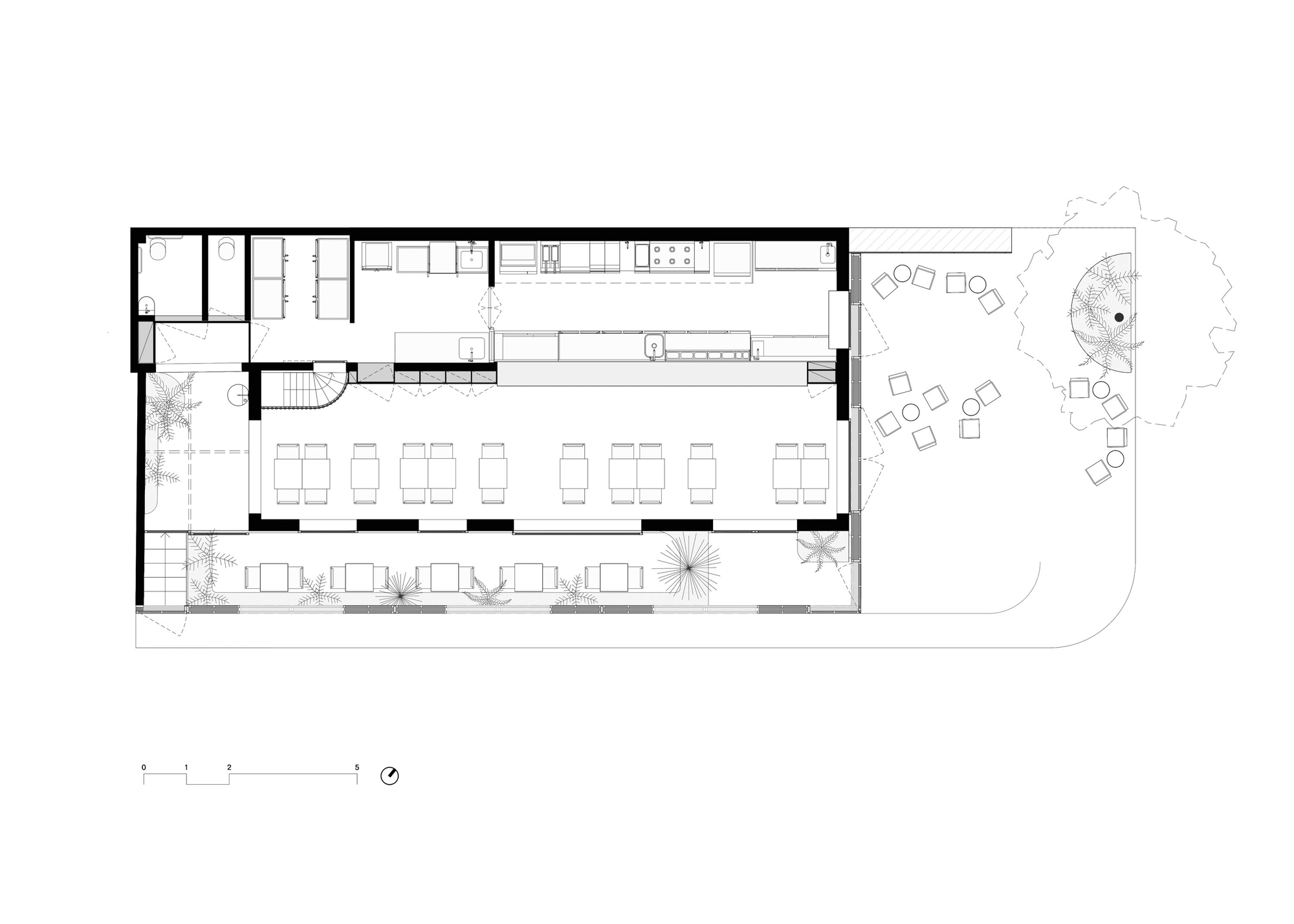
Text description provided by the architects. Jacó is a new fine dining and cocktail restaurant project in São Paulo, Brazil. Located in the Vila Madalena neighborhood, the restaurant occupies a conventional residential house built around the 1970s.
As far as we know, the house underwent at least three alterations until the early 2020s. The last and most radical modification added five oversized metal beams to allow the removal of all existing partition and load-bearing walls. This resulted in a large, unobstructed room of approximately 120 sqm.
Our primary intention was to keep the house in the exact state as it was found and to highlight its figure in a neighborhood undergoing intense urban transformation. Following this intention, it was decided that the intervention should be easily legible and tectonically autonomous, celebrating the tension between these different orders in a juxtaposition of times.
For the new program, we added an L-shaped folded metal wall, redefining the perimeter of the plot and dividing it into two parts: the first extends the existing room into a gardened and semi-covered veranda; the second creates a new open space for the city, like a small public plaza.
The plaza and the veranda are seen as intermediate spaces. The dark floor used in these areas unites the entire plot, creating a sort of platform that defines its presence in the city.
The modular metal wall consists of steel profiles and galvanized steel panels, organizing a set of different kinds of openings while also providing the complete closure of the restaurant.
The metal wall creates a unique relationship with the existing roof of the house and imparts a distinct urban character to this architecture. The old and the new coexist.
Project gallery
Project location
Address:São Paulo Brazil
客服
消息
收藏
下载
最近

























