查看完整案例

收藏

下载
“自然”是艺术创作的灵感来源,无论是山水画卷还是建筑设计,都体现着创作者独特的“设计观”,也进而体现出作品与自然之间微妙的关系。
“Nature” is the wellspring of inspiration for artistic creation. Whether it is Chinese painting or architectural design, it embodies the creator’s unique “design philosophy,” thereby reflecting the intricate relationship between the work and nature.
▼项目概览,project preview©张登星
径山禅茶文化交流中心位于杭州市余杭区,比邻径山寺景区。项目用地被群山环抱,地势高差较大。设计伊始,项目对环境的影响成为我们最为关注的课题:自然条件是被动的,而设计师的态度和手段是主动的,我们要如何化解之间的矛盾,又如何体现在地文化,成为设计的核心问题。
▼项目区位,project location©中科院建筑设计研究院有限公司
The Jingshan Zen Tea Culture Exchange Center is located in Yuhang District, Hangzhou City, adjacent to the Jingshan Temple scenic area. The project site is surrounded by mountains and has a significant elevation difference. At the beginning, the impact on the environment became the most important issue we focused on: the natural conditions are passive, while the designer’s attitude and methods are proactive. How to resolve the contradictions between them and how to reflect the local culture has become the core issue of the design.
▼顺应地势的小体量建筑,small-scale buildings that conform to the terrain©张登星
布局 | 顺应地脉
Layout | Follow the ground veins
用地为狭长的带状谷地,东西两侧被山体包围,南北方向约有 30 米落差,北侧等高线密集,南侧相对平缓。用地内隐约可见原有村落的形态布局,形成有趣的群落印记。用地东侧寺庙建筑群的轴线空间序列清晰明显,设计不希望继续强化此序列,而是与环境更好的融合。总体规划中设定了一条隐形的“轴线”,通过建筑群体自由散落的趋势与之呼应,同时将任务书中的两个集中的功能体量置于用地南北两端,形成“双核”格局,在呼应山势与地形的同时,考虑与寺庙的轴线关系,形成灵动的场所序列。人工与自然的关系是我们一直在讨论的话题,设计的目的是创造一种能让建筑与自然共生的状态,不是简单的对话,通过设计手段让建筑与自然保持一种你中有我、我中有你的张力关系,进而达到山水画中“可观、可听、可游、可居、可思”的和谐境界。
▼场地分析,site analysis©中科院建筑设计研究院有限公司
The site is a narrow strip valley with mountains on the east and west sides. There is a drop of about 30 meters from north to south. The terrain is steep on the north side and relatively flat on the south side. The original village layout on the site forms an interesting imprint.
The axis space sequence of the temple complex on the east side of the site is clear and obvious. The design does not want to continue to strengthen this sequence, but to better integrate it with the environment. An invisible “axis” is set in the overall plan, which is echoed by the freely scattered trend of the building groups. At the same time, the two concentrated functional volumes in the task book are placed at the north and south ends of the site to form a “dual-core” pattern. While echoing the mountain and terrain, the axis relationship with the temple is taken into consideration to form a flexible sequence of places.
The relationship between artificial and natural is a topic we have been discussing. The purpose of design is to create a state where architecture and nature can coexist, not a simple dialogue. Through design methods, architecture and nature can maintain a fusion of tension, and thus achieve the harmonious state of “viewable, audible, travelable, habitable, and contemplative” in Chinese paintings.
▼自由散落的小体量建筑,the freely scattered small buildings©张登星
起势 | 叠山理水
Rise | Stacking mountains and arranging water
结合设计功能需求与地形特点,用地只有南侧外部道路可相衔接,所以将整个项目的主入口展示及接待功能设置在此。
中段地势开始缓慢抬升,原有建筑虽已拆除,但已形成了稳定的土层基础,此区域只做最轻量化的处理,结合小体量的文化体验功能展开,还原山林氛围,削弱建筑的存在感。
到了最北侧,坡度陡增,很难直接利用,设计对场地进行改造:增加结构性阶梯式护坡挡墙,使综合服务功能建筑呈“台阶”状嵌入山体,同时避开用地内需要保护的高大树木,并与环境融为一体,使建筑“消失”在山野之中。
由于山谷地形在雨季会面临自然降雨排水压力的考验,通过景观水系统设计来解决这一课题:由南至北顺势形成逐级跌落的水系,最终汇合在南端入口区域形成开阔的景观水面,再疏导至外部雨水系统之中,将泄洪功能与景观相融合,用自然的方式解决自然的问题。
▼山水格局,framework of mountains and water©中科院建筑设计研究院有限公司
Combining the functional design requirements with the characteristics of the terrain, the site is only accessible to the external road on the south side, so the main entrance and reception function are set here. The terrain in the middle section rises slowly. Although the original building has been demolished, a stable soil foundation has been formed. This area is only treated in the simplest way, combined with a small volume of cultural experience functions to reduce the sense of presence of the building. At the northernmost part, the slope increases sharply and it is difficult to use directly. The design transforms the site: adding a structural stepped retaining wall so that the comprehensive service function building is embedded in the mountain in the shape of a “step”, while avoiding the tall trees that need to be protected on the site, integrating with the environment, and making the building “disappear” in the mountains. As the valley terrain faces the test of natural rainfall drainage pressure during the rainy season, this issue is solved through the design of the landscape water system: a water system that falls step by step from south to north eventually converges at the southern entrance area to form an open landscape water surface, which is then channeled to the external rainwater system, integrating the flood discharge function with the landscape, solving natural problems in a natural way.
▼逐级退台的建筑体量,stepped terrace architecture volume©张登星
生长 | 缝合渗透 Growth | Suture and Infiltration
本案建筑生成过程饶有趣味,围绕着如何将建筑消隐于自然的主题展开,最终呈现的效果也很好的实现了设计的定位与构想。
▼建筑生成,building generation©中科院建筑设计研究院有限公司
The architectural process of this case is very interesting, and it revolves around the theme of how to make the building disappear into nature, and the final effect has well realized the design positioning and concept.
▼建筑组团关系,building group relationships©张登星
形成高点:用地北侧狭窄,如果建筑只是简单的放置在地面上,会将整个山谷在观感上“堵死”,这里又是游客上山途中的视线焦点,所以我们希望这里的建筑“消失”不见,让视线通畅。所以将建筑形体结合山谷台地的地势逐级叠落下去,把屋顶与用地的最高点标高统一,实现建筑体量的消隐。
▼总平面图,site plan©中科院建筑设计研究院有限公司
Forming a high point: If the building is simply placed on the ground on the north side of the site, it would visually “block” the entire valley, which is also the focal point of visitors’ line of sight on the way up the mountain, so we hope that the building here will “disappear” and make the sight unobstructed. Therefore, the building form is combined with the terrain of the valley terrace and stacked down step by step, unifying the roof with the highest point of the site’s elevation, to achieve the disappearance of the building volume.
▼制高点处看不到主体建筑,the main building is not visible at the vantage point©张登星
顺应地势:用地的中间段地势变缓,现有植被也较完善,虽然村子已不复存在,但设计希望这些记忆能够得到另一种形式的延续,所以遵循原有村落形态,建筑顺应地势高差走向布置,疏密有致,一至两层的体量配合景观绿化隐于山林之间,房子、院子、树木与人共生共荣,延续着江南温润的情调与记忆。
▼剖面分析,section analysis©中科院建筑设计研究院有限公司
Conforming to the terrain: The terrain in the middle of the site becomes gentler and the existing vegetation is relatively complete. Although the village no longer exists, the designer hopes that these memories can be continued in another form. Therefore, the buildings follow the original village form and are arranged in accordance with the height difference of the terrain. The one to two-story buildings are hidden among the mountains and forests in coordination with the landscape greening. The houses, yards, trees coexisting with people, continuing the warm mood and memory of the Jiangnan region.
▼景观与建筑的融合关系,the integration of landscape and architecture©张登星
缝合内外:最南端也是用地的最低点,两侧有山,形成了一个小小的开口,进入的过程仿若《桃花源记》中“初极狭,才通人。复行数十步,豁然开朗。”的意境。在此区域设置体量为一层的展示空间,南侧对外临路,北侧结合地势还原并扩大水系形成一汪湖水,建筑枕水而建,同时隔绝了内外、谦卑低调。游客穿过建筑后视线豁然开朗,可看到开阔的水面,茂盛的树木,随地势抬高的建筑聚落,以及与山地融合的建筑。
Sewing the inside and outside: The southernmost end is also the lowest point of the site, with mountains on both sides, forming a small opening. The process of entering is like the artistic conception described in “Peach Blossom Spring”. A one-story exhibition space is set up in this area. The south side faces the road, and the north side restores and expands the water system to form a lake in combination with the terrain. The building is built on the lake, isolating the inside and the outside, and being humble and low-key. After passing through the building, the visitors’ vision is suddenly open, and they can see the lake, lush trees, building settlements raised by the terrain, and buildings integrated with the mountains.
▼交流中心入口,the cultural exchange center entrance ©张登星
▼枕水而建的建筑,the buildings built along the water©张登星
▼入口大厅空间,entrance hall interior space©张登星
▼多功能空间,multifunctional mixed space©张登星
▼茶文化空间,tea culture space©张登星
构境 | 自然消隐
Constructing the environment | Nature ang disappearance
文化建筑需要寻找一种途径,通过对人文、地域文化的提炼与对建筑空间的建构,实现外在形式与内在气质的统一。
Cultural architecture needs to find a way to achieve the unity of external form and internal temperament through the refinement of humanistic and regional culture and the construction of architectural space.
▼嵌入山体的综合服务楼,the integrated building embedded in mountain©张登星
消隐意境:以径山景区独特的“消隐”的气质为理念,通过削减、打碎建筑体量,增加灰空间、架空层、风雨廊等要素削弱建筑实体的存在感,通过选择原木材质、保留现场植物等手段形成 “大隐隐于市”的禅意空间,达到“显山露水隐见屋”的效果。
Disappearing artistic conception: Based on the unique local characteristics of Jingshan, the presence of the building entity is weakened by reducing and breaking up the building volume, adding gray space, corridors that shelter from wind and rain. By selecting raw wood materials and retaining on-site plants, a Zen space of “hiding in the mountain” is formed, achieving the effect of “showing the mountains and water but hiding the houses”.
▼消隐在自然中的建筑,the architecture hidden in nature©张登星
山水意境:径山给人印象最深的莫过于“山、水、松、竹、云”的生态环境,景观设计大量采用了本地化的植物和景观材料,将建筑隐藏起来,将山水绵延进来,形成本案的“山水世界”。
Landscape conception: The most impressive thing about Jingshan is its ecological environment of “mountains, water, pines, bamboos and clouds”. The landscape design extensively uses local plants and materials to hide the buildings and extend the mountains and waters to form the “mountain and water world” of this case.
▼从建筑内生长出来的保留树木,preserved tree growing out of the building©陈晨
▼自然野趣的景观,the natural and wild landscape©张登星
结语
Epilogue
径山禅茶文化交流中心项目是基于特殊环境中建筑设计创作的一次实践。通过对环境的分析,将功能与之紧密融合,创造适应特殊条件的地域性建筑,恰当的运用“自然”的方式诠释建筑与环境共生的含义。此外,设计在植根于环境的同时,也要考虑在地性和人文特征,对历史文脉等做出回应,否则只会使建筑内涵千篇一律,丧失特点。项目落成后的效果很好的反映了设计意图,充分尊重自然的同时也体现出建筑群体在山谷环境中的消隐意境、在地特点和文化特色,并呈现出绿色、生态、秀美、开放的独特性格。
The Jingshan Zen Tea Culture Exchange Center project is a practice of architectural design creation based on a special environment. Through the analysis of the environment, the functions are closely integrated with it, creating a regional architecture that adapts to special conditions, and appropriately using the “natural” way to interpret the meaning of the symbiosis between architecture and environment. In addition, while the design is rooted in the environment, it is also necessary to consider local and cultural characteristics and respond to historical context, otherwise the architectural connotation will become monotonous and lose its characteristics. After completion, the project has well reflected the design intention. While fully respecting nature, it also embodies the hidden artistic conception, local characteristics and cultural features of the building complex in the valley environment, and presents a unique character of green, ecological, beautiful and open.
▼整体鸟瞰,overall aerial view©张登星
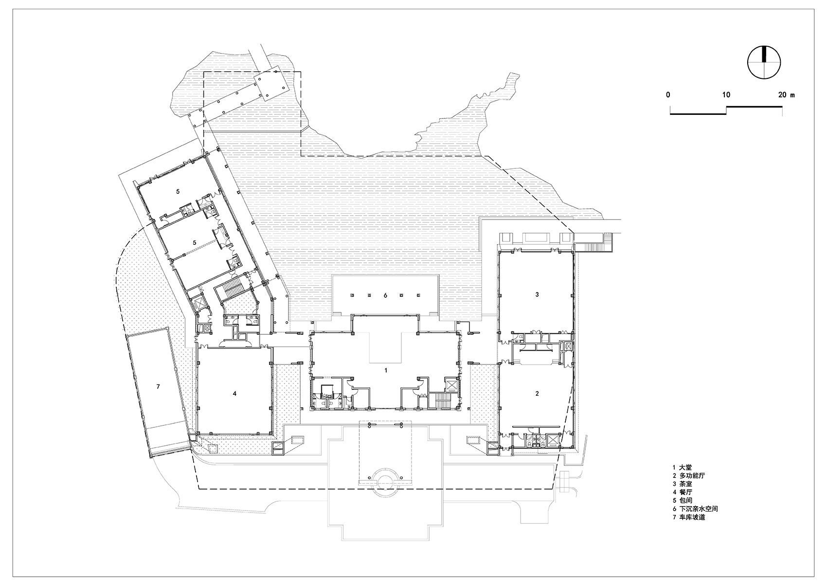
▼交流中心主入口一层平面图,first floor plan of the cultural exchange center entrance©中科院建筑设计研究院有限公司
▼交流中心主入口立面图,elevations of the cultural exchange center entrance ©中科院建筑设计研究院有限公司
▼交流中心主入口剖面图,sections of the cultural exchange center entrance ©中科院建筑设计研究院有限公司
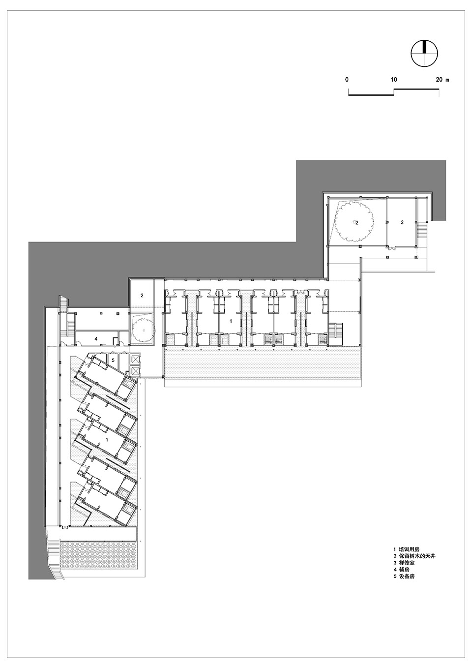
▼综合服务楼一层平面图,first floor plan of the integrated service center©中科院建筑设计研究院有限公司
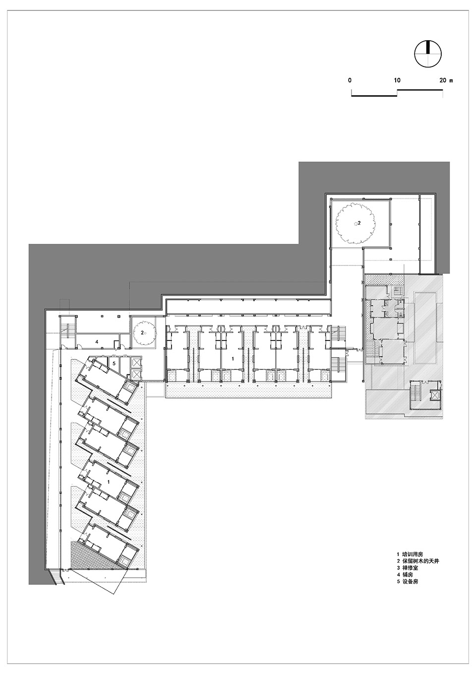
▼综合服务楼二层平面图,secondfloor plan of the integrated service center©中科院建筑设计研究院有限公司
▼综合服务楼二层立面图,elevation of the integrated service center©中科院建筑设计研究院有限公司
▼综合服务楼二层剖面图,sectionsof the integrated service center©中科院建筑设计研究院有限公司
项目名称:径山禅茶文化交流中心
项目地点:浙江杭州
详细地址:杭州市余杭区径山镇
项目类型:文化建筑
设计时间:2018 年
建成时间:2023 年
用地面积:32619m²
建筑面积:19445m²
设计单位:中科院建筑设计研究院有限公司(杭州分公司)
项目负责人:安小静
项目主创:陈晨、程玉春、孔凌雷
团队成员:
建筑室内及景观:赵才先、车晓清、庄建伟、马蓉、张婧泓、王菲、王艳雪、代衔位、梁露
结构:许华杰、宋彧、徐鹏、陈洋、张晨、董银兰
设备:赖兴伟、白韧、陆国建、耿文睿
合作单位:
业主:杭州余杭旅游开发有限公司
EPC 单位:中国电建集团华东勘测设计研究院有限公司
摄影:张登星、陈晨
客服
消息
收藏
下载
最近































