查看完整案例

收藏

下载
品牌气质通常定义了其办公空间本身,当创造,活力,思索成为品牌发展的内核时,办公场景也被催化成了复合型交互实验场。这间位于厦门五缘湾,享有 270 度海景的 BASAO 总部新办公室,除了传统办公场景外,还置入了集展示,研发,零售模拟等多重功能模块,能够回溯品牌核心的“空中茶园”。
©LightString Studio
The brand’s ethos often defines its own office space. When creativity, vitality, and thinking become the core of brand development, the office environment is transformed into a complex interactive experimental space. Located in Wuyuan Bay, Xiamen, and enjoying a 270-degree sea view, BASAO’s new office not only serves traditional office functions but also incorporates multiple functional modules such as showroom, R&D lab, and retail simulation, as a “sky tea garden”, reflecting the brand’s core concept.
▼项目入口,entrance©LightString Studio
▼办公室概览,overview of the office©LightString Studio
▼茶水间,pantry©LightString Studio
▼茶水间局部,pantry©LightString Studio
▼体现“空中茶园”的概念,reflecting the “sky tea garden” concept©LightString Studio
▼茶台,tea desk©LightString Studio
在设计上,我们将景观作为品牌叙事的拓展线索——茶园层叠的韵律与茶农的劳作,被延续成为办公空间的丰富层次与团队架构的社群协作。独立办公被放置在自然采光最好的空间边侧,围绕着中心区域环环相扣的协同功能组团,结合由不同轴线和视角定义出的洞口设计,形成具有穿透感的空间层次。
In terms of design, we use the landscape as an extended narrative thread of the brand – the rhythm of the layered tea gardens and the labor of the tea farmers are translated into the rich layers of office space and the collaborative structure of the team. Independent offices are placed in the best naturally lit areas, surrounded by a series of collaborative functional groups connected around the central area. This is combined with openings defined by different axes and perspectives, creating a sense of penetrative spatial layers.
▼会议室,meeting room©LightString Studio
▼独立办公区,independent office©LightString Studio
▼办公区域,office area©LightString Studio
▼办公区域,office area©LightString Studio
▼办公区域细部,office area detail©LightString Studio
在材料控制上,我们为了避免过多使用同一材质所带来的单调感,选择在统一的氛围下,叠加自然属性相似但视觉效果有所变化的多种肌理,用以丰富空间的细节和触感。对于照明设计,我们则根据场地条件和使用功能去规划适配的照明方式,比如在自然采光优越的独立办公空间里,人工照明就会尽量弱化,只做辅助型柔和照明,让自然光线成为主角;在相对幽暗的人工光占主导作用的场景里,照明设计则会考虑多重层次,烘托出丰富的场景构建。
Regarding material control, to avoid the monotony that comes with overusing a single material, we chose to overlay various textures with similar natural properties but differing visual effects, enriching the details and tactile feel of the space. For lighting design, we plan appropriate lighting solutions based on the site conditions and functional needs. For example, in independent office space with excellent natural lighting, artificial lighting is minimized, serving only as soft supplementary lighting, allowing natural light to take the lead. In darker areas dominated by artificial lighting, we consider multiple layers to enhance the richness of the spatial composition.
▼丰富的空间细节,rich space detail©LightString Studio
▼多种材料的组合, various material combinations©LightString Studio
我们认为,设计需要在最终的表达中尽量隐身,把空间交还给使用者。这种隐身是通过精准地塑造空间氛围使其符合品牌气质所达成的。当一切设计都恰好的时候,空间才能够真正由此生长。
We believe that design should strive to be as invisible as possible in its final expression, returning the space to the users. This invisibility is achieved by precisely shaping the spatial mood to align with the brand’s ethos. When all the design elements are just right, the space can truly grow from there.
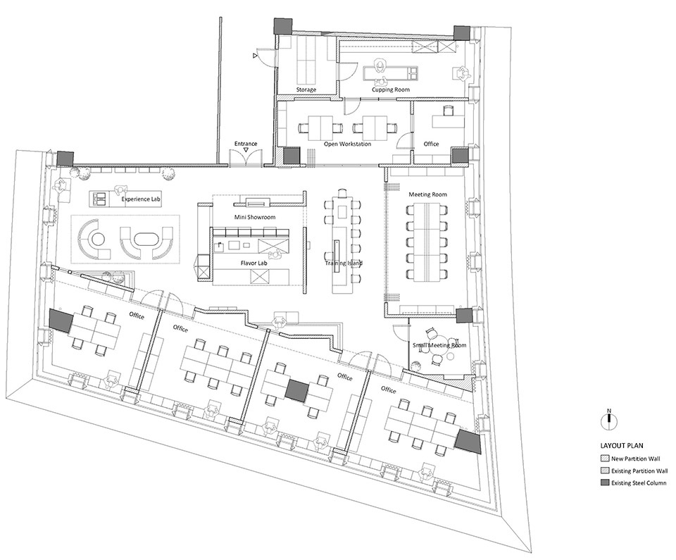
▼平面图, plan©Neutra Architects
项目名称:BASAO 办公室
项目类型:室内设计
项目地点:厦门,中国
项目业主:BASAO 佰朔
设计公司:Neutra Architects
公司所在地:上海,中国
主创建筑师:赵子涵,叶清
设计时间:2023 年 11 月 – 2024 年 03 月
建造时间:2024 年 03 月 – 2024 年 06 月
建筑面积:360 平方米
施工单位:厦门市翰禹装饰工程有限公司
木作配合:乔弘(厦门)木业有限公司
照明设计:Ehome 和光照明
空间影像:光弦 Studio
联络人姓名:赵子涵
联络人手机号:15800543010
客服
消息
收藏
下载
最近





























