查看完整案例

收藏

下载
受启发于大自然的适应性和自我更新能力,“正向能源宅”试图最大限度地减少对自然环境的消极影响,并致力于打造一个更具弹性的未来。
The Positive Energy House is inspired by nature’s resilience and rejuvenation. Serving as a net-positive energy building, this dwelling not only diminishes its environmental impact but actively contributes to regeneration by producing surplus energy.
Foreword
“How to face the low-carbon life in the future? Obviously, we need to have a new lifestyle. It is not only to make us convenient and comfortable, but also we have a responsibility. How to make people develop healthier? We cannot waste.” An entrepreneur said at the first “ESG Global Leaders Summit” in 2021. Living in symbiosis with the environment, advocating low-carbon behavior, and meeting the needs of comfortable living with zero energy consumption (rather than just obtaining zero energy consumption标识认证 and technology stacking), this is the main goal of this project renovation, indicating that this renovation is not only the design of a single project, but also an exploration of an energy-saving renovation model facing the future.
▼Overall aerial view, aerial view © 张超
▼东侧鸟瞰,east aerial view© 众建筑
正向能源宅为深圳滨海一栋山地住宅的改造,南侧朝海,北侧靠山。临海的环境不仅使得室内潮湿,较高含盐量的海风也导致设备及电力系统受损。茂密的大树无法遮挡夏日的烈日,南侧室内光照过强,北侧靠山房间却因进深过大没有足够的采光和良好的通风。再加上建造初期建筑的节能标准较低,导致现状建筑整体能耗很高。
面对一系列建筑本身的问题,以及节能改造模式探索的目标,众建筑提出了一种可复制的模块化改造方式:三层外表皮系统。
Its design, a transformation of an existing property, showcases how older buildings can be revamped for peak efficiency without starting from scratch. Renovating existing properties aligns with environmental sustainability principles, contrasting with the resource-intensive process of demolition and reconstruction.
▼模块化改造分析图,modular renovation analysis drawing © 众建筑
▼整体鸟瞰,overall aerial view© 众建筑
三层表皮系统
Three-layer Envelope System
三层表皮系统是将住宅升级为高效节能建筑的一种简单、可持续、成本有效的方式。单独去处理每一层表皮避免了将不同功能集成到单一建筑围护结构带来的复杂性,每层表皮之间也形成了灵活的间隙空间。
▼单体改造策略分析图,unit renovation analysis drawing© 众建筑
Our renovation strategy involved adding two additional layers to the existing structure. To enhance energy efficiency, the building was enveloped with a well-sealed and insulated skin.
▼东侧鸟瞰,east aerial view© 众建筑
▼南侧鸟瞰,south aerial view© 张超
▼整体俯视,overall top view© 众建筑
最内层为原建筑立面,不做大动作改造。适当增大窗洞口,以增加自然通风、自然采光以及空间的开放性。中间层为气闭隔热层,为南北侧的玻璃幕墙和东侧外墙保温层,该层保证了空调使用时的节能效果。最外层表皮为外挂太阳能板遮阳系统,最优的遮阳也提供了最大的太阳能光伏板可利用面积。外挂遮阳系统层层错开,保证了室内舒适的视线,并允许空气上下流通。
▼三层表皮改造分析图,three-layerenvelope system analysis© 众建筑
On the south side, this new layer created an interstitial atrium space outside the original building but within the insulated shell. Enclosed with a triple-glazed glass facade, the atrium incorporates operable windows and doors for passive ventilation during mild weather.
▼南侧立面,south front view© 众建筑
▼东南视角,southeast view© 张超
最外层表皮的太阳能板遮阳系统为吊挂结构,利用屋面原有结构新增向外伸出的斜撑,逐层向下吊挂用于支撑太阳能板的水平三角桁架结构,总共为四层,层层向下错开,以避免相互遮挡。
Within the original building, an air vent was integrated with the existing elevator core, utilizing the chimney effect to draw air through the house while also serving as a light well to maximize natural illumination and reduce reliance on artificial lighting.
▼外挂结构分析图,added structure analysis© 众建筑
▼太阳能板遮阳系统立面,solar panel system side view© 张超
▼太阳能板遮阳系统立面局部,solar panel system detail© 张超
▼太阳能板遮阳系统概览,solar panel system overview© 张超
三角桁架的斜面布置有龙骨和打孔钢板,来固定 200*200mm 的碲化镉光伏板。小尺寸的光伏板鳞片状相互错开,可以形成不同尺度的遮阳层,以及圆弧转角等个性化外观,来进一步实现建筑与光伏的一体化设计。
▼太阳能板遮阳系统俯视,solar panel system side top view© 众建筑
混合环境系统
Mixed Environmental System
三层外表皮之间的间隙空间形成了混合的环境系统,在不同的天气条件下有着不同使用方式的灵活性。
在温度适宜的天气,内层和中间层全部打开,形成良好的自然通风;在温度较高的天气,内层打开,中间层关闭,采用机械通风来促进室内空气的流通,对湿度进行一定程度的控制;在温度极高的恶劣天气,将内层和中间层关闭,开启空调和新风系统,并对湿度进行控制。这种表皮不同的开启组合方式,有效的减少了一年内空调的使用时间,并保证使用的舒适度。
▼三层表皮通风模式分析,ventilation analysis of three-layer envelope system© 众建筑
During moderately severe weather, the atrium can be sealed and mechanically ventilated to cool the house efficiently, reserving the need for air conditioning for most extreme weather conditions. Additionally, the atrium features a climbing wall tailored for the home owner, an enthusiastic rock climber, spanning across and granting access to all four levels of the house.
▼剖透视图,perspective section© 众建筑
在中间层和外层表皮之间的间隙层为半室外空间,有通高的大露台、小阳台,以及地面的庭院空间,有着良好的遮阳和通风。
▼南侧露台,south terrace© 张超
▼南侧庭院,south courtyard© 张超
▼南侧阳台,south balcony© 张超
中间层和内层表皮之间的间隙层为用于缓冲的通高室内空间,一边是整齐的玻璃幕墙,一边是凹凸变化的原住宅立面。结合各层交错的平台,以及四层通高的攀岩墙,形成了一个连接室内外的过渡空间。
▼南侧室内,south interior© 张超
▼南侧间隙层,south layers© 张超
正向能源系统 Positive Energy System 正向能源宅增加最外层的遮阳系统后,在改善了光照环境的同时,可以通过太阳能光伏板产生足够多的电能。不同的部位太阳能板发电效率不同,合计发电量约 1.8 万度,超过预估最大耗电量 1.2 万度,以达到能源的“正向”。多余的电能可以储存起来,或者并入市政电网。
Extending beyond the new building skin is an outer layer comprised of solar roofs. These roofs harness the sun’s energy to power the house and are adorned with cadmium telluride photovoltaic panels.
▼改造前后遮阳分析图,sunshade analysis – before and after© 众建筑
这是一种对建筑进行能源微改造的方式,来形成建筑单体能源的自给自足,甚至能源的正向结余。一方面是对可再生能源的充分利用,另一方面是通过主动式节能技术,如机械通风、智能新风等,以及被动式节能设计,如通高间隙层的拔风设计、高效遮阳、高性能维护体系等,来减少建筑的使用能耗。通过两个方面的叠加来形成最终存量建筑改造的能源正向。
Supported by lightweight prefabricated truss structures, these roofs offer significant shade for the house and outdoor terraces while maintaining unobstructed airflow and sightlines. The stacked layers of curvilinear roofs tiled in solar panels create a cohesive architectural form.
▼太阳能板遮阳系统立面,solar panel system© 张超
▼太阳能板遮阳系统仰视,solar panel system upward view© 张超
展望 Outlook 正向能源宅尝试寻找一种全生命周期减少碳排放的建筑改造方式和可再生能源的使用方法。最终,我们希望通过三层皮的改造策略以及光伏板与遮阳系统一体化的预制系统,来达到产能大于消耗的正向能源住宅范例,最终成为一种可被广泛推广的存量更新节能微改造模式。
The concept of wrapping an existing house with two additional layers to reduce energy consumption and generate electricity serves an innovative strategy and a model for sustainable renovation.
▼黄昏光线,light during dusk© 众建筑
▼总平面图,site plan© 众建筑
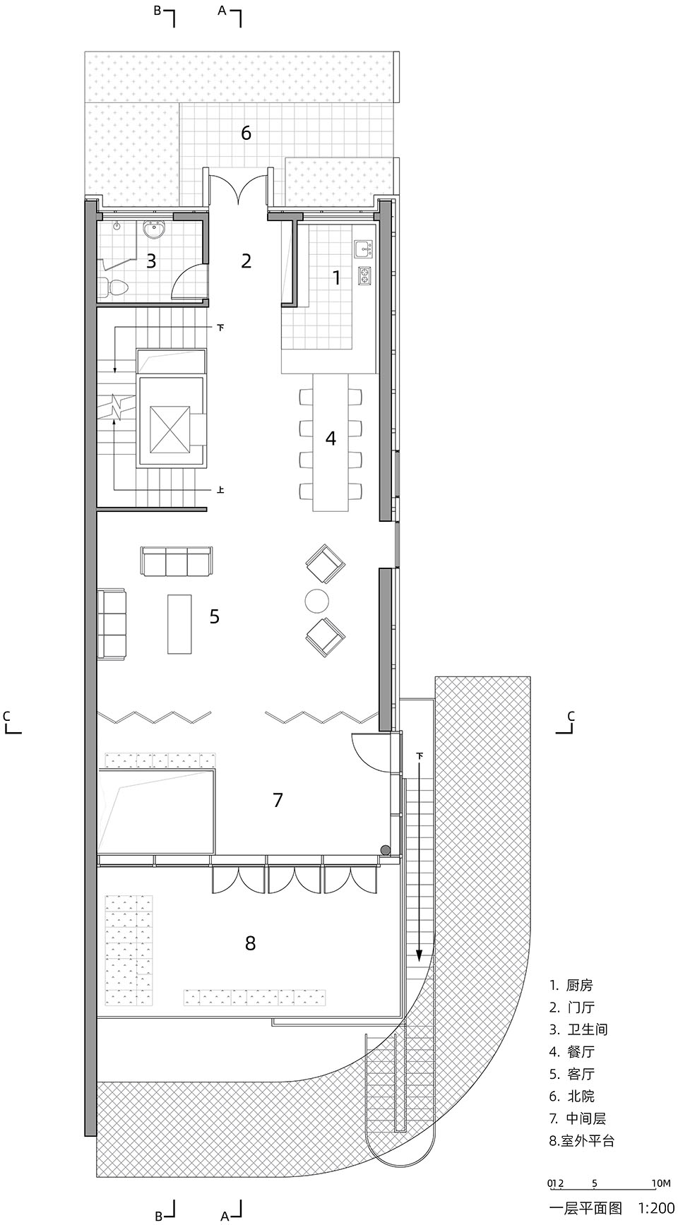
▼一层平面图,1F plan© 众建筑
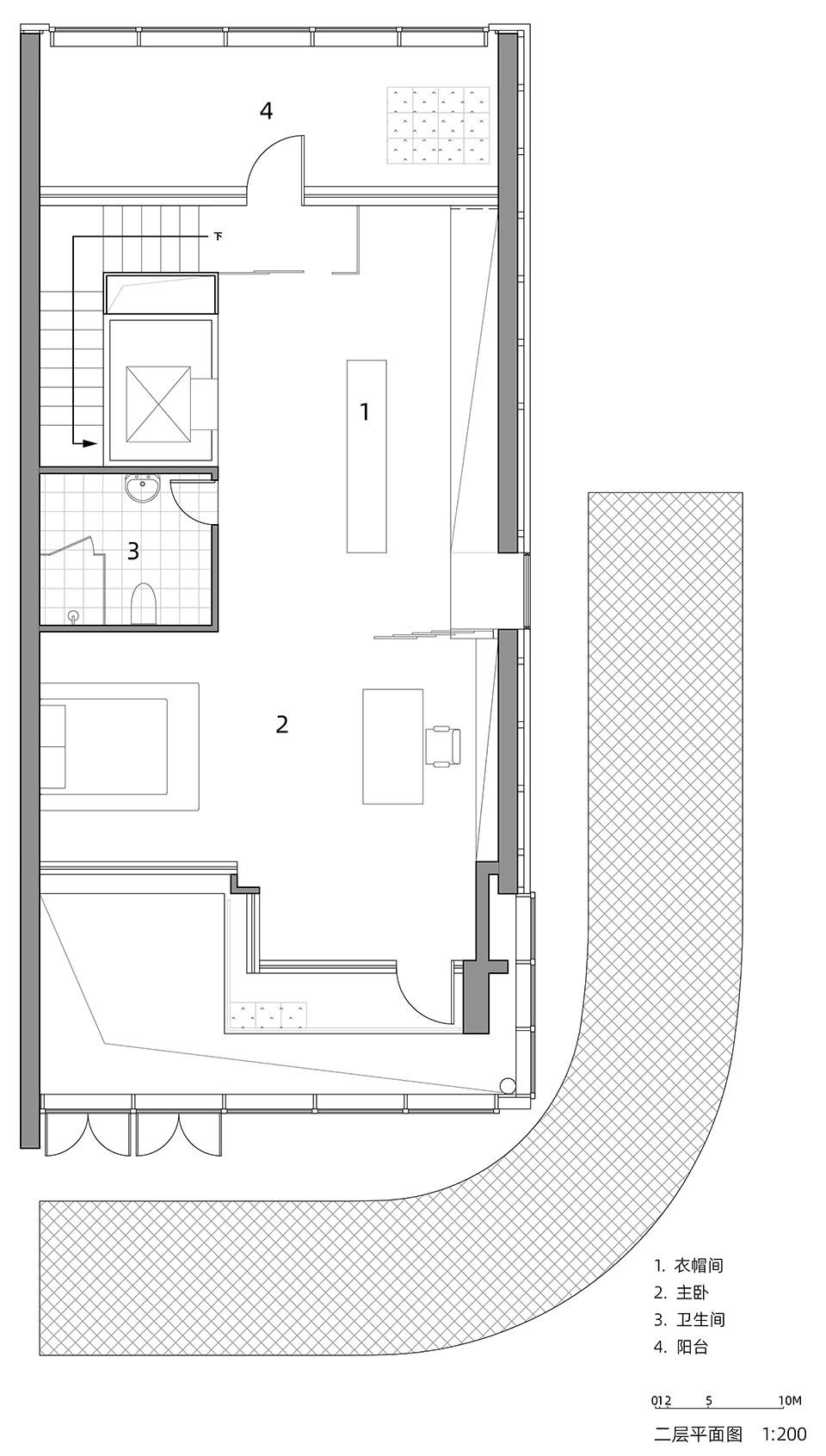
▼二层平面图,2F plan© 众建筑
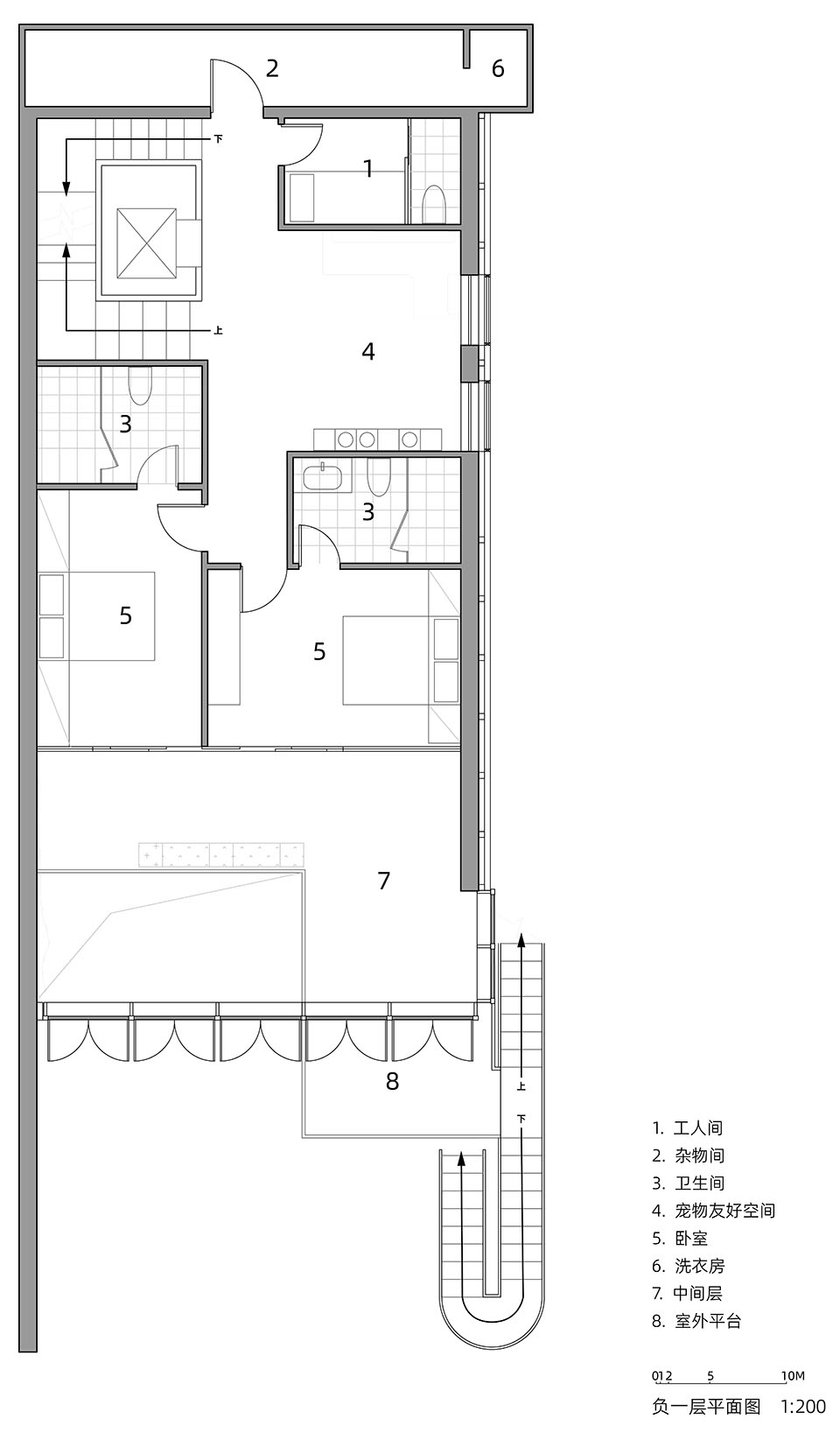
▼负一层平面图,B1F plan© 众建筑
▼负二层平面图,B2F plan© 众建筑
▼立面图,elevation© 众建筑
▼剖面图,sections© 众建筑
▼南侧墙身大样图,south wall detailed section© 众建筑
▼东侧墙身大样图,east wall detailed section© 众建筑
项目地点:深圳市龙岗区
设计公司:众建筑
设计主持:何哲,沈海恩(James Shen),臧峰
设计团队:许嘉琦,王程琛,袁樱子,何京蕴(Anouchka van Driel),林铭锴,张萌,杨全越,侯莹琪,黄佳,谢若颖
结构设计:刘粟/北京首昂建筑结构工作室,北京市住宅建筑设计研究院有限公司,广州瑞华建筑设计院有限公司
设备设计:北京市住宅建筑设计研究院有限公司,广州瑞华建筑设计院有限公司
光伏设计:深圳赛格龙焱能源科技有限公司
整体土建/施工单位:深圳市博昇实业有限公司
设计时间:2022 年 1 月~9 月
完工时间:2023 年 5 月
建筑面积:505 平方米
摄 影:张超,众建筑(王程琛)
制 图:智柳,张萌
Project name: Positive Energy House
Project location: Longgang District, Shenzhen City
Design Company: People’s Architecture Office
Principals: He Zhe, James Shen, Zang Feng
Design team: Xu Jiaqi, Wang Chengchen, Yuan Yingzi, Anouchka van Driel, Lin Mingkai, Zhang Meng, Yang Quanyue, Hou Yingqi, Huang Jia, Xie Ruoying
Structural Consultant: Liu Su/Beijing Shouan Architectural Structure Studio, Beijing Institute of Residential Building Design & Research Co., Ltd., Guangzhou Ruihua Architectural Design Institute Co., Ltd.
Equipment Consultant: Beijing Institute of Residential Building Design & Research Co., Ltd.,Guangzhou Ruihua Architectural Design Institute Co., Ltd.
Photovoltaic design: Shenzhen SEG Longyan Energy Technology Co., Ltd.
Construction Company: Shenzhen Bosheng Industrial Co., Ltd.
Design period: January to September 2021
Completion date: May 2023
Building area: 505 square meters
Photography: ZC Architectural Photography Studio, People’s Architecture Office(Wang Chengchen)
Drawings: Zhi Liu, Zhang Meng
客服
消息
收藏
下载
最近


















































