查看完整案例

收藏

下载

翻译
GRAN JARDÍN - Laboratorio Magdalena
Este es un proyecto en el cual se propone un Campus de investigación universitario centrado en la agroindustria, el cual nace del propósito de cultivar el conocimiento en la población del municipio y a su vez transmitir este a los nuevos habitantes, adicionalmente, este se convierte en un centro educativo de carácter departamental. Esta manzana educativa se plantea a partir de nuevos espacios atípicos al territorio que facilitan la circulación y reunión de las personas junto con edificios institucionales que conforman un nuevo borde hasta ahora inexistente en el lugar, este nuevo borde es el encargado de consolidar la nueva manzana, de esta misma manera los edificios respetan la trama de calles del barrio colindante y evitan interrumpir o cambiar el transito de las personas. El centro de manzana es una nueva reinterpretación de las condiciones actuales de Ambalema, las tradicionales casas que protegen al peatón con techos en teja por columnas pero que a su vez ocultan la naturaleza en un patio posterior amplio son la esencia del pueblo, en la propuesta se reutilizan estos recursos para generar una arquitectura que aunque se distancie en dimensiones persiga la intención de emular el funcionamiento del municipio,
Mapa de localización del municipio de Ambalema
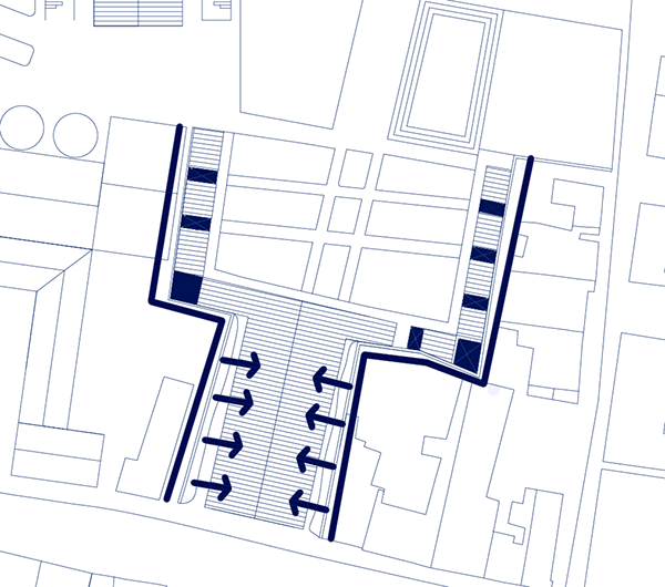
Planta General PRIMER PISO
Axonometría general del proyecto
Salas de estudio y biblioteca
Edifcio universitario - Facultad Ingeniería de alimentos
Comedor público
客服
消息
收藏
下载
最近






















