查看完整案例

收藏

下载

翻译
authors: Miloshevska Marija and Isijanin Bojanasemester: VIIIproject task: Thermal bathlocation: Bansko, Strumicapedagogical team: prof. Dr. Mihajlo Zinoski, assistant. Jana Brsakoska, MSc, assistant. Liljana Dimevska, MScUniversity: "St. Cyril and Methodius", Faculty of Architecture - Skopjeyear: 2022/2023
photo credits: Teo Angelovski
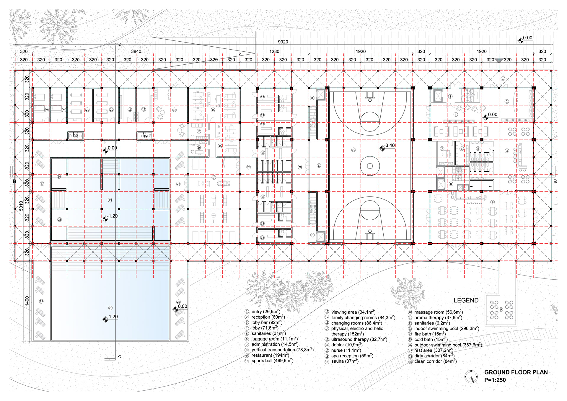
The goal of this year's Architectural Studio 8.2a was to design a facility for a thermal bath in the village of Bansko, Strumica, which was the subject of research and analysis. Within the framework of the architectural concept, it was also necessary to foresee medical work rooms, a recreational sports hall and accommodation capacity.
The village of Bansko is located in the Podgorje area, 12 km east of the city of Strumica, at the foot of Belasica mountain. In the village there is a Roman thermal bath, discovered in 1978 during the digging of the foundations for the Car Samoil Hotel. The spa used the thermal-mineral waters of the Parilo spring, whose temperature is 72°.
The main elements of the context are the hilly topography of the village with the dense forest of lindens, chestnuts and ferns, the clear mountain streams, as well as the remains of the Roman bath and the Turkish bath building. The chosen location is the end point of an enfilade of monuments with historical and cultural value.
This architectural concept for a thermal bath is a ground-floor building that is easily adapted to the natural structure of the terrain, and houses the functions of a thermal bath with rooms for physical and other types of therapies, a gastronomic section and a recreational sports hall, while the accommodation of visitors is in small buildings - bungalows. The communication between the accommodation facilities and the thermal bath facility takes place through a communication tower that physically connects the two parts of the complex.
The facility represents a linear arrangement of contents and surfaces, with which the basic contents for a facility of this type (thermal bath, restaurant and sports hall) are emphasized with elevated volumes. With the use of the system of arches and cross vaults in the porch around, a direct connection with the shaping of the ancient baths is created through the form, and a transformation was made in the materialization of the elements through the use of concrete and glass. The horizontal and vertical communication is clean and clear, both between the contents inside the building, and between the bath and the external accommodation part, through an appropriate ground floor solution. In addition, the facility of the thermal bath visually connects with the historical and natural entities of the place. The low volume of the object integrates with the terrain and the context, in order to merge with the natural setting, even its dominance.
The structure is made up of two matrixes of skeletal construction systems, which coincide and that allows easy orientation and communication between uses in the building. The structural elements further reshape the space, forming a core and a shell, separated by a transparent wrap. The pools and their segments are easily separated according to the positions of the pillars and their mutual parapets, creating a visual unity.
Analyzing works from various media that have in their themes light, texture and finally, water, as elements and substances that affect objects and spaces, led to the development of ideas about what is, and can be, their role in various typologies of objects, connections between uses etc. The analysis of such views contributed to the creation of this project in terms of design and functionality.
客服
消息
收藏
下载
最近



























