查看完整案例

收藏

下载

翻译
Architects:Badoloka
Area:5000ft²
Year:2022
Photographs:Studio Frameify
Lead Architect:Praveen Ram
City:Auroville
Country:India
Text description provided by the architects. The Kalarigram House is located on the outskirts of Auroville, within a site that houses a Kalari school of martial arts and a treatment center. It was designed for the Kalari master, his family, and guests attending various treatments and workshops. The client's requirements emphasized creating a versatile multifunctional space that integrates rich traditional elements and local vernacular with modern living standards.
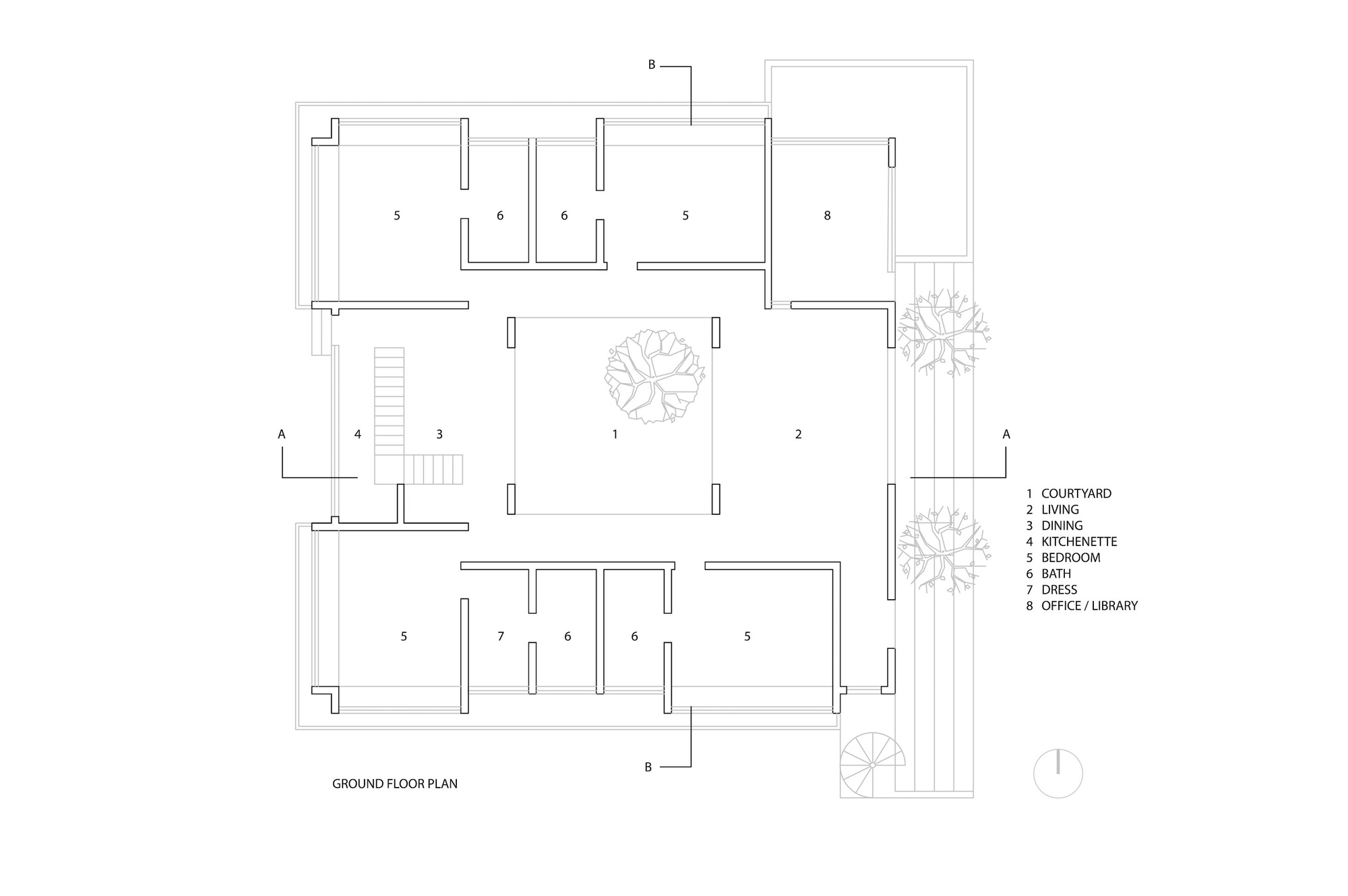
Given the active environment surrounding the house, including the Kalari school and clinic, the primary design goal was to enhance privacy by inwardly orienting the building. This approach led to the establishment of a central courtyard, which serves as the house's focal point. Surrounding open spaces adjacent to the courtyard can be adapted for informal living areas, private art and music performances, workshops, and other activities. The courtyard also plays a crucial role in providing natural light and regulating the microclimate within the house.
The design allocated formal, enclosed spaces only for the eight bedrooms, while areas like the living room, dining area, and kitchenette are arranged openly around the courtyard. This layout fosters a sense of openness, connectivity, and social interaction among residents and guests. Main cooking activities are centralized within a larger kitchen block outside the house; hence, a smaller kitchenette is provided here for lighter cooking tasks.
The bedrooms feature large bay windows screened with brick jalis on the exterior. These ensure privacy from the activities around the house, facilitate natural ventilation and cooling during the summer, and cast intricate patterns of light that enhance the aesthetic appeal of the spaces while shielding them against the intense summer sun. These brick jalis give the house a distinctive character as its exterior skin. They add a traditional yet elegant touch, often blending cultural heritage with modern aesthetics.
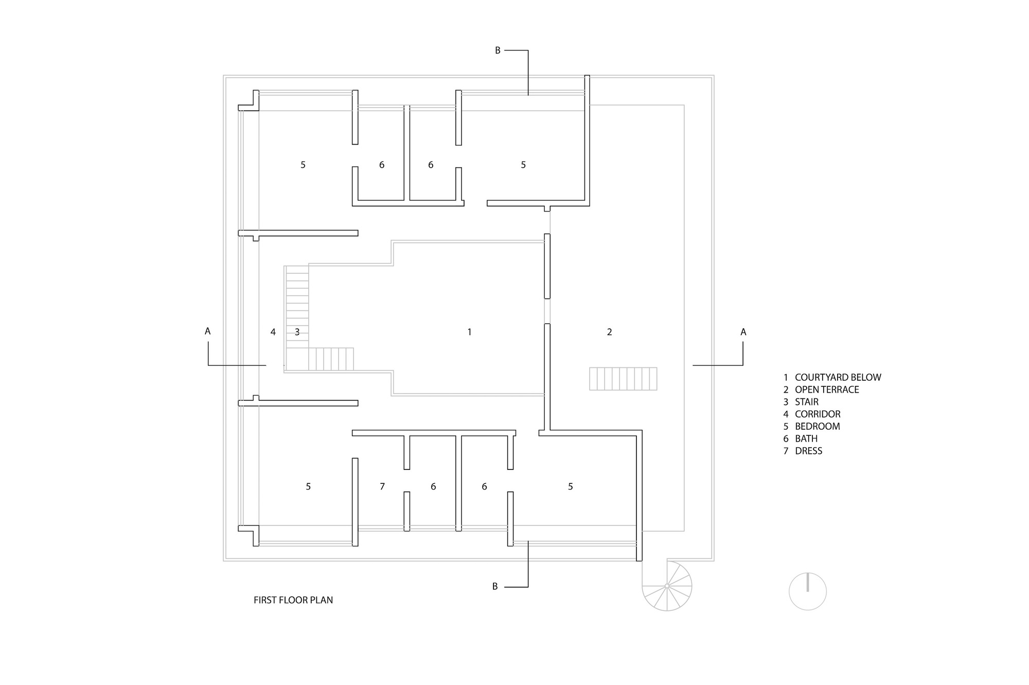
An informal open terrace for evening parties, accessed through the house and also independently from the outside by a spiral staircase, leads to the top floor of the house, which includes an attic space with clay tile roofing. This attic space serves multiple functions, primarily acting as a versatile area for workshops and gatherings. Additionally, it serves as a barrier against rainwater leakage and excessive heat from the sun, thereby protecting the bedrooms below.
The architectural framework surrounding the courtyard was experimental, blending traditional stone pillars with a robust foundation of concrete and beams to support the slabs. The rest of the house utilizes locally sourced bricks for load-bearing purposes, which is initially considered a manufacturing defect, distinguished by their surface pattern. This unique feature of the exposed brick surface was embraced to impart a distinctive character to the residence, complemented by exposed cement plaster, cast iron, and wood finishes throughout, achieving the raw aesthetic and timeless quality envisioned from the inception of this project.
Project gallery
客服
消息
收藏
下载
最近




















