查看完整案例

收藏

下载

翻译
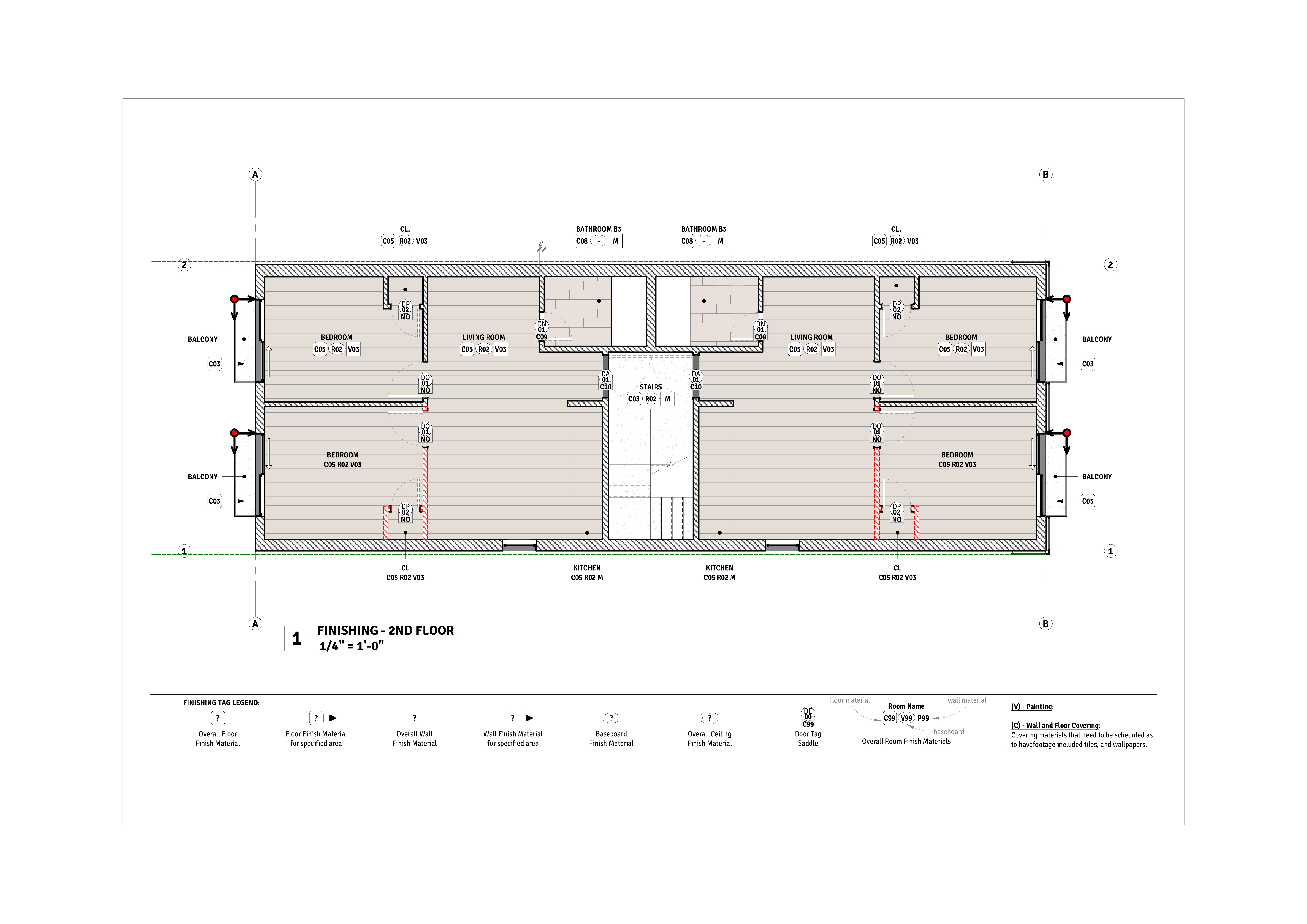
89 Schenectady Avenue,Brooklyn, NY
4 story, penthouse & cellar, 7-family residence
Software: Autodesk Revit
Detail level: LOD 400
The BIM model and specification book were delivered in terms of work in YossiG company.
The list of work for the interior part includes:
- a first draft of the building and the original space planning - a precise implementation of the interior design concept in Revit- work on the unique custom Revit families - a calculation of the interior materials, lighting fixtures, electrical fixtures - an interior door schedules and material take-offs- signage details
客服
消息
收藏
下载
最近












