查看完整案例

收藏

下载
色彩、光线和简洁的几何都是为了表达内心的情感——巴拉甘
这个高端的私人办公空间,结合了办公、休闲和小型会客接待的功能,目的是让使用者精神放松。原始结构是一个九十多平米的开放长方形空间,通透且直接。将其转化为一个动线流畅、功能完备的设计闭环对设计师是一项挑战。虽然空间较小,功能需求多,但设计师通过“藏”与“现”的逻辑,合理地安排了空间动线。
01 SPATIAL CIRCULATION
内厅流通
- 建筑的原始轮廓界定了空间形态,但异形墙体却为内外空间的共享创造了可能。借助倾斜的角度,突破了空间的刚方正格局,以小巧的设计打造出大的效果,消减了边界的压迫感。
多重立面系统铺垫成为环境的基本逻辑,形成丰富的立面表情。空间应该是内向的、流通的,场景随着光影的细微变化影响着每一个参与者对于整体环境的感知,传达出无声的愉悦与平静,那么,空间这件艺术品就达到了近乎完美的境界。
定制的异型办公桌与内嵌式墙体置景共同展现了独特个性。每个元素都是为这个空间量身定制,彼此之间相互呼应、配合,共同构成了空间的核心特质。
主办公区域被外立面的巨大采光窗户和内部交错的设计结构所包围,通过自然光的相互渗透,营造出了富有层次的光影通道。这样的设计时刻展现着动与静、明与暗、内与外的场景变化,增加了空间的多维度体验。
02RICH ELEVATION
核心 多维立面
若是探究项目中最值得称颂的部分,便是光的利用。每一处空间的隔断,都不是生硬闭塞的切割,而是为光打造的出口,不管动线如何蜿蜒,狡黠的日光总能找到恰好的缝隙投射进来。
随着晨夕推移,仿佛看得见空间的“呼吸”,角度、色彩一一变化,为空间留下持续更迭的惊喜。
多功能区既开放又私密,是整个办公空间最具潜力的部分。玻璃墙体的包围使这个空间既独立又不孤立,以一种宽广的态度向周围敞开,既满足了多样的需求又保留了自身的特色。
03LAYERS
SHADOWS
廊道 层次光影
灰色的玻璃隔断和引人注目的几何结构墙体共同构建了新的入口,突破了立面的单一秩序,使空间从平淡中挣脱。这个设计虽简洁和质朴,却也充满了动态和变化。
越过光的阶梯,是一道文化长廊。看似平铺直叙,实则暗藏玄机,业主丰富的藏书镶嵌在墙面间隔林立的抽拉式隐形书架之中,仿佛从墙面生长出来,衍生为空间的一部分。
层次和光影以渐进的方式作为媒介,通过定制的几何结构创造了一个开放和共融的立体空间界面。
光,从每一个刻意被切割的缝隙中透过来,也成为了引人前行的向导。循光而去,差异的转轴关系构建出不同功能、不同感知的有机复合空间。相较于直白而热烈的空间语言,内敛与克制才是设计中极难苛求的状态。
04PRELUDE
门厅 序幕
异形的定制玄关台,与墙面融为一体,奠定了整个空间的基调,也拉开了设计旅程的序幕。
凹进墙面的吊灯,绵延而出的操作端台,如管中窥豹,激发出来访者探索的欲望。层次与光影是渐次递进的媒介,以定制的几何结构为载体,创造出开放、共融的立体界面。逐渐收窄,逐渐开阔,再收窄,再开阔。
延展的端台直通玄关,异形墙体背后便是主办公区。各个区域间既相对独立又紧密相连,充满了对光与影平衡的深思。
设计的价值,从来都不是体现在刻板的教条与艰深的理论,而是设计者的思考过程。它需要深植于使用者的精神诉求,以设计者的思维火花浇灌,再辅以生活的哲思和情感的共鸣,最后依托物理法则建立。
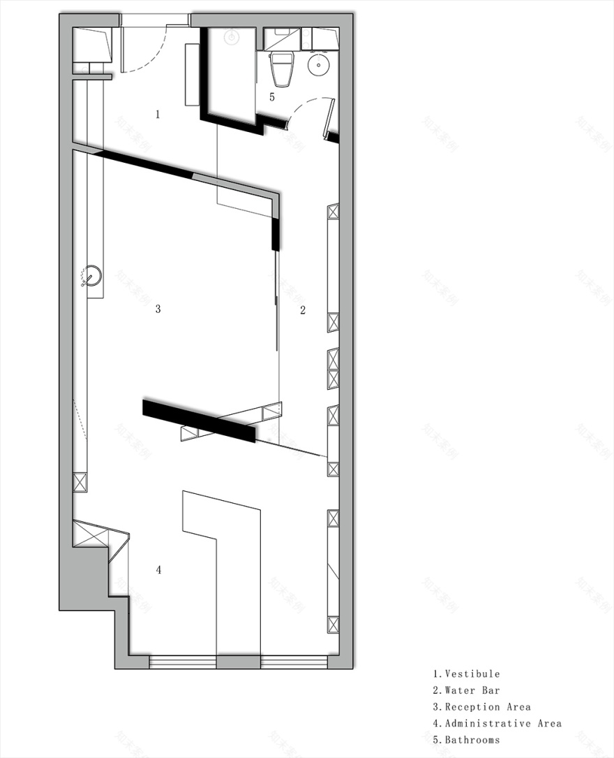
05ANALYSIS DIAGRAM 分析图-
平面图
INFO
- 项目名称 - 域光 · 塑影
- 设计总监 - 陶胜
- 主创团队 - 陶胜 張奕 魏露菡 谭娇利
- 家具&软装设计 - DeeSen
- 项目面积 - 92㎡
- 项目地址 - 江苏 南京
- 摄影 & 视频 - WMSTUDIO
- 灯光顾问 - 光维照明
- 主要材料 - 艺术涂料 水泥自流平 钢化玻璃 石英石
客服
消息
收藏
下载
最近












































