查看完整案例

收藏

下载

翻译
Highlands Residence
Studio: Zrobim architects
Architects: Matthew Oleinikov, Alexey Korablyov, Andrus Bezdar, Nikita Abanin
Location: Mongolia, Highlands
Project Year: 2022
Area: 200 sq.m.
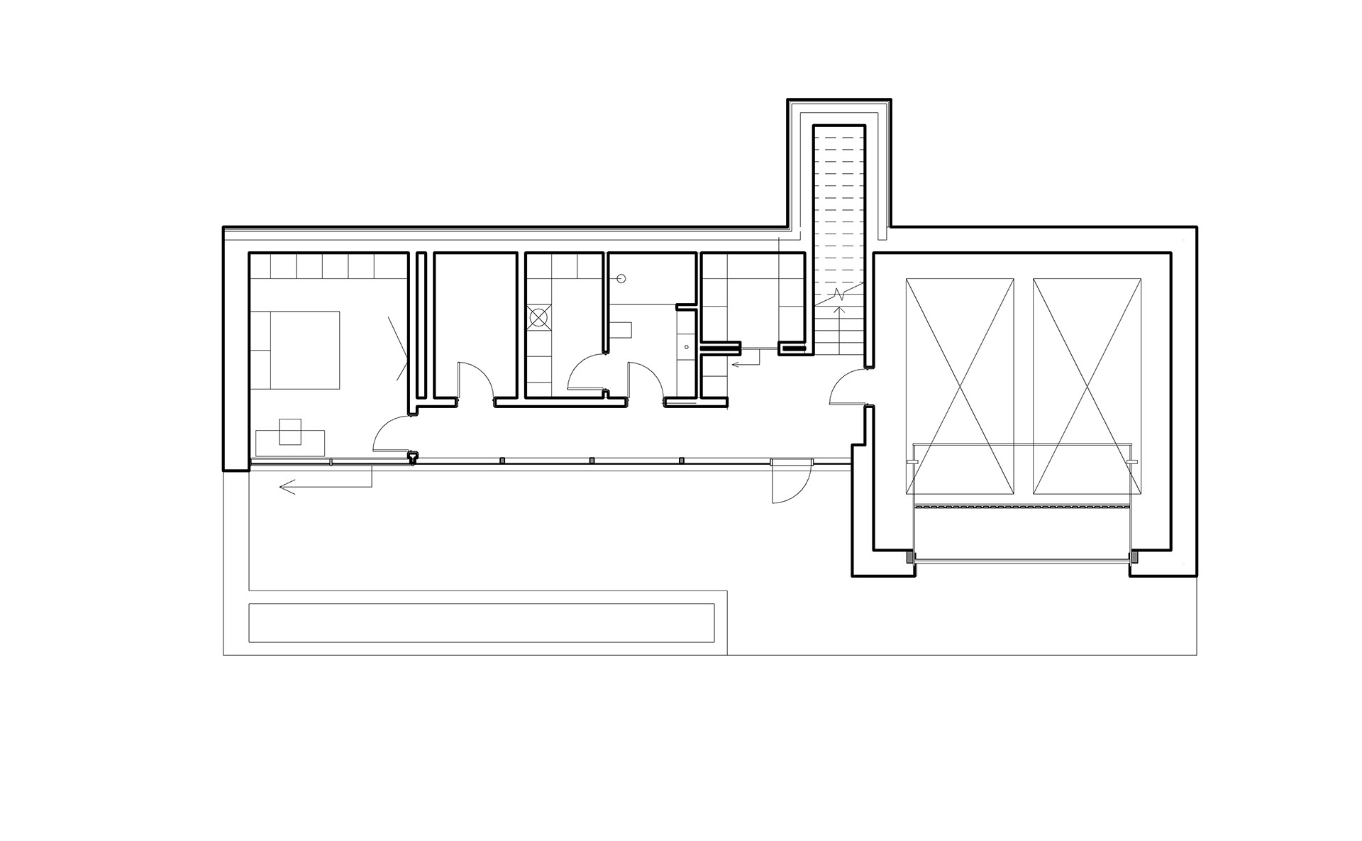
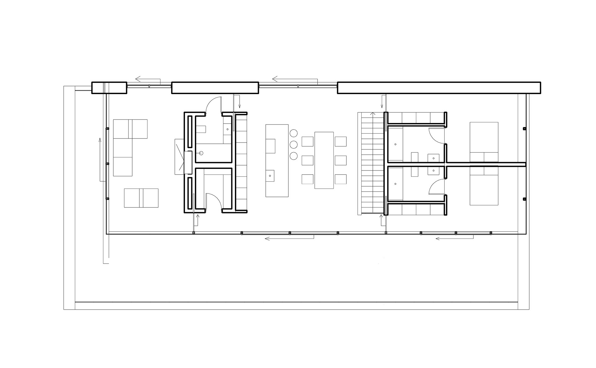
Ground floor & first floor layouts
3d model diagrams
客服
消息
收藏
下载
最近















