查看完整案例

收藏

下载
座北朝南
入口空间设置了一个通道口的形式,几何线条组成一个围合的四边形,加强了入口处的进深感和形式感。The entrance space is arranged in the form of a passageway, and the geometric lines for
m a quadrilateral,which strengthens the entrance feeling and the sense of form。
入口处旁设置了一个半封闭式橱窗,可定期按主题更换内容展示。此处设计为透明亚克力材质+红色霓虹灯的组合。
A semi-enclosed window is set beside the entrance, which can be regularly displayed according to the theme.The design here is a combination of transparent acrylic material and red neon.
酒吧内部整体呈现出水泥工业风格,地面整体铺装采用公路线条元素,开槽后暗藏灯带,灯光氛围浓厚。
The whole interior of the bar presents the style of cement industry. The whole floor is paved with highway lineelements.
吧台上方设置钢网吊架,里面暗藏射灯,通过光影映衬作用,虚实空间关系。围绕柱体设置了一个围和型吧台,与工业艺术相得益彰。
Set steel net hanger above the bar, hidden inside shoot the light, through the light reflection effect, virtual andreal space relations. Around the column body and set a surrounded and shaped bar, and industrial artscomplement each other.
高4米的酒柜采用全钢板制成,加上灯光的渲染,使玻璃制品更加富有质感。
The wine ark of 4 meters tall USES whole steel plate to be made, add the render of lamplight, make vitreousproduct more rich simple sense.
舞台背后采用幕布挂帘的方式,取下幕布,白墙可做投影幕墙所用。灯光氛围的营造,对于酒吧来说是直观重要的一点,一首民谣哼曲,一杯清酒小酌,仿佛置身时间停滞的空间里。
Curtain hanging is used behind the stage. Remove the curtain. White wall can be used as the projection screenwall. The lighting atmosphere is intuitive and important for the bar. A ballad is hummed and a glass of sake isdrunk, as if you are in the space of time sta
gnation.
在往里走的沙发卡座区就显得静谧很多了,灯光昏暗,来上一杯无酒精的特调,享受片刻的慵懒悠闲。
The sofa booth area that goes in appears quiet a lot, lamplight is dimly, come to the special tone that does nothave alcohol, enjoy a moment languid is leisurely and carefree.
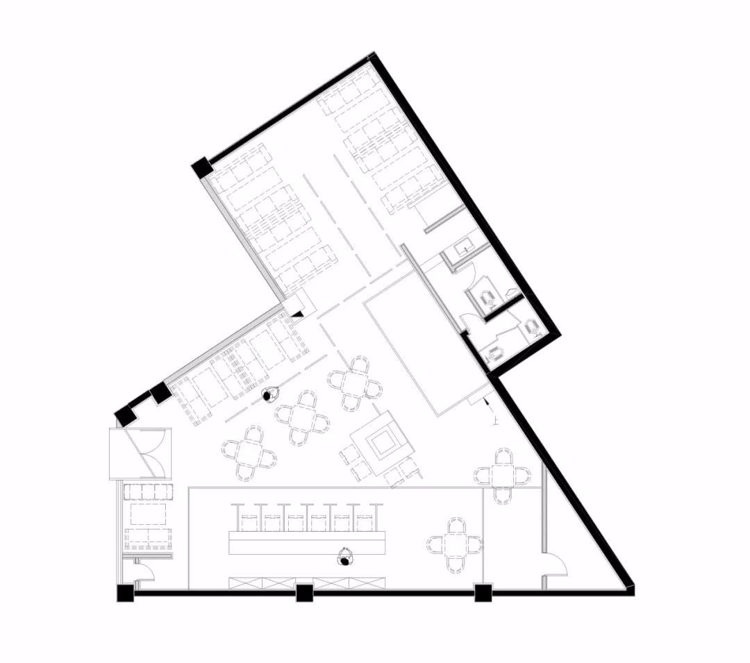
平面图 PLAN
轴测图 AXONOMETRIC DRAWING
客服
消息
收藏
下载
最近


















