查看完整案例

收藏

下载

翻译
Architects:Moke Architecten
Area:250m²
Year:2023
Photographs:Thijs Wolzak,Robert Koelewijn
Manufacturers:Saint-Gobain,Bluemink,Heko Spanten,Willem Designvloeren
Constructor:Van der Linden Construction Advice
Main Contractor:Engen Construction Company
Architect:Gianni Cito
Project Management:Patrick de Weerd
Urban Planners / Landscapers:Marieke Timmermans, Pepijn Godefroy
Urban Planning/ Landscape:la4sale
City:Muiden
Country:The Netherlands
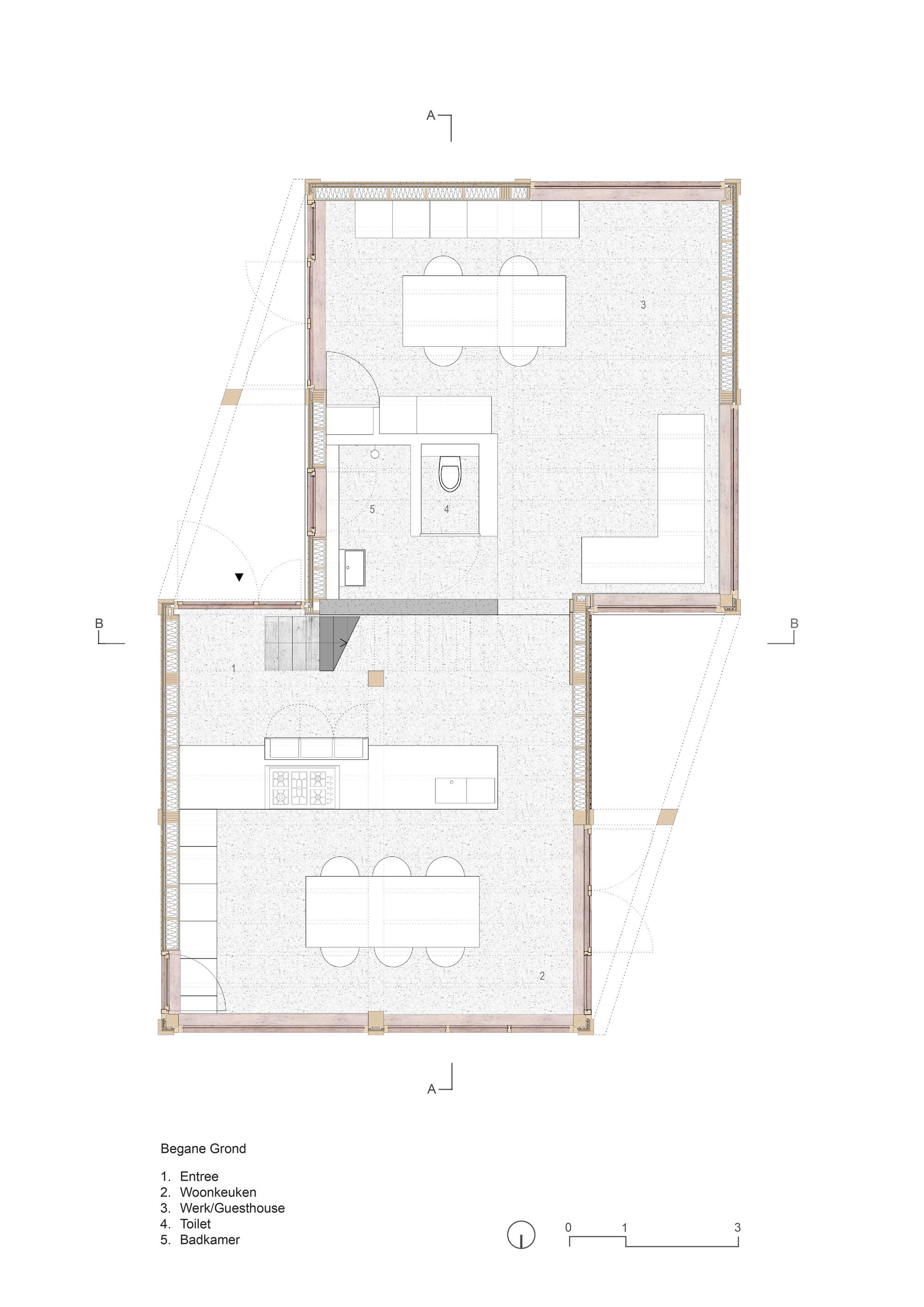
Text description provided by the architects. Moke Architects has designed a wooden house in Muiden together with la4sale. The living/working house of the two founders of the la4sale landscape agency had to have a 'landscape' appearance based on the nature of the residents. The house has a visible wooden construction, pergolas, views and a greenhouse on the roof. The house designed by Gianni Cito and the partners of la4sale is located directly behind the dike of the IJmeer, in the new residential area near Amsterdam. The residents wanted a house where they could enjoy the view, but also have the necessary privacy. The house is divided into a front and rear house offset from each other; an idea suggested by the residents.
Ecohouse made of Wood - The new living/working house of two designers with a landscape architecture practice seems to have emerged naturally in its green surroundings. The house with a visible wooden construction, pergolas, views and a greenhouse on the roof is located in the old port town of Muiden, directly behind the dike of the Ijmeer near Amsterdam.
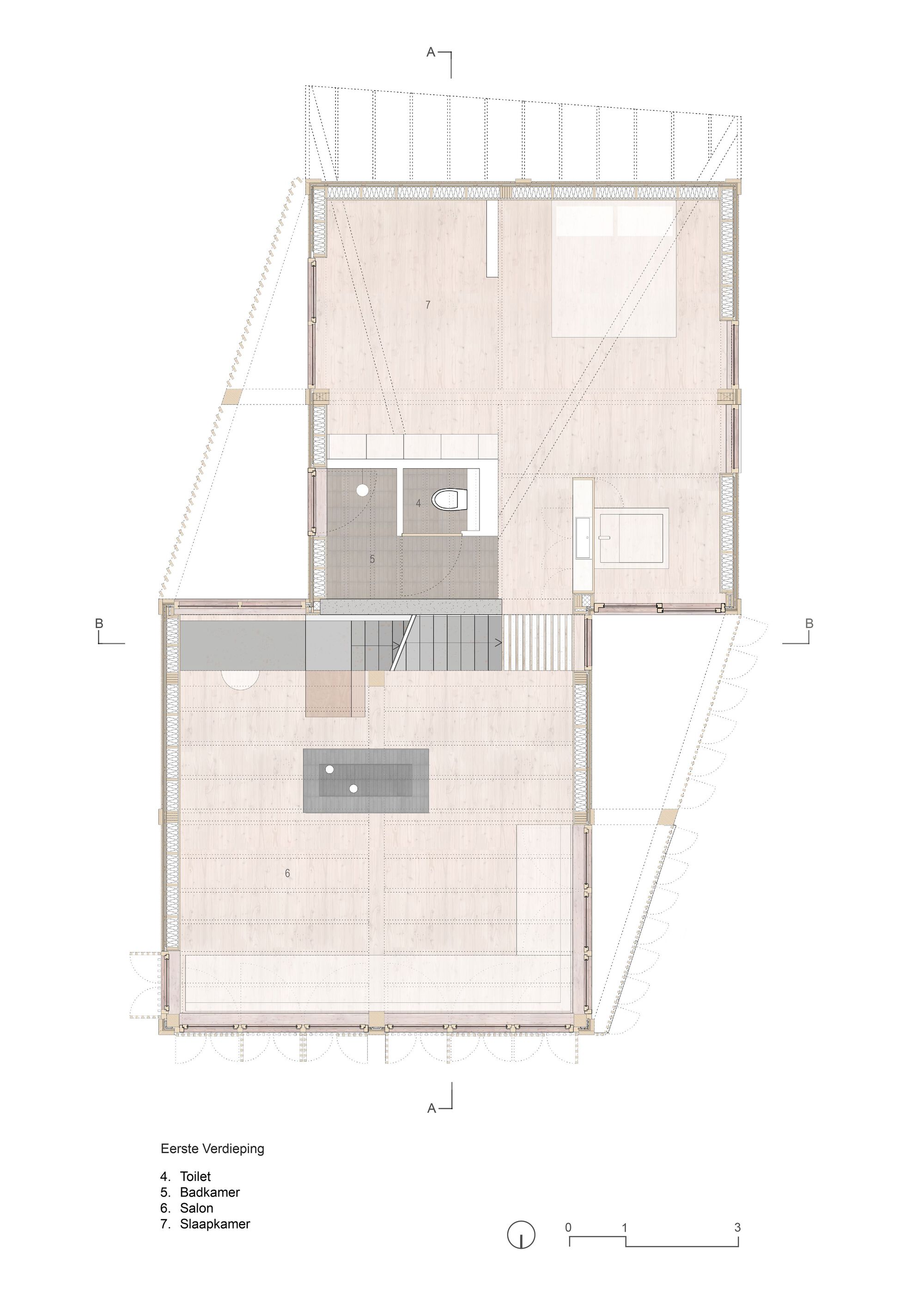
Living Workhouse - The residents, who are also the clients, wanted a house that takes full advantage of the beautiful view of the lake and at the same time offers a lot of privacy. The house is divided into a front and rear house. The front house opens up to the garden and the IJmeer and consists of the kitchen on the ground floor and the living room on the first floor with a view over the water. The rear house is a more closed volume and has a workspace on the ground floor and a bedroom on the upper floor. The front and back houses form two square volumes that have been pulled apart and connected at the corners with pergolas. The pergolas consist of a wooden frame with wooden slats, they form a space between inside and outside. This space is special and ensures a gradual transition between the interior and the outdoor space. The slats are adjustable. They are opened for an unobstructed view of the IJmeer. Completely closed, they provide privacy.
Natural materials - Wood is a central theme in the home. It is reflected in all places in the home. The laminated Larch trusses, the exterior finish of Fraké, the interior finish of Poplar and the Douglas floors provide a soft and natural ambiance. The wood is virtually untreated. The concrete wall in the middle of the core of the house also provides a natural appearance, the pattern of the horizontal wooden slatted formwork plays with the grazing light that falls along the floating steel staircase from above the greenhouse.
Sustainable through and through. The house is sustainable in all its facets. To start with, the wooden construction stores 23,846 kilos of CO2. The insulation consists of a combination of cellulose, wood fibers and sheep's wool. The sloping roof is covered with moss sedum and grasses and stores rainwater. Excess rainwater flows through a chain into the front garden. The transparent PV cells on the roof of the greenhouse generate electricity. In any case, the greenhouse is a beautiful final piece. Plants and flowers grow in the semi-climate. It forms both an extension of the house and a flowery continuation of the landscape.
Project gallery
客服
消息
收藏
下载
最近
























