查看完整案例

收藏

下载
一栋建筑,也许“老旧”的纹理足够直接地反映岁月痕迹,也很容易引起不同人群的共鸣。它矗立在此处,从无到有,从新到旧再翻新,亦是时光故事的见证者。
但当时间与人群不断向前行走时,当他们再次经过或回望此处,又希冀获得什么样的感知呢?
FROMHER 西湖咖啡厅
便是 F.O.G.对于拥有近百年历史建筑的再次更新的尝试和呈现。
历史 | 文化意向
History | Cultural Intent
“半边山水半边城”,西湖码头自古便是杭州的市中心;西湖更是频繁出现在诗词歌赋和文艺故事中。从时间上来说,西湖拥有不同模样;对人们来说,它又具有特定的意义。建筑本身是建于 1936 年的石函精舍,背靠绿茵,半跨于西湖之上。原是私人别墅,改造前身是星巴克,而新的咖啡空间就在这样的背景下慢慢生长出,带着旧时光的影子。
我们同样好奇那个年代的杭州与世界,发生了些什么?我们希望去保留某些无形却具有重要性的东西,这些东西或许是表面的符号化,但它确实加深着人与人、人与空间、空间与环境的联系。于是,我们把自己放到场地中,放到空间历史里,而后决定保留和复用旧建筑的样式,例如原有木结构屋顶、外立面、门窗状态等。
设计中使用了原有栏杆的结构,纹样由两片西湖水纹组成,中间有三潭映月的形象,上下则是波纹的图案。
旧 | 自然发生 Old | naturally Occurring
建筑外立面,设计更多保留建筑本身应有的形式和特点,希望记忆中的模样依旧可以在此中寻到。如何引入新的状态?则以自然运转的风景为画。设计将原本有所遮挡的窗户进行拓宽开放,维修窗框并进行细节勾边,让室外的动态之景与室内对撞相融。同时调整入口,动线更方便,更吸引环西湖人群。
室内,设计的关注点有二:一是如何将自然景色尤其是西湖搬到空间内;一是空间使用者与空间的关系。项目上运用“旧”设计手法,类似用花纹、砖面去分割不同的区域;通过家具摆放的形式、肢体形态与场景的关系,去分割不同的空间。以有意识的、重复符号化的、光线的表达去丰富室内景致的层次感。当我们进入室内,光投射其中,斑驳树影,影影绰绰于行动轨迹上;眼看墙砖,花纹仿佛在流动,如层层细小的浪花,缓慢拨动心弦。
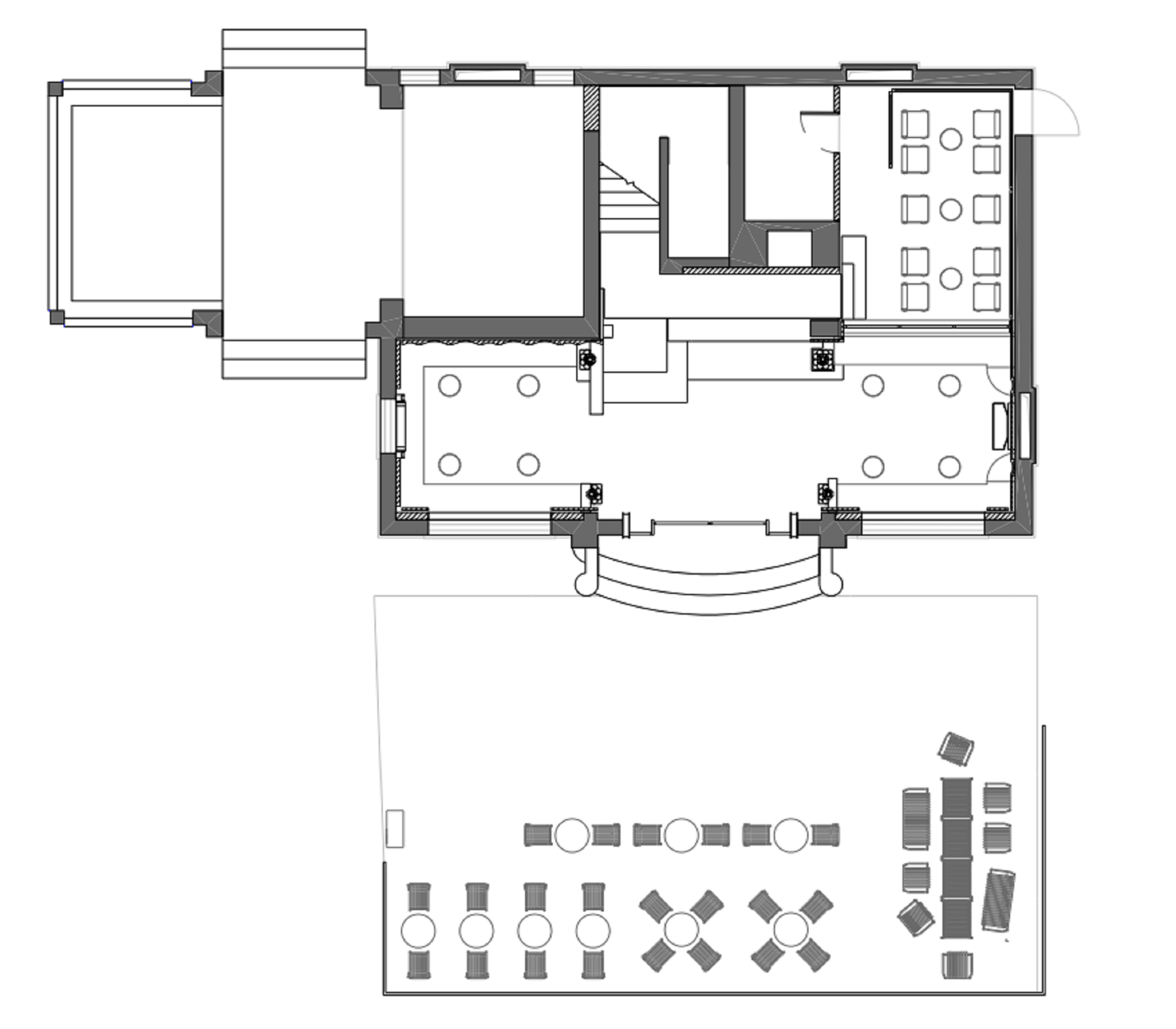
一层作为食物销售区,用非常明确的布局将咖啡区和甜品区各置一侧,仿如刚刚泛舟之上,掀开其中一角。而后踏上“漂浮婉转”的楼梯,随着光影勾勒的重重山水,清波荡漾,试图窥探更多美丽的景色。
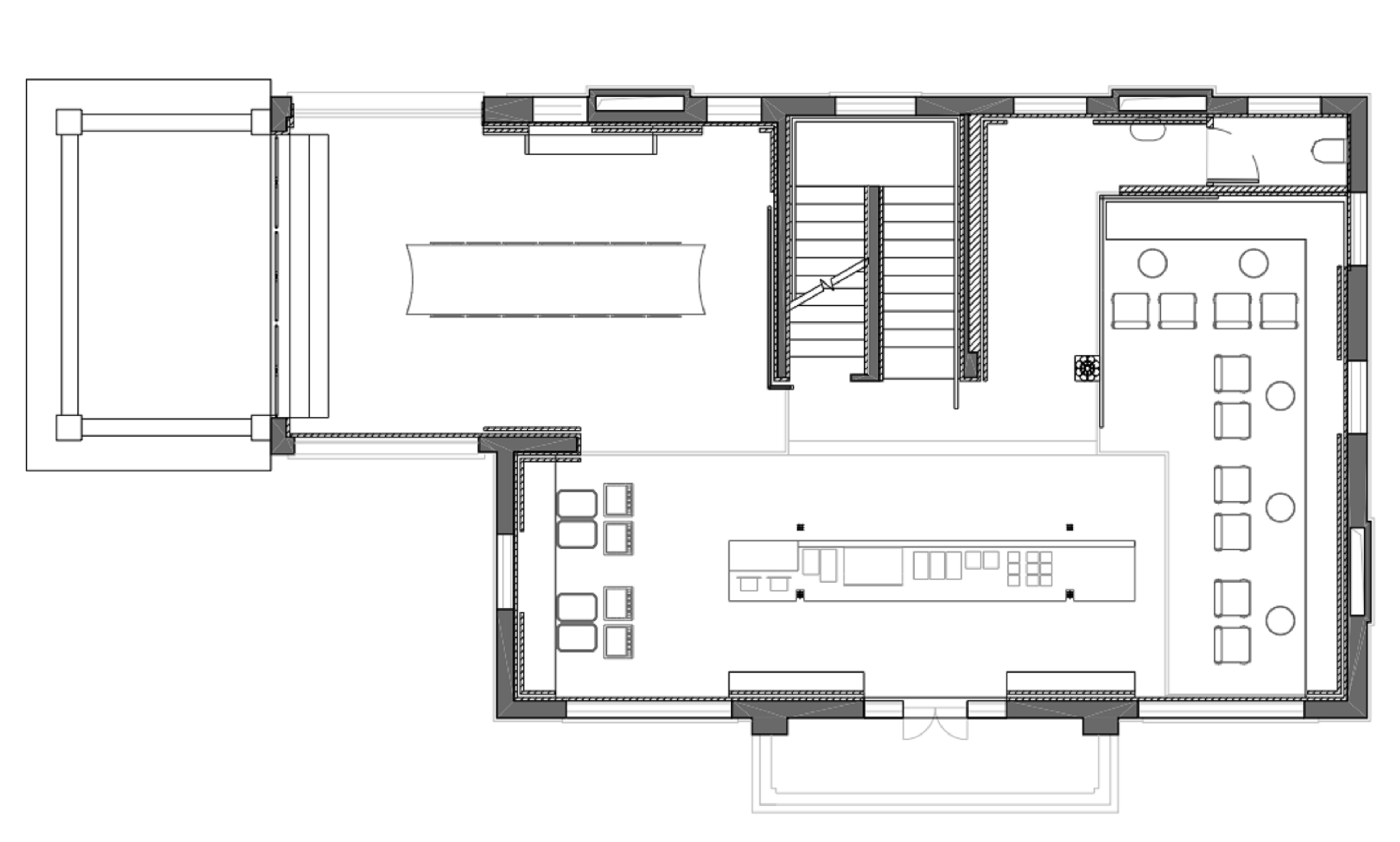
多样化的设计手法来相互交融和呼应。泛舟见山水,亦见我与他人。设计师观察在西湖边的“众生坐相”:对坐,侧坐,围桌而坐,面窗独坐,背湖而坐......当我们踏入二层,便能在空间布局里感受设计师的“新意”——在变化中塑造更生活化的舒适的空间氛围,在其中遵循本能的习惯,享受当下的惬意。
水 | 情感表达 Water | Emotional Expression
西湖,于自己是水流,是大自然的一部分,是本身存在;于本地人是日常休憩之所;于游客是心驰神往的景点......更是被寄托情感的意象和来源。富有多重解读性、能够承载多种情感的水体。设计希望让大自然来到空间里,和人互动对话。哪怕静默无言,也能产生内心深处的涟漪。
不同时间的反射状态
在三面环窗环景的中心,设置了一张长桌,旨在通过材质和光的作用去模拟西湖水在不同时间段的呈现。人们可以获得非常直观的视觉震撼,而轻舟已过万重山,剩下的是什么?或许是把酒言欢,对饮而谈;或许是立于舟头靠于舟尾,自成一画。
这里是阳光更充足的地方,设计利用阳光通过水晶面板折射和反射,将水波纹的光线投射到空间中,营造出波光粼粼的效果。从侧面看,水晶面板的反光与西湖的水面连成一体,从而模糊了桌子、湖面、船、人及西湖背景的界限。
旁边,是咖啡师的工作台。在这里,使用者和设计者成为了咖啡师,在变换的景色和人群中,他们又将展开何种想象,又会在味觉层面上创造出怎样的西湖特色?消费者行走在没有特意隔断的空间内,就是继续行走于敞开的环西湖线,提升互动体验,不由感叹一句“动静之间,淡妆浓抹,皆相宜”。
体现“水”的材质还出现在经过后期手工涂抹的莱姆石墙面、压花玻璃、银箔屏风、雕花栏杆等,让整个空间都充满律动和节奏。“水体”在抽象与具象中交织完成,成为可被感知的可被共鸣的情绪个体。
细节 | 线条
Details | Line
每个人对空间的想象是不同的,我们相信建筑和文物是有生命的,现在的阶段只是它们生命中的一部分。当下空间的状态,当下场地环境以及与人的关系
设计师落于细节
本案力求创造一种冲突感,以表达对这座建筑丰富历史的感受。通过材料的反射和视角的构成,将湖光山色引入建筑内部;利用光线、线条和装饰元素,反复表达和描绘西湖美景。正如时间流转,西湖山水依旧如常,波光粼粼之下,又将泛滥起多少过往?
↑ 1F 平面图
↓ 2F 平面图
案例资料
项目名称 | FROMHER 西湖咖啡厅
项目地点 | 浙江 杭州
项目面积 | 260㎡
设计单位 | F.O.G.建筑事务所
设计团队 | 雷荣华、邹德静、熊爱杰、谢嶷、李诗楠、詹迪、郑宇
结构设计 | 卷口构造-陶辛未
灯光顾问 | 立本社-张旭
施工图深化︱深圳市瀚中深化设计
雷荣华
F.O.G. 建筑事务所 合伙人
F.O.G. 建筑事务所
F.O.G. 关注空间背后的运作逻辑,致力于将每一次实践都视作探索事物本质的机会。在飞速变迁的时代背景下,F.O.G. 试图去寻找空间所赋予人的潜在而不可名状的稳定感。通过不断审视材料、光线、地形、功用以及文脉所带来的感官体验,F.O.G. 希望能以一种结构化的方式将“体验”与“感觉”加以固化,直至形式与空间逐渐显现。
设计师介绍
雷荣华毕业于伦敦建筑联盟学院,曾参与过众多具有国际影响力的建筑项目。长期与 Sir Peter Cook 合作,在此期间多次入围并赢得了多项国际竞赛,相关作品展出在英国皇家艺术学会。他专注研究特殊公共空间的构成,并长期受邀参与建筑联盟学院、英国皇家艺术学院和剑桥大学的教学工作。
客服
消息
收藏
下载
最近


























































