查看完整案例

收藏

下载
色彩的搭配、斯卡帕叠级的现代转译、体块的自由穿插、框景以及漂浮感的呈现,都是空间内的重要章节,这些别出心裁的设计,让空间成为了一卷书,不同的立面是不同的内容,生活就是阅读的线索。
本期屋主是一个有爱的三口之家。
男主爱好网游,女主喜欢画国画和写字。
虽然男女主人的爱好迥然不同,但是对于家的期望确是一样:一个温馨、美好、有乐趣的家。
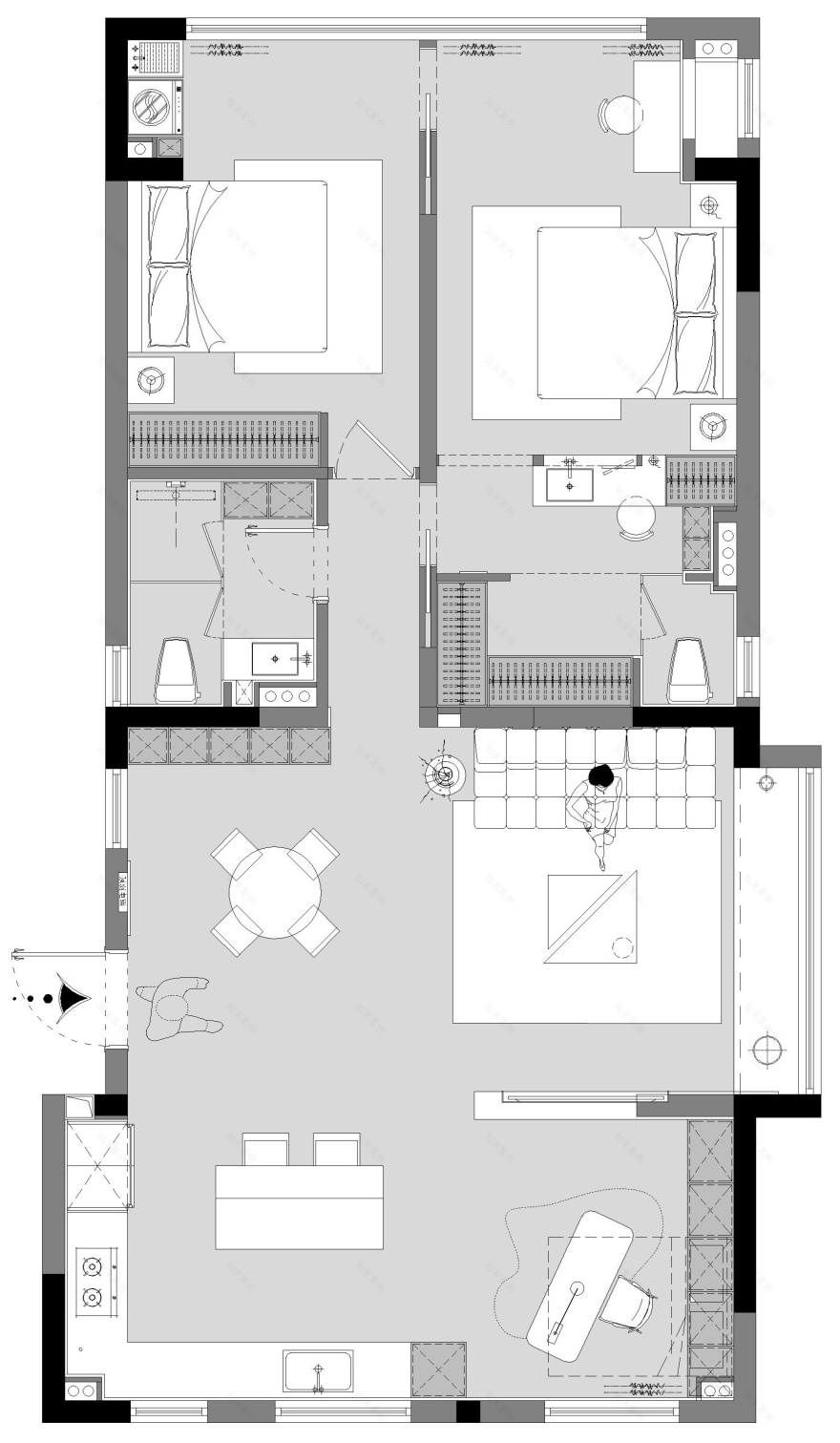
概况:
项目地址:薄荷花苑
项目面积:112m²
项目设计:希设计
户型分析:
房子朝南,比较方正,最大的缺陷就是房间虽多,但每个房间都很小,厨房也小
拆改:
封闭厨房变开放式,瞬间扩大视觉感;主卧和儿童房之间保留了原始阳台的门洞,方便孩子跑动,增添乐趣。
①考虑房屋朝向与架构特征,拆改部分封闭的空间,扩张公区的敞阔感,结合透景语素让场域之间自然互通。
②以直线勾勒背景与结构,创造统一的视觉系统,光随形蔓延,强调尺度张弛的变化,身随心游走,体验舒怡之感。
③保持基本的理性气质,于转折、亮点、重心、细节处引入大师杰作或一见钟情便带回家的艺术品,深化空间的美学内核。
01 抵达诗境
破除空间阻隔,串联多处窗景,力求借建筑之外的动态为家寻求敞亮与私密的平衡。规划出主次动线,让成组聚合的陈设讲述未来可期的日常故事。米白底色衔接木色,释放温馨自然的气息,对撞雅致黑调,彰显居所的时尚风采。
忽而窜出的浅粉色汲取经典建筑的印记,增强了场景的深邃感。透明元素重新解析了光的意义,中心场域强调实用功能,展露虚实相生的趣致。电视背景墙做悬浮处理,梳理了观影与取暖的关系,并延续了整体通透的美感。
02 闻见美味
餐厅利用视感反差表达块面转折的节奏感,平展饰面,通过餐边柜顶部和底部的镂空,来塑造起伏的层次感,并注入更多元的功能性。餐椅和餐桌的配色经典又惊艳,每天在这里,与香气相遇。
原本封闭的厨房被设计成了开放式厨房,瞬间让客餐厅部分比原始弧形状态大不一样!视觉效果延展了好几倍,并且在厨房区域衍生出一个精致的吧台,紧邻着简约调性的餐厅,在疏朗的格局下实现了主人倾心已久的中西合璧的烟火场景。
03 惊喜拓展
合理是分区的根本,创意是情感的显化,不去刻意围合,借势造境,确立新颖的书房区位,女主在此挥墨、渲色、写意,恰到好处,充满了仪式感。而每次抬眸,就能捕捉到家人的身影,每个瞬间都是幸福的。
04 温柔含蓄
撤回原木色调,仅留黑白进行简洁的空间叙事。在阳台区域打造电竞场景,镌刻“酷而雅”的美学,契合男主热爱网游的喜好与品味格调。睡卧区呈现极简调性,消弭多余的视觉干扰,酝酿好梦。
双拱形并排而置,导引路线,透露梳妆画景。鎏金边廓,将灵动与暖融精准转译,也触发和启动了空间的精致感。衣帽间潜藏于多重场景之间,糅合暗调基底与清透美感,体现有品质、有温度、科学收纳的智慧。
构建内嵌式移门,便于主卧与儿童房顺畅地通过阳台门洞沟通,为成长中的孩子预留充裕的跑动路线,诠释空间呵护亲子关系的妙用。依照隔断的尺度拓展出洗衣区,兼顾了整洁之美与空间利用率。
很喜欢的调子 现在蛮流行的 原木穿插在黑白空间里
客服
消息
收藏
下载
最近

























