查看完整案例

收藏

下载
情境整合与反馈 -
既有建筑的改造与更新,犹如整容手术,需要从空间实体的角度进行诊断与改造目标的设定,了解原有建筑与周边的情境与空间特征,寻找改造整合的可能性,并结合未来的需求,将建筑与周围环境重新连接、融合。
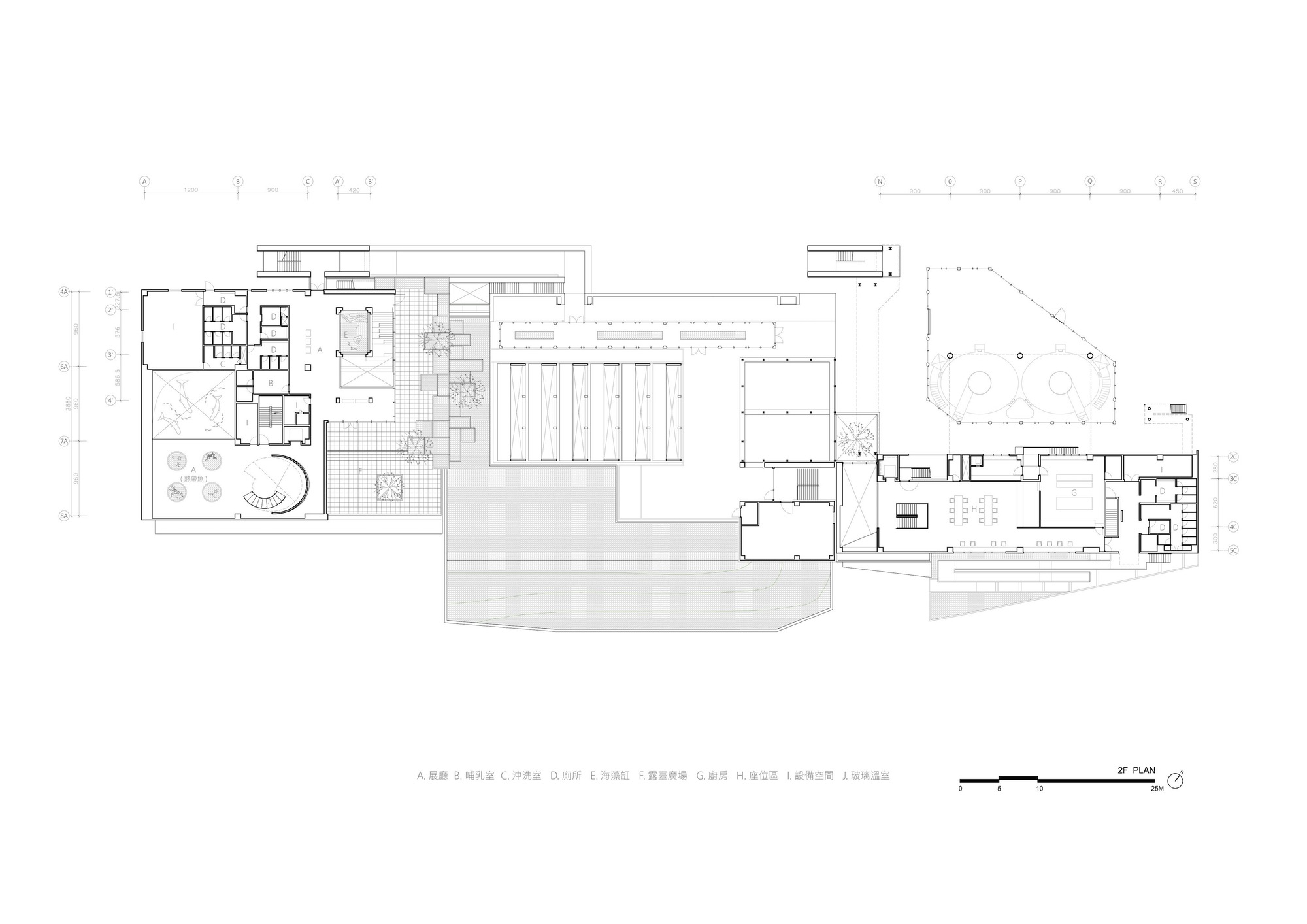
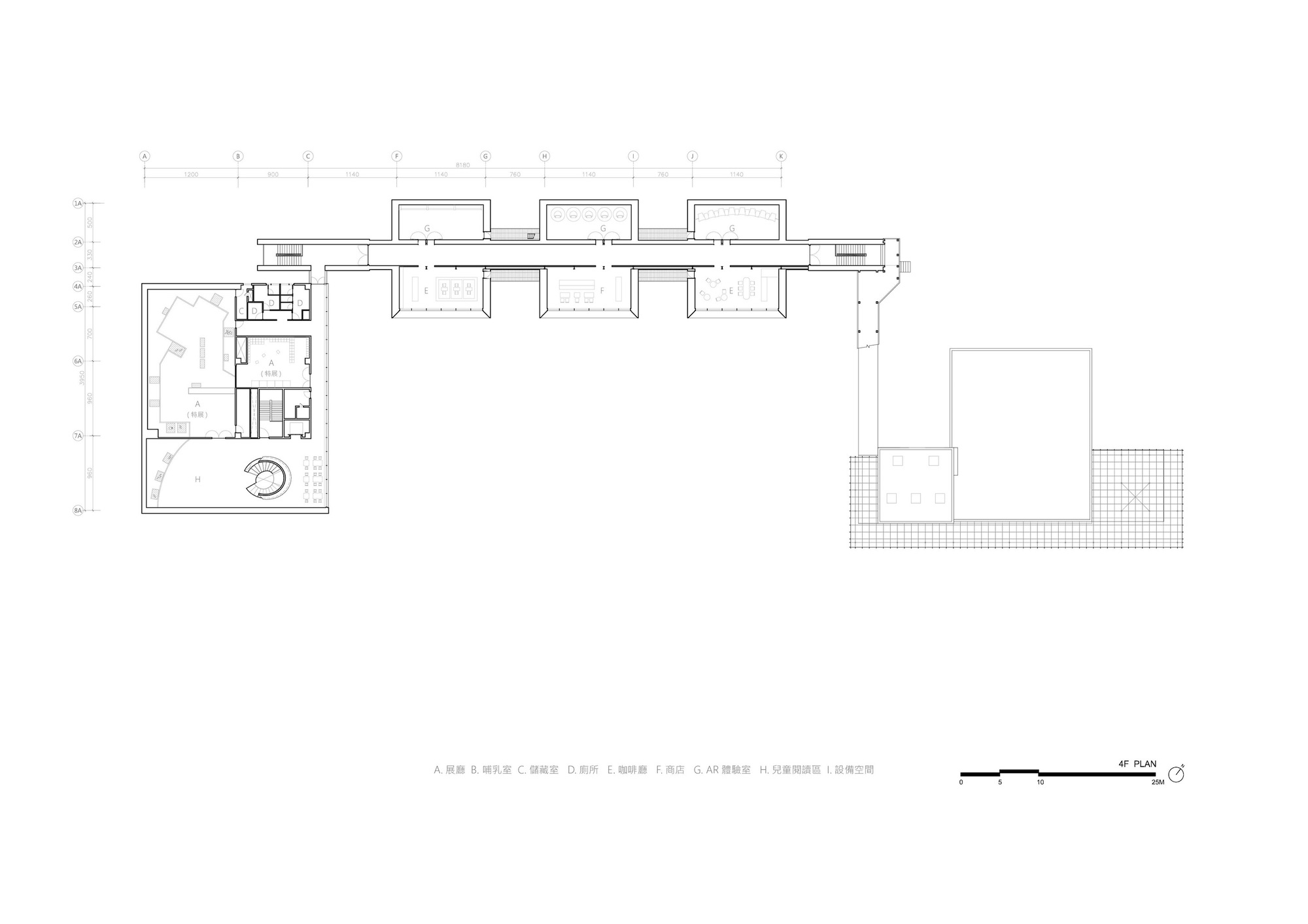
该遗址原为潮境海洋研究中心,隶属于国立海洋科技博物馆,是台湾重要的海洋研究与教育机构。位于基隆潮境公园,由垃圾填埋场改建而成,主要建筑分为南楼、天桥、北楼及地下水产养殖工作站。
整体建设分期进行,一期由大研建筑师设计,为地下水产养殖工作站;二期由朱建建筑师设计,为海洋研究中心建设南北楼及天桥;三期建设南北楼连廊及大跨度天桥。新改造项目保留部分科研办公功能,将科研空间改造为博物馆,设有水族馆展示、数字多媒体互动展品及商业设施,对外开放。
将建筑与环境想象为生活的容器 -
建筑是人生活的容器,就像水箱容纳着鱼的生存空间。希望这里的建筑能更贴近山与海,将水、绿植、鱼引入建筑内外。山与海成为建筑真正的风景,也成为水景的背景。人在建筑中穿梭,既能从内到外看到这些风景,自己也成为风景的一部分。这个设计就是从这样的想象开始的。
既有建筑包括土质的地下工作站、南北两栋建筑的混凝土体量、以及跨度40米的钢结构天桥。改造旨在加强山与海的联系,拉近与自然的距离。新增的混凝土体量被放置在建筑之间的空隙中,独立的结构中设置了连接内部空间的大型水箱。
原有的阳台通过空心水泥板和玻璃幕墙改造,呈现出面向山海的展览黑盒子和玻璃连廊。考虑到承重和热工性能,天桥的外墙被替换为轻质隔热板和涂料。玻璃幕墙形成供人观看的容器,既是观察者,也是被观察者。一楼的入口草坪和二楼的室外绿盆,种满树木和鲜花,将建筑与内部的鱼群融为一体,混凝土与青山融为一体。天桥盒子漂浮在山海之间。
项目设计:B+P Architects
项目面积: 5819.2501349m²
项目年份:2022
项目摄影:Studio Millspace
首席设计师:Jeff Tsai
结构工程: Dynastatica Engineering Consultants Ltd.
Lighting Designers:IO Lighting Design Co., Ltd.
项目建造:Baihui Construction Co., Ltd.
设计团队: Cynthia Lee, Yiden Song, Ray Chang, Yi-Hsin Lin, Chien-Hsiang Hsu, Yu-Cheng Chen, Yao-Wen Chang, Wei-Chen Peng, Hsin-Yu Chen, Tong Siao
Fire Protection 工程师: Dial Fire Protection Engineering Consultants Ltd.
项目成市: 長潭里
项目国家: Taiwan
设计师:B+P Architects
语言:英语
客服
消息
收藏
下载
最近







































