查看完整案例

收藏

下载
Residência TA 位于米纳斯吉拉斯州新利马,其设计旨在与周围崎岖的地形无缝融合。该项目水平坡度为 30%,横向坡度为 20%,通过向斜坡方向倾斜,最大限度地利用土地,最大限度地减少空间浪费,减少对土方和挡土墙的需求。这种方法产生了一种谨慎的水平体积,自然地融入周围环境。
房屋的主要开口策略性地朝向东南方向的山脉和左侧(东)的较低邻近建筑,以确保优越的视野和隐私。在面向西北的街道立面上,框架上的铜质饰条和精心设计的景观既有助于室内环境的热舒适性,又有助于视觉吸引力。
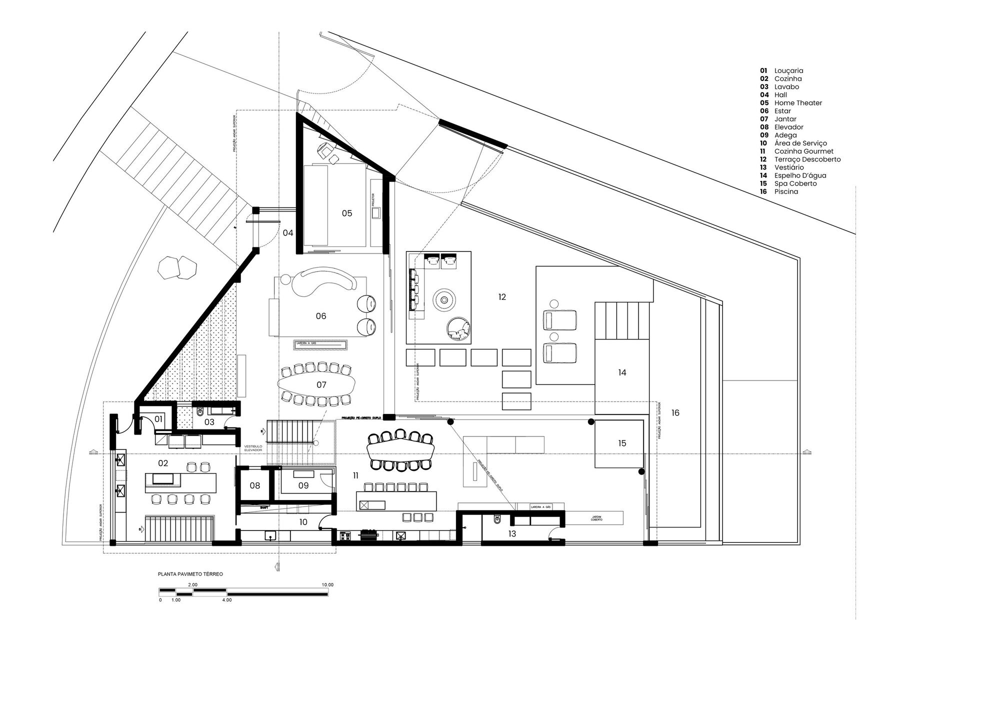
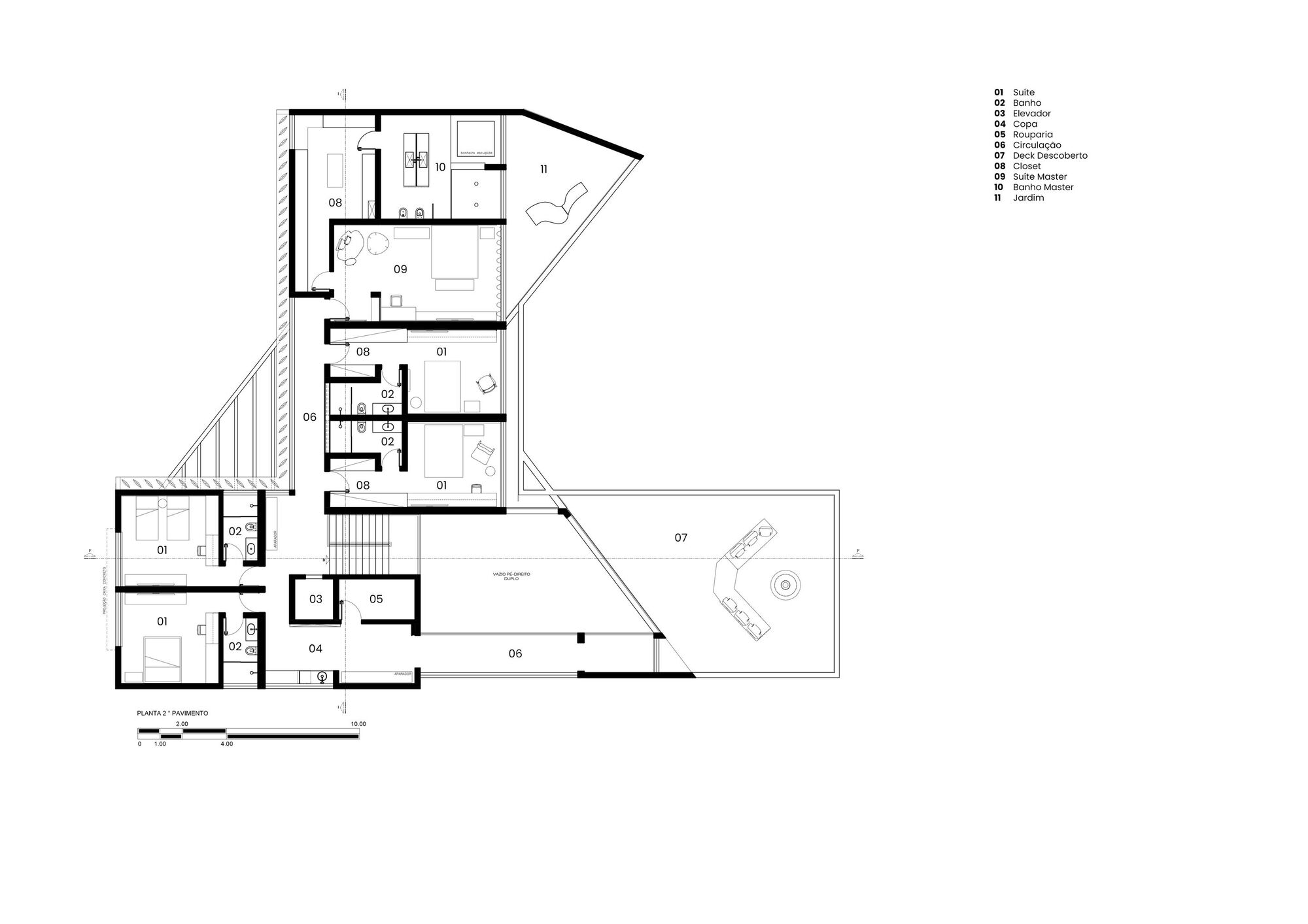
该住宅共有三层,由楼梯和电梯连接。地下室设有车库和服务区,而一楼则主要用作住宅的社交区。卧室位于二楼,为住户提供私密空间。
Residência TA 不仅解决了当地地形和气候的特殊性,而且还采用了促进与周围环境建立积极关系的解决方案。
项目设计:Anastasia Arquitetos
项目面积: 15069 ft²
项目年份:2023
项目摄影:Jomar Bragança
供应商: Indusparquet, Bel Lar, Cinex, Infinito Vidros, Marcatto Ornare, Mharmaros, Ndiddini
首席设计师:Tomás Anastasia
室内设计: Johanna Anastasia
Structural Design: Selco Projetos - Tulio Antonini
Landscaping: Yapo paisagismo - Luis Carlos Orsini
Electrical And Plumbing: MCE Engenharia - Matheus Elias
项目建造: HAUS CONSTRUTORA - Evandro Lara
Lighting: ILUMINAR - Raquel Barros
Automation: Tekai - Olavo Rocha
Air Conditioning: Grupo Orlando - Alexandre Daher
Program: Residence built on 3 floors, with the garage and service facilities located in the basement, as well as a gym, bar and playroom. Ground floor with living area, dining area, kitchen and swimming pool. 2nd floor where the bedrooms are located
项目成市: Nova Lima
项目国家: Brazil
设计师:Anastasia Arquitetos
语言:英语
客服
消息
收藏
下载
最近




































