查看完整案例

收藏

下载

翻译
Architects:Juan Campanini - Josefina Sposito
Area:450m²
Year:2022
Photographs:Javier Agustín Rojas
City:Buenos Aires
Country:Argentina
Text description provided by the architects. Virrey Aviles St.'s housing building is in Buenos Aires, Argentina. It was developed using a legal tool called 'fideicomiso’ where small groups of middle-class people can invest their savings in developing small-scale buildings, marginally to the Real Estate’s voracity. In the context of Argentina’s unstable financial system and the lack of long-term bank loans or large-scale public investments, this alternative system allowed us to face the owners' necessities while participating in every stage of the process: from the land purchase to the project and construction.
The building is located in the residential neighborhood of Colegiales and situated in a triangular city block, which is unconventional for the strict square block structure of the city. Its plot, however, is a typical 8,66-meter-wide front, the most repeated lot of Buenos Aires.
As a way to mediate between the scale of the street and the mid-scale surroundings, a 2-meter-high wall stands loose on the building line, just hosting the car's gate and the main door. 1,5 meters behind, the plain building’s front develops. Its façade, made with an anodized aluminum cladding commonly used for ceilings, creates a homogenous surface completed by twelve windows. When seen from the side, its minimum thickness reveals its superficial behavior, performing as a falling veil that covers the building’s front. In this way, the building creates a unified plain image of the city, refusing to reveal any interior organization.
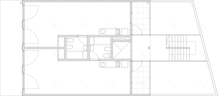
The free open ground floor disclosed when the building door is open, is only interrupted by a small volume that contains the elevator, the basement stairs, and ducts. In the background, between two green gardens, a concrete staircase stands, organizing through its elevated landings two units per floor. Each typical plan is organized symmetrically by a central core strategically positioned three meters behind the building facade.
Hosting the unit’s bathroom, kitchen, and wardrobe, this condensed programmatic piece is detached from the building front, preventing it from being seen through the windows. Entering by a small terrace that serves as an in-between space and, at the same time, as an expansion to the interior, the apartment’s space goes from the back front to the city façade, opening widely to the urban landscape through two large windows.
On the rooftop, arriving by the common stairs, two large terraces are organized following the typical plan organization. Its extension goes almost to the building edge, but again, separated from the facade, now by a green stripe covered by flowers and green weeds. From the height, the neighborhood’s landscape emerges, and the project stands as a single part of the heterogeneous landscape of the city.
Project gallery
Project location
Address:Buenos Aires, Argentina
客服
消息
收藏
下载
最近



























