查看完整案例

收藏

下载
本项目为一栋占地4,362 平方英尺的独栋住宅,位于得克萨斯州弗雷德里克堡郊外一座经营中的牧场之中。设计者结合了得克萨斯州中部的乡土风格和建筑形式、装饰风格,遵循了严谨的现代设计手法——现代和传统设计的独特结合。
Roam Ranch is a 4,362-square-foot single-family home on a working ranch outside of Fredericksburg, Texas. It is a testament to rigorous modern design presented in a central Texas vernacular in its form, finishes, and spirit—a unique assembly of contemporary and traditional design.
▼住宅概览,house overview © Casey Dunn
▼棚子,pavilion © Casey Dunn
业主此前曾委托设计者设计过一套风格现代的Austin住宅。在疫情期间,业主夫妇对他们所生活的城市并不满意,并再次委托设计者在牧场上为他们打造一座新的住宅,便于他们可以在牧场中以感受“自然的力量”的名义饲养一些家禽和动物。与他们城市中的住宅不同,本项目还需要满足他们业务运营的需求,其中包括播客和教育事业。
The clients had previously commissioned the firm for a stylistically modern Austin home. During the pandemic, the couple acknowledged that they were dissatisfied with city life and again commissioned the firm to design a new home on the ranch where they sustainably raise bison and turkeys under the name “Force of Nature.” Unlike their city house, this new home also needed to function for their business operations, including podcasts and educational events.
▼立面,facade © Casey Dunn
▼露台,terrace © Casey Dunn
客户坚持要求新住宅既要保留真正的牧场风格,又要兼顾特定的现代装饰和设施。最重要的是,客户希望保留他们在这块土地上已经建造的两栋建筑——一栋餐厨一体的小屋和一个独立的单人卧室体量。
The clients were adamant that this new dwelling retain a true ranch feel, while accommodating certain modern flourishes and amenities. Above all, both wanted to retain the two buildings they had built on the property—a kitchen / dining structure and a detached single bedroom volume.
▼停车棚,carport © Casey Dunn
▼走廊,corridor © Casey Dunn
▼走廊,corridor © Casey Dunn
▼入口,entrance © Casey Dunn
▼玄关,foyer © Casey Dunn
▼餐厅总览,kitchen/dining room overall view © Casey Dunn
▼起居室与餐厅局部,corners in the livinf room © Casey Dunn
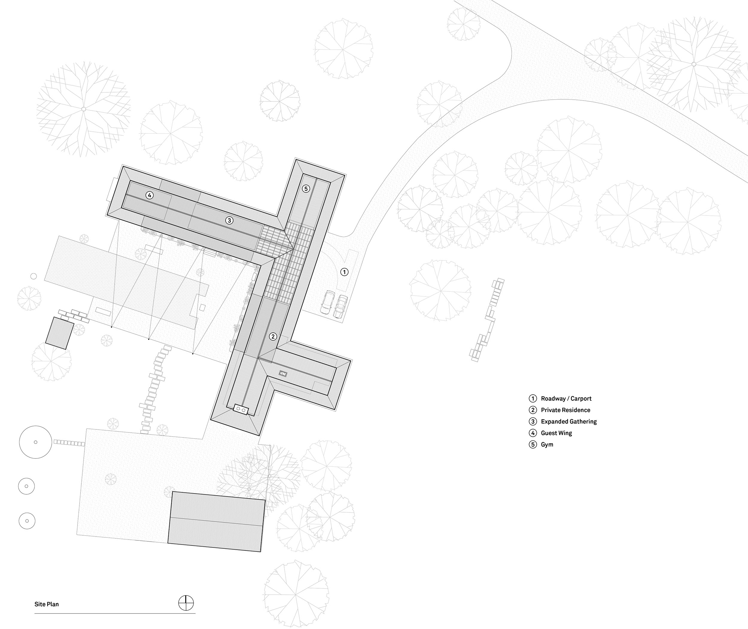
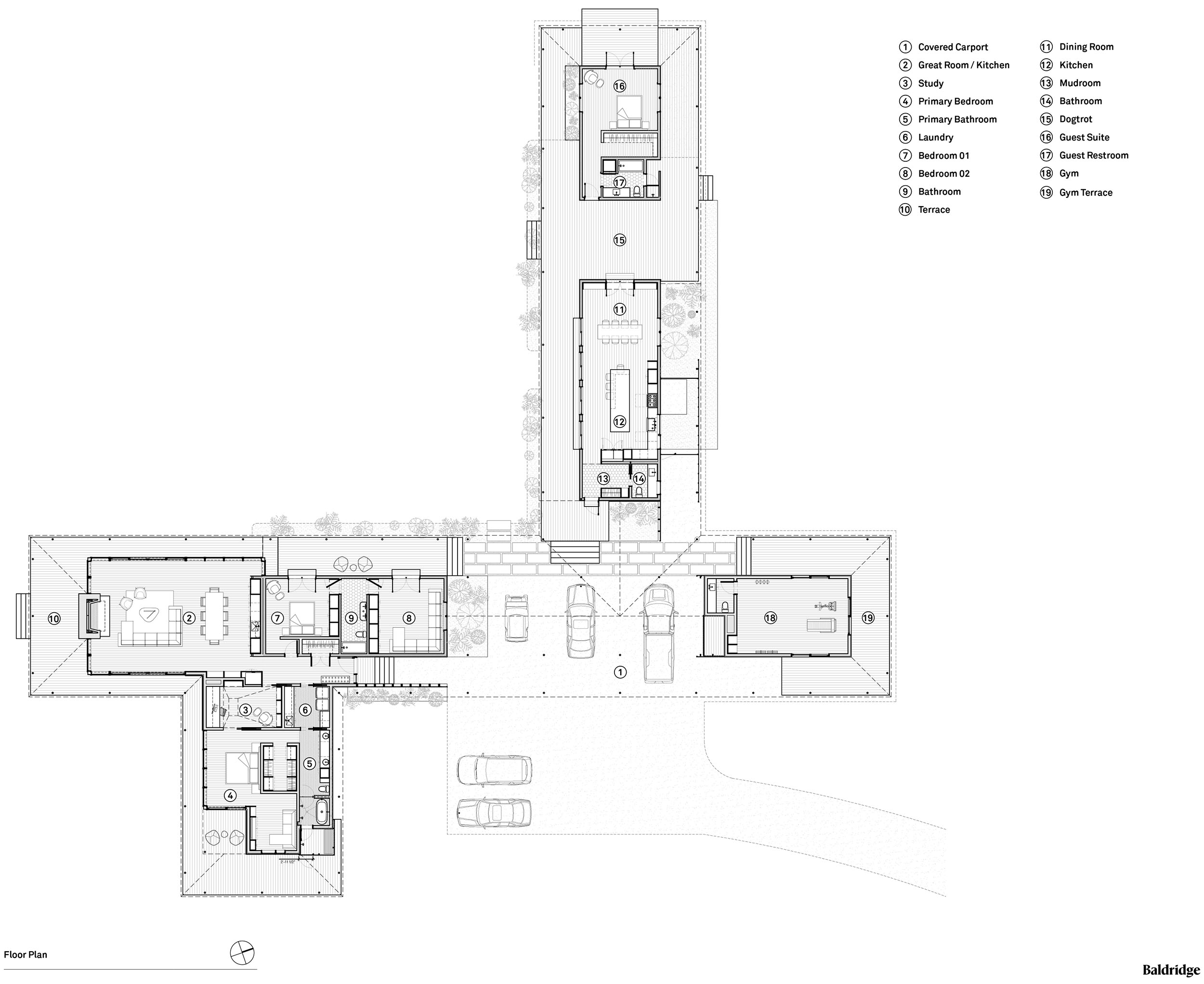
最终的设计保留了一个清晰的概念。卧室、车棚、厨房、办公室、大房间和健身房等各个体量共同位于一个单独的大屋顶下。新的波纹聚碳酸酯屋顶与原有屋顶相得益彰,创造出一个令人惊叹的入口兼车棚空间,同时让光线进入现有房间。这些空间共同构成了一个焦点,其本身也是德克萨斯中部地区通风走廊式小屋(dogtrot)的浓缩。
The resulting design preserves a conceptual legibility. Bedrooms, carport, kitchen, offices, great room, and gym all reside as volumes under a single roof gesture. New corrugated polycarbonate roofing matching the preexisting roof to create a stunning entry / carport, while allowing light into the existing rooms. Together, these spaces become the focal point that is, itself, a distillation of a central Texas dog-trot.
▼小餐厅,secondary kitchen/dining room © Casey Dunn
▼书房,study © Casey Dunn
▼室内望向室外露台,view from interior to the outdoor terrace © Casey Dunn
▼卧室,bedroom © Casey Dunn
▼主卧室,master bedroom © Casey Dunn
▼儿童房,babyroom © Casey Dunn
▼健身房,gym © Casey Dunn
▼浴室,bedroom © Casey Dunn
平面的独创性源于实用主义的限制。在任何时候,客户都需要在混乱的施工环境中居住……甚至还要带着一个新生儿。设计既要考虑到最终结构,又要考虑到必要的后勤,以满足不间断的居住需求。虽然这些后勤工作在设计中起到了一定的作用,但在最终的结构中却看不到这一点,因为其被完美解决,而且干净整洁。这一点在细微之处体现得尤为明显:地板无缝地滑入原石炉台下面,并露出 1/4 英寸,组合木板和隐藏的钢结构的在复合悬臂处提供额外的支撑。
The ingenuity of the plan was born of pragmatic constraints. At all times, the clients needed to live in the structures amidst the chaos and mess of construction…with a newborn, no less. The design needed to contemplate the finished structure, but also the necessary logistics to accommodate uninterrupted occupation. While those logistics played a role in the design, one cannot see that in the resulting structure—it is fully resolved and clean. This is especially true in the small moments; the way the raw stone hearth allows the floor to seamlessly slip beneath with a 1/4” reveal or the way the flitched wood and steel structure invisibly allows for additional support at the compound cantilevers.
▼夜景,night view © Casey Dunn
▼翻新前场地平面,site plan before renovation © Casey Dunn
▼翻新后场地平面,site plan after renovation © Casey Dunn
▼平面,plan © Casey Dunn
Baldridge Architects design team
Burton Baldridge, Project Architect
Brian Bedrosian, Project Manager
Drew McMillian, Senior Designer
Project team
Architecture and Interiors: Baldridge Architects
Builder: Duecker Construction Company
Structural Engineer: Dennis Duffy Engineering
Landscape: Campbell Landscape Architecture (preexisting)
Photography: Casey Dunn
客服
消息
收藏
下载
最近





































