查看完整案例

收藏

下载

翻译
CLEVER KIDS
Type: Public Project Area: 1700 м2Project Year: 2019-2020 yearsLocation: Kyiv, Ukraine
Status: in progress
Architecture workshop: PAINTIT
Autors: Juliy Cherevko, Tanya Filipenko, Toma Podolyanko, Alona Ovdiienko, Yana Lytvynenko
Foreword
Our architectural workshop was lucky to take part in the development of the design project of the kindergarten of different age groups.Since our project is located in one of the new residential complexes in the central part of Kiev, an important criterion was - to meet the appropriate level and meet the high expectations of consumers.
The first stage of work on the project is the study of this specific area. Clever Kids includes the concept of child development and this project should unleash the full potential of the educational institution.
Clever Kids is a family of kindergarten schools where children are treated with sensitivity and respect. A deep understanding of the age characteristics and needs of children, advanced educational methods allow Clever Kids to give the knowledge and skills that the child needs at a particular point in time and will help him become a great personality.
CONCEPT
Concept of the interior space and the school is to express the spirit of childhood, play and the beginning of cognition of the world. Education not only can but should be interesting, inspire and hold the attention of children.The color scheme is consonant with the product itself and was selected taking into account the brand identity.
Clever Kids is classified according to the age of the children because the schedule of the child depends on this. There is a kindergarten with three areas of study on the ground floor.In each group, the needs of the child and the necessary accessories are well-thought-out. The heights, the amount of furniture and the concepts of each group also differ.
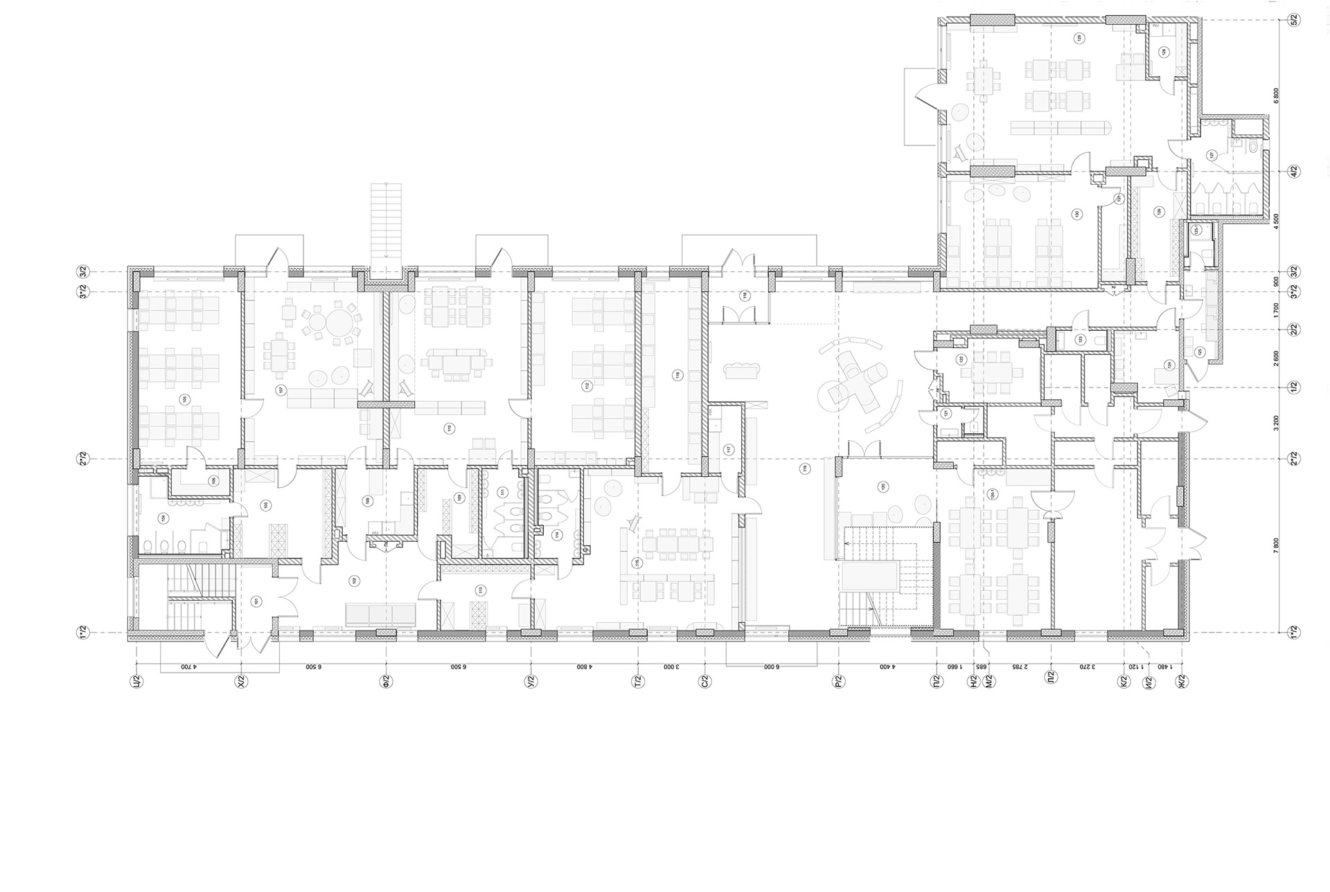
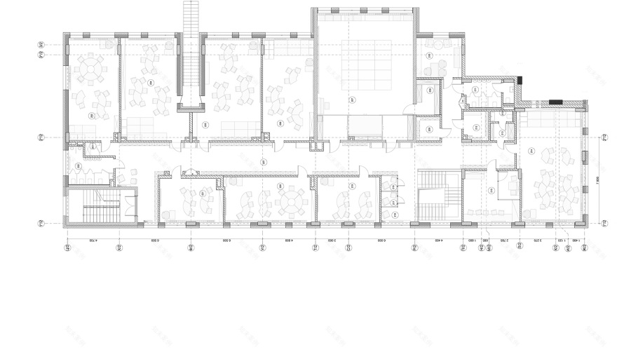
FIRST FLOOR
KINDERGARTEN
1.6 - 7 years
Groups:
Eurica, Discovery, Explorer
SECOND FLOOR
JUNIOR SCHOOL
6 - 10 years
THANKS FOR WATCHING!
Behance Facebook Web Instagram Pinterest
客服
消息
收藏
下载
最近




































