查看完整案例

收藏

下载

翻译
LONE START
ALIVE DESIGN
Interior & Architecture Design, Visualization
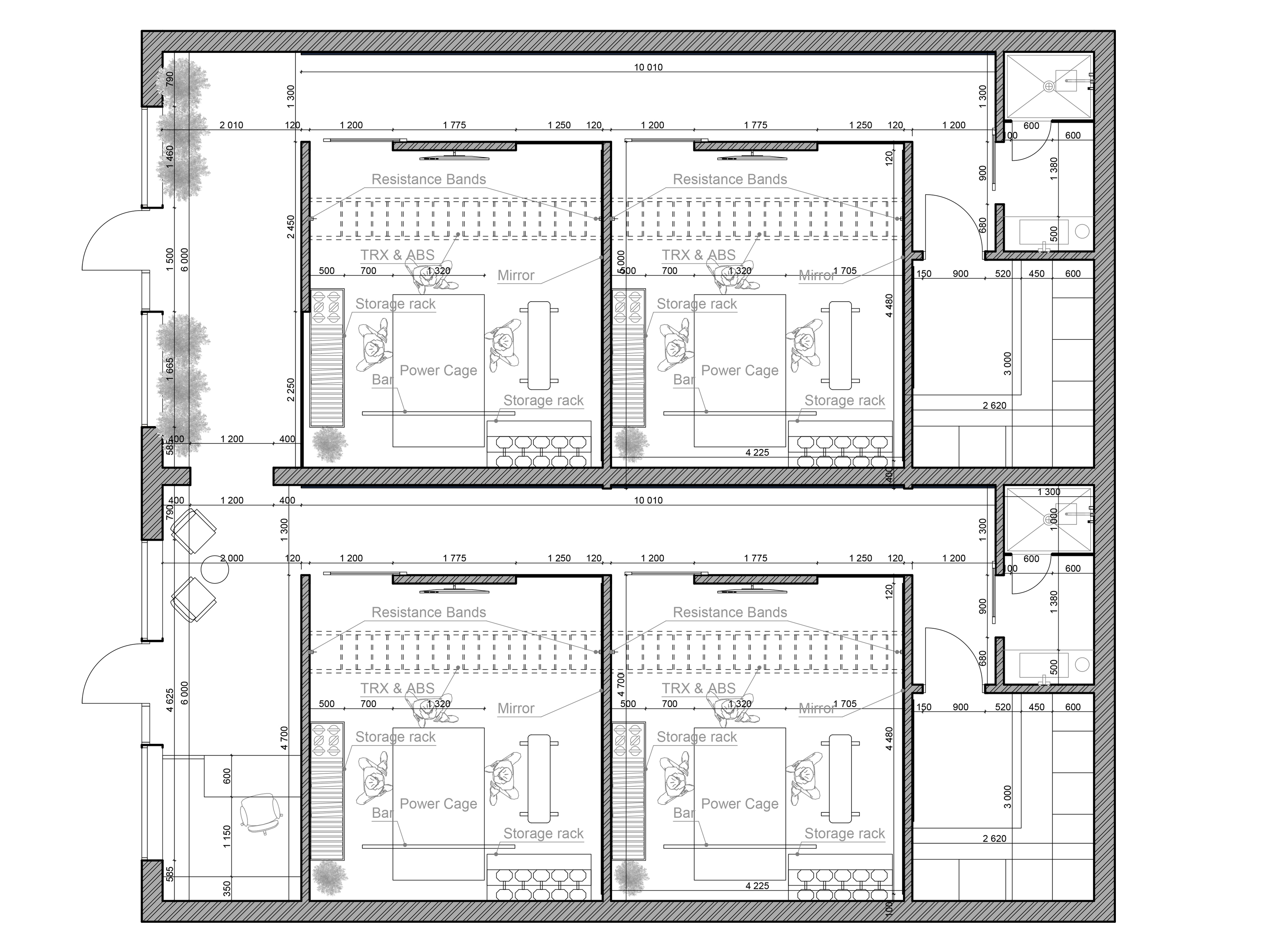
FM 544 SUITE 108, Wylie, Texas.
Interior design of a gym in Wylie, Texas. We developed 4 training rooms with all necessary equipment, taking into account anthropometric data and convenience of transit paths. Clients can train with a coach in the room or via Zoom connection. Each room features colored lighting that can change according to the intensity of the workout and clients' desire to emotionally tune into a certain type of exercise. In the reception area, we installed a map of Texas with backlighting made of metal and glass. The idea is based on the patriotism of the state's population, love for the land, veterans, and respect for the football team. Our project helps clients focus on their training and creates comfortable conditions for gym visitors to improve their overall workout experience
客服
消息
收藏
下载
最近









