查看完整案例

收藏

下载

翻译
technology company office
Location: Moscow
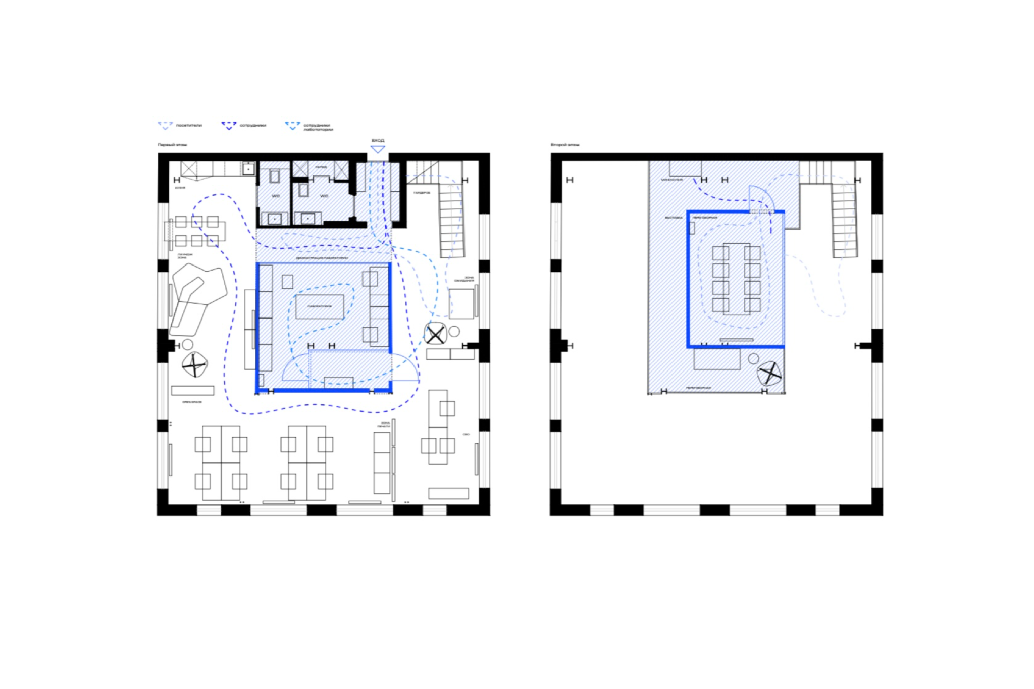
The office is located district of Moscow and occupies
the top floor of a low-rise business center.
Under the ceiling of the mezzanine floor we placed
a «floating» laboratory — dividing the office into zones.
The color scheme of the project was based
on the company's corporate color — blue.
The other colors — gray and white
— are background colors.
Adjacent to the meeting room is a kitchenette
for storing water and snacks, making tea and coffee
客服
消息
收藏
下载
最近













