查看完整案例

收藏

下载

翻译
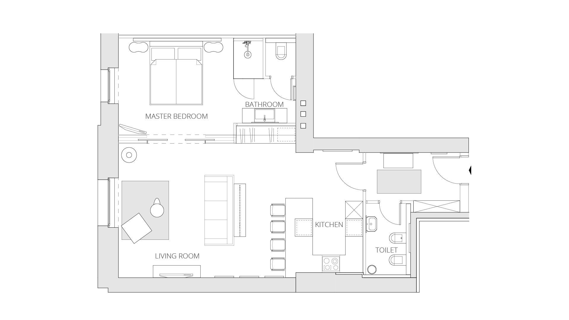
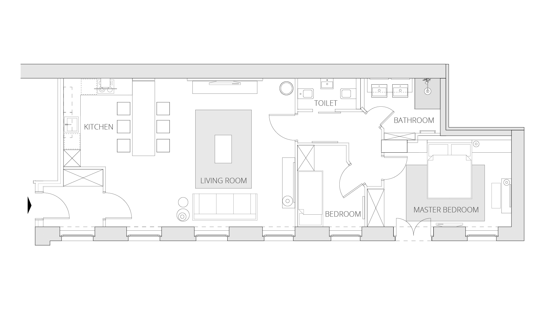
BAZILIKA RESIDENCE
Not far from St. Stephen’s Basilica, luxury apartments’ interior designs were created in three different styles as a part of a building renovation project. The first design concept included details like moulding, hardwood flooring and marble cover, and it was paired with the classic apartments of 4-meter ceiling height. The warmer-toned, more homely concept got space in the attic units. The apartments with a more sensual and erotic atmosphere are made even more mysterious by dark, shiny surfaces and shower cubicles with golden mosaics.
SEXY
LUXURY
FAMILY
Credits:
Client: Basilika Residence
Interior Design: Nakedhome
Partner: ArtDot
Visualisations: Szabolcs Császár, Hella Sarnyai
客服
消息
收藏
下载
最近






































