查看完整案例

收藏

下载
设计:anySCALE任督设计
设计团队:Tom Chan、Alex Li、Junjun Mei、Jialin Wang、Ziwei Zhang
地址:中国 北京
面积:1,361 平方米
竣工时间:2023年01月
家具:MATSU 玛祖铭立
摄影:Vincent Wu
Tags:投资,北京、工业老厂房、阳光广场、深灰色、天窗、木质人字拱顶、红砖墙、瓦楞玻璃栏杆
新华1949园区,前身是成立于1949年的新华印刷厂,园区内的每幢建筑都具有深厚的历史背景,记录着新中国成长的步履。
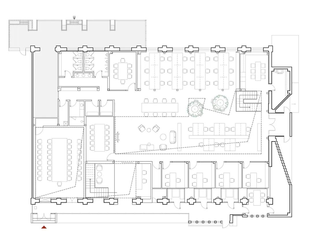
项目位于园区中的一个独栋的老厂房,方正的盒子形状,红砖外墙加上带天窗的暖色木质人字拱顶,是整个项目最具特点的结构形态。因为原本是厂房,层高高,原本满铺搭建了钢结构的二层。
充分理解客户的使用需求后,设计师重新规划了内部的二层结构,在房子的中央偏西、沿着房子的走向,预留出一个长方形的两层挑空的小广场,让阳光可以穿过屋顶的天窗,直接洒落到广场的地面,整个内部空间,无论是开放或者单独的房间,都可以充分沐浴到自然光,而巧妙隐藏在梁柱结构之间的人造光线,经过反射雕琢带来明暗交错,也让屋顶梁体结构传递出光影流离的震撼质感。
△ 轴测图
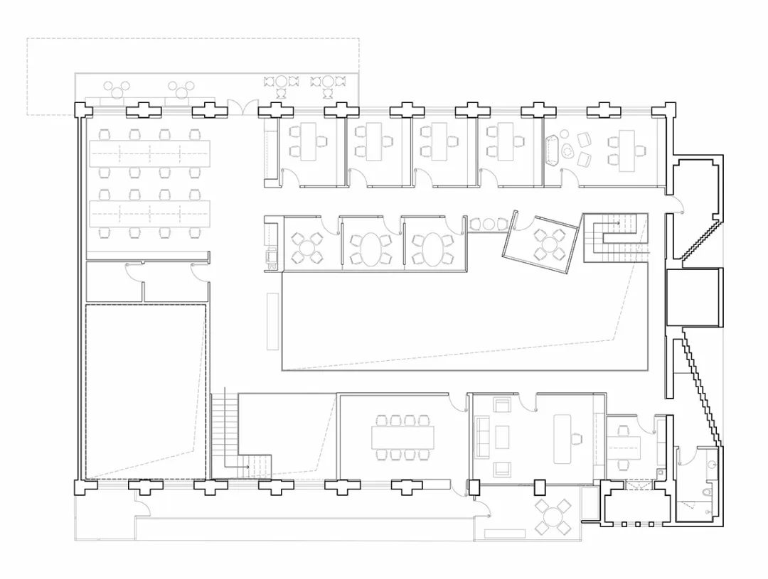
广场的西边为建筑出口,南、北和西边形成上下两层的结构,南边上下两层、北边的上层和西边的下层为独立的房间,北边下层为开放的办公区,广场则变成兼顾等候、洽谈、路演、灵动办公、团队交流的多功能区域,而广场北边的上层悬空横挑出来四个玻璃盒子:三个顺接连排,稍微错开后,一个斜靠,形成四个俯视广场的独立会议。悬挑方块、阳光广场,以及屋顶悬架一起,营造出富有节奏感的空间主旋律。
△ 一楼平面图
△ 二楼平面图
整个项目的主入口在建筑南边靠西的地方,单独设计了一个简约的方形门头,南边大门进入,然后右转从东边推开第二扇玻璃门,进入一道长长的外加的玻璃走廊,走廊的北面就是红砖的建筑外墙,依次是大会议室(挑空层高),前台(往北穿过前台就会进入内部广场),然后是若干小的封闭的独立洽谈室或工作间,形成了一个完整的、对外的会议区。
红砖外墙、深木色的屋顶结构,加入深灰色金属板墙面和门框、黑色描边瓦楞玻璃栏杆、灰色地毯、点缀蓝色布艺,严谨分布的自然舒展植物形态,都是极其简约的构造手法,只为了让阳光和结构都尽可能保留空间最原始的状态,于看似无用处,全力以赴!
客服
消息
收藏
下载
最近



























