查看完整案例

收藏

下载

翻译
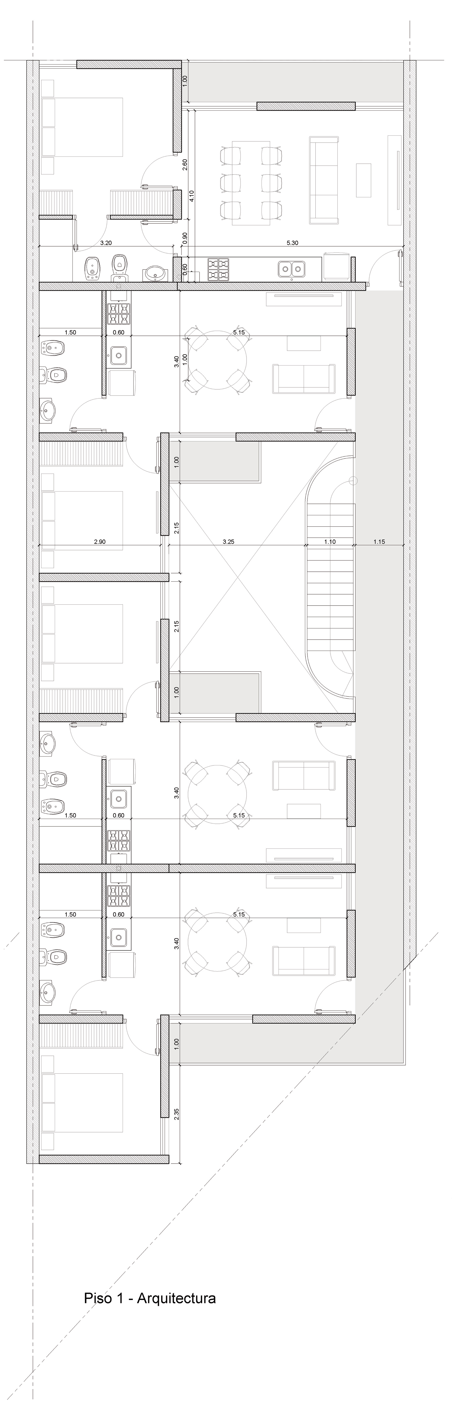
Complejo de vivienda colectiva en la ciudad de Santa Fe.8 Dptos de 40 m2 + 2 Deptos de 42.25 m2 + 5 Cocheras.Superficie: 402 m2 Cubiertos + 191m2 semicubiertos.Ciudad de Santa Fe - Santa Fe. Año 2022Anteproyecto realizado para la empresa Hormitec SRL.Equipo Técnico: Arq. Ramiro SosaHormitec: Pablo Alzari, Ing. Julia Duarte, Ing. Leonardo Esquivel, Arq. Nahuel Baiche, Arq. Guillermo Peralta, Brian Defant, Jonathan Amring, Sergio Quintana
客服
消息
收藏
下载
最近










