查看完整案例


收藏

下载
本方案通过“简单”、“多色”、“开放空间”的设计理念来诠释“居“、“作”自由变换的新生活模式。
开放串联的住宅公共空间配置后视觉创投效果更为强烈,令整体空间的视野变得开阔,增强了气韵流动的通透感。地面选择温润柔和的木纹砖、多元色的墙面来点亮整个空间,使整个空间不因空阔而感到单调,更贴近90后的生活形态。
打破空间的疆界,将会客区、餐厅兼书房等进行空间的链接,融入“色彩”元素,在入口玄关处点缀亮色的小黄人摆件,释放出年轻的奔放。公共区域大胆的采用了三原色的装饰元素来作为搭配,令无空间拘束感的开放区在拥有温馨感的同时又富有“私人工作室”的个性。
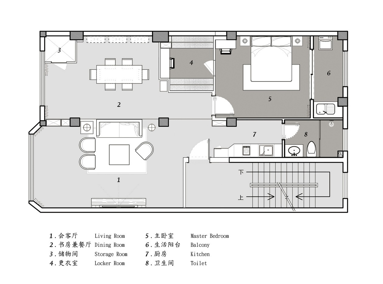
项目名称:90后私宅/好色主义 项目地点:广东省汕头市潮南区 设计单位:汕头市新一设计有限公司 设计主创:张新强 完工时间:2019.08 建筑面积:100㎡ 主要材料:木纹砖 墙布 免漆板 空间摄影:邱少雄
设计师:张新强 新一设计创始人、设计总监 NEWONES新一设计成立于2016年,以90后为设计团队主力,专注建筑室内设计。为新生代客户的生活、工作注入更多的个性化定制设计,描绘出每位客户心中的专属设计蓝图。 提供:综合商业体/店面设计、办公会所空间整合及设计以及住宅/公寓装修设计等。
客服
消息
收藏
下载
最近


















