查看完整案例

收藏

下载

翻译
Architects:INDY ARCHITECTES
Area:176m²
Year:2023
Photographs:Laura Lyson Photograph
Lead Architects:Josselin GUILLO, Nicolas DULAURENT
City:Grenoble
Country:France
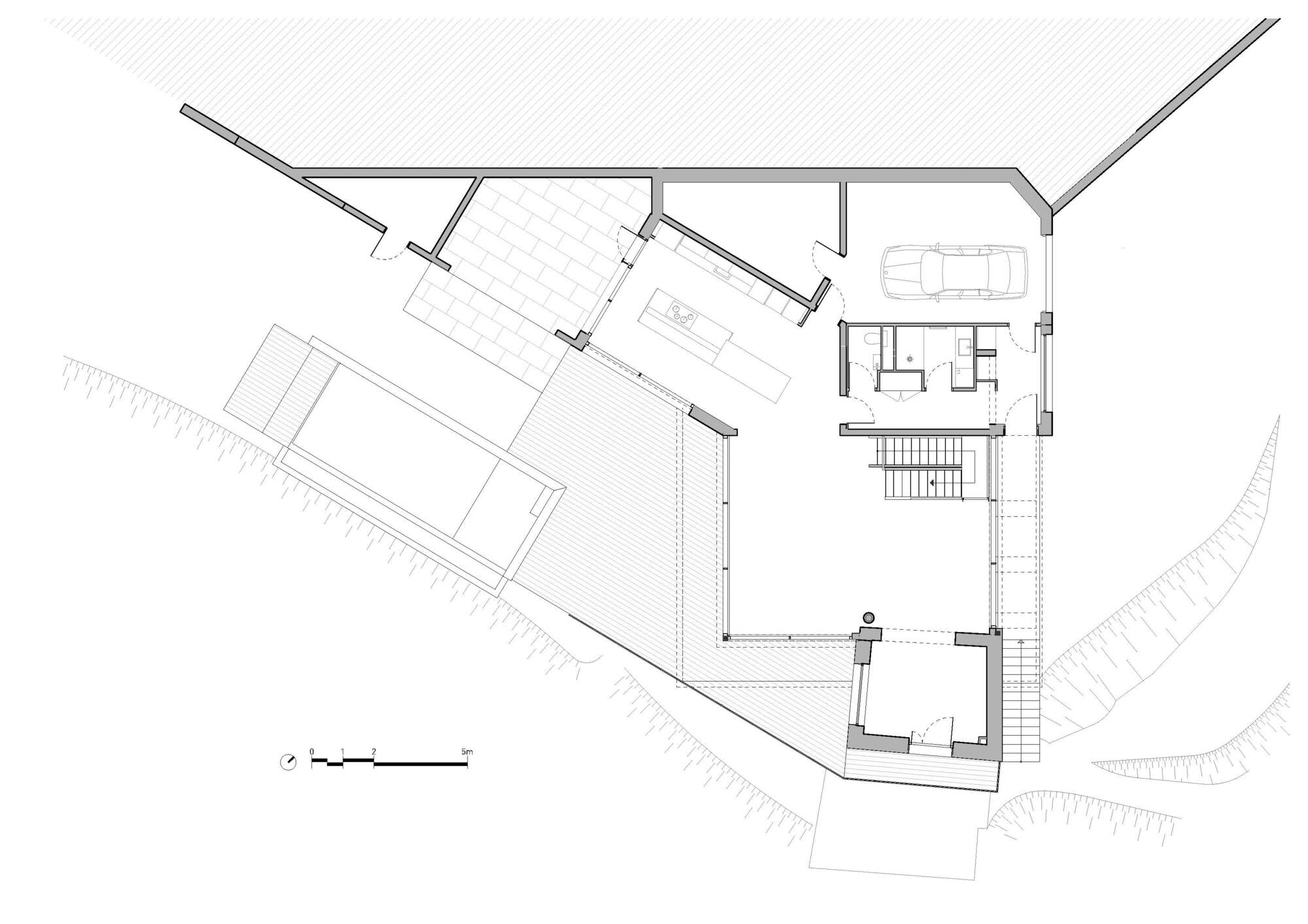
Text description provided by the architects. This project is located on the heights of the Isère Valley and enjoys a panoramic view of the Belledonne mountain chain. The challenge was to restore and transform an existing old vineyard house into a home offering comfortable spaces and the ability to enjoy views of the large landscape while providing significant energy performance. It was, therefore, necessary to develop an important bioclimatic strategy to compensate for the over-glazing spaces desired by the clients.
It was chosen to integrate part of the constructions into the slope of the site, to decrease the impact on the environment and the landscape while benefiting from the thermal inertia and comfort of these «troglodyte» volumes. A long retaining wall in stamped raw concrete reveals the «excavation» carried out on the site to give place to the noblest living spaces. It acts as a tectonic and landscape fold, hence its materiality which recalls the rock strata of the ground on which the project is built.
The upper floor volume which includes bedrooms and all «night areas» plays an important role in the sun protection and thermal comfort of the whole construction. It is placed like a suspended crowning between the «ground-integrated spaces» and the existing vineyard house and acts as a large awning protecting the glazed spaces. The upper floor is surrounded by a passageway protected by wooden sunshades. Some openings have strategically been positioned in this system so as not to cut off the main direct views of the landscape.
Large sliding glass frames allow partial or total opening of the facades of the main living room on the outside. Depending on the seasons, the house is a protective bubble of comfort and contemplation of the large landscape and environment, or on the contrary a completely opened interior/exterior continuity of the garden.
Project gallery
客服
消息
收藏
下载
最近



































