查看完整案例

收藏

下载

翻译
Architects:Carolina Penna Arquitetos
Area:107639ft²
Year:2022
Photographs:Guilherme Pucci
Lead Architect:Carolina Penna
Coordinating Architect:Lucas Albano
Architect:Ana Wen, Clara Bernardes
Landscaping:Gabriella Ornaghi e Bianca Vasone Arquitetura da Paisagem
Electrical And Hydraulic:Ramoska e Castellani
Visual Communication:Estúdio Arnold
Construction:Faconstru Construção
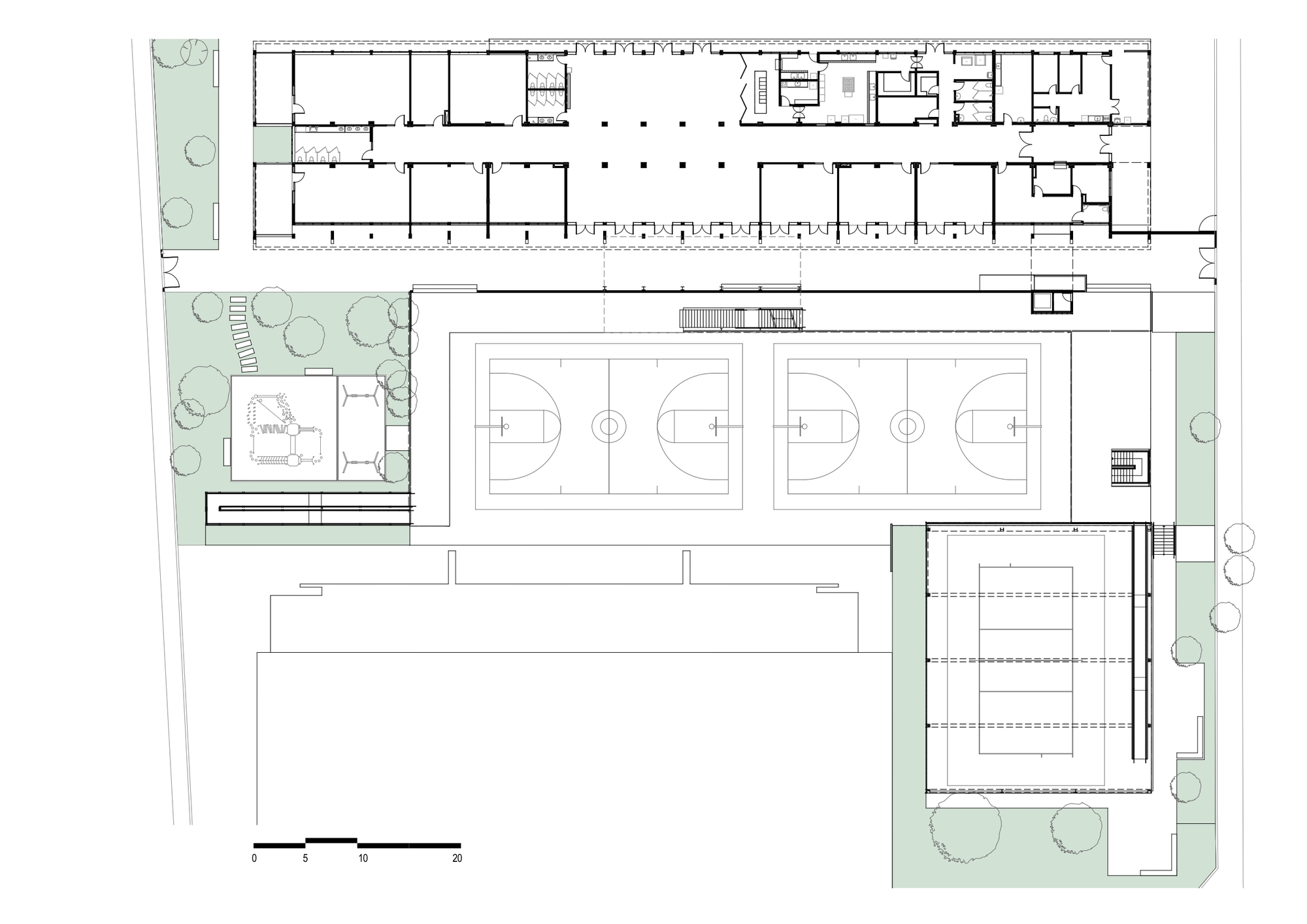
Program:Escola Municipal de Educação Fundamental 20 salas de aula 16 salas de apoio 08 estúdios 02 laboratórios 01 sala de artes 01 biblioteca 01 auditório e sala de exposições 01 espaço maker 01 sala de música 01 sala de dança 01 refeitório + cozinha 01 pátio coberto 01 pátio descoberto sanitários área pedagógica área administrativa área de serviços Escola Municipal de Educação Infantil 05 salas de aula 02 berçários 01 sala multiuso 01 refeitório + cozinha 01 pátio coberto sanitários área pedagógica área administrativa área de serviços Área esportiva 02 quadras poliesportivas externas 01 quadra coberta 01 playground Jardins e horta
City:São Caetano do Sul
Country:Brazil
(Re)constructing NarrativesThe project involves the renovation and expansion of a building constructed in 1968, originally intended for the Ginásio Vocacional da Vila de Santa Maria.
The Ginásios Vocacionais were public schools that were part of an experimental education project in the State of São Paulo between 1961 and 1970, with units in six municipalities, including São Caetano do Sul.
The aim of the vocational gyms was to provide a student-centered education, encouraging critical thinking and engagement with the social reality through practical and interdisciplinary experiences. It was a progressive model for its time but was discontinued at the onset of the military dictatorship.
Reflecting on heritage preservation reveals not only what we value but also what we choose to leave behind. Preserving sites like the Ginásios Vocacionais goes beyond architectural conservation; it is a political statement about what we deem significant in our collective history. Additionally, choosing to preserve and requalify the building is a sustainable action, as it contributes to conserving natural resources by reducing waste and generating less debris while maximizing the use of existing materials and infrastructure.
The fundamental concept of the project was to honor the memory and legacy of the Ginásios Vocacionais while incorporating contemporary demands in pedagogy and technology. To balance the past and present, we differentiated the materiality between the original structure and the new additions. Elements such as metal structures, polycarbonate, and glass were introduced, contrasting with the solidity of the original concrete building.
The client decided that the building would house two public schools: one for early childhood education and another for elementary education. Although they have separate administrations and operations, the project promotes dynamic integration between the two schools. The goal is to enhance the existing infrastructure and foster socialization among children of different ages, promoting social skills such as empathy and cooperation, as well as stimulating creativity and communication in an inclusive learning environment.
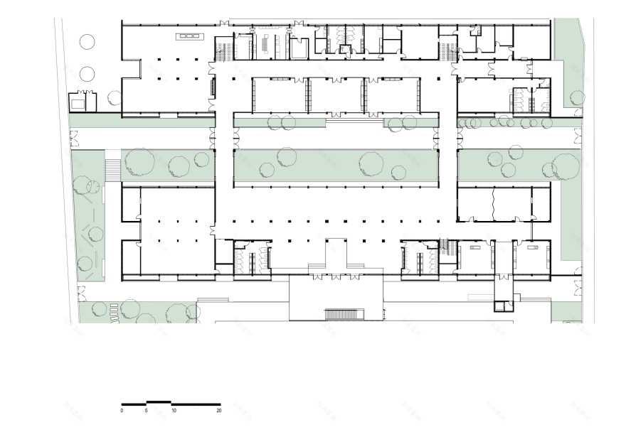
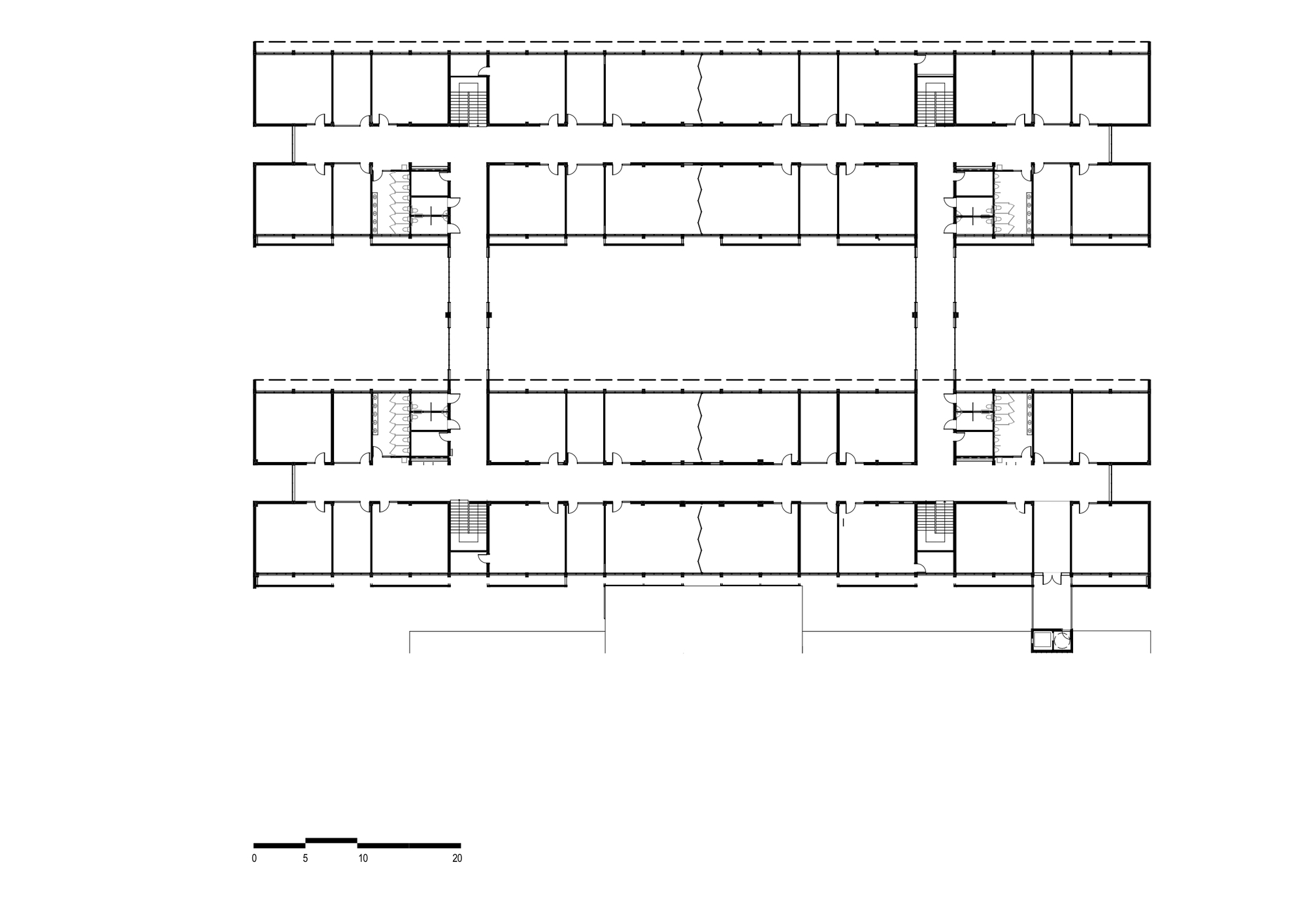
To achieve this, we reorganized the building's zoning, ensuring that each school could operate independently while sharing spaces like sports areas, outdoor areas, communal spaces, and play areas. The ground floor focuses on communal and interactive spaces, including the courtyard, auditorium, dance and music studio, and library. The upper floor accommodates the elementary education learning environments: classrooms, coordination room, multi-purpose studios, and educational support room. The lower floor houses the early childhood education school, with easy access to green and sports areas. The outdoor area features a playground, gardens, a vegetable patch, and three sports courts, one of which was converted into a covered gymnasium.
The integration of spaces is reflected in the increase of transparency and natural lighting. We introduced light into the building through zenithal openings in the classroom corridors, new floor-to-ceiling glass facades for the courtyards and communal areas on the ground floor, and walkways.
The relationship between past and present celebrates the building's history and promotes a new, sustainable, and inspiring learning environment.
Project gallery
Project location
Address:São Caetano do Sul, Brazil
客服
消息
收藏
下载
最近


































