知末
知末
创作上传
VIP
收藏下载
登录 | 注册有礼

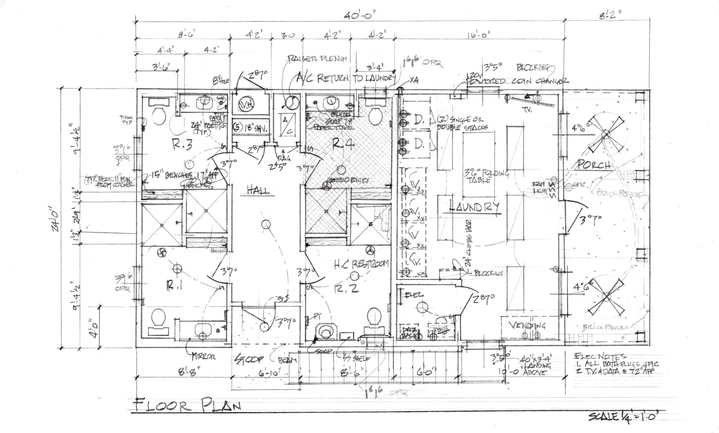
RV 公园洗衣房,洗手间建筑

2023/11/07 01:56:07
查看完整案例
微信扫一扫
收藏
下载
翻译
Hotline | +84 588585585
RV 公园洗衣房,洗手间建筑-1
RV 公园洗衣房,洗手间建筑-2
RV 公园洗衣房,洗手间建筑-3
RV 公园洗衣房,洗手间建筑-4
RV 公园洗衣房,洗手间建筑-5
RV 公园洗衣房,洗手间建筑-6
RV 公园洗衣房,洗手间建筑-7
RV 公园洗衣房,洗手间建筑-8
RV 公园洗衣房,洗手间建筑-9
南京喵熊网络科技有限公司 苏ICP备18050492号-4知末 © 2018—2020 . All photos and trademark graphics are copyrighted by their owners.增值电信业务经营许可证(ICP)苏B2-20201444苏公网安备 32011302321234号
客服
消息
收藏
下载
最近