查看完整案例

收藏

下载

翻译
FDE SYSTEM SCHOOL / / PROJECT 4 - COLLECTIVE SPACE PROJECT / 2021.1 / PUC-Rio
ENGENHO DE DENTRO, RIO DE JANEIRO, BRAZIL
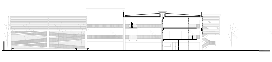
The occupation of the building on the site takes place from two main movements, the alignment of the school block with the corner existing on the site and the positioning of the elements of vertical circulation, with stairs and ramps, in contraposition on the same axis. From these two articulating movements, the entire school program is organized. On the ground floor, a longitudinal axis of circulation is generated that runs through the entire site, functioning as an internal street that, due to its dimensions, invites the public to enter it and discover the space consisting of a sports court, library, administrative space and kitchen/ canteen, as well as a large outdoor patio at the back of the site serving as a square for the school. The way in which this program is distributed ends up generating another axis that divides the school into a space with a more public program, the sports court and the library, and another more controlled one, the administrative space, the kitchen and the outdoor square . This division means that the library and the court can be used by residents of the neighborhood without interfering with school activities. Thinking about making the school's spatial experience more complex and realizing the serial character of the FDE system, we chose to spatially dilute two building modules, creating a void that goes from the ground floor to the top floor, making it a broad and central space for the school. This void integrates the building's internal spaces, just as the circulation axes integrate the external spaces.
客服
消息
收藏
下载
最近








