查看完整案例


收藏

下载
University, Ahmedabad, India
设计师:Vir.Mueller Architects
面积: 252000 ft²
年份:2015
摄影:Andre J Fanthome
Landscape Architect:Shaheer Associates
Contractor:BPC Projects & Infrastructure
Structural Engineer:Himanshu Parikh Consulting Engineers
Mechanical, Electrical & Plumbing Engineer:Jhaveri Associates
Partners In Charge:Christine Mueller, Pankaj Vir Gupta
Project Team:Saurabh Jain, Priyam Ballav Goswami, Avneet Kaur, Mansi Maheshwari, Prashant Singh Hada, Bhavika Aggarwal
City:Ahmedabad
Country:India
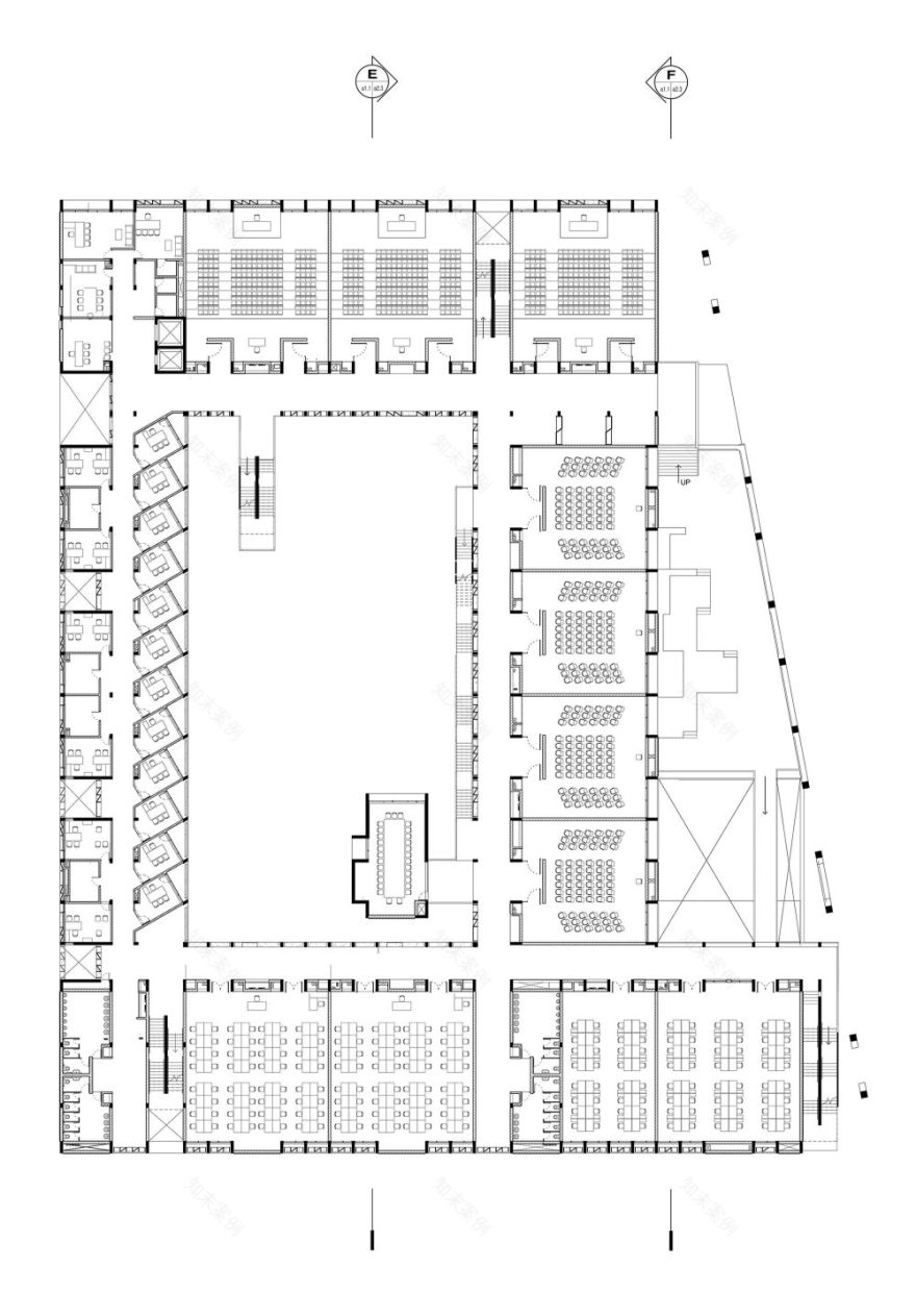
The architectural design for the Institute of Engineering and Technology at Ahmedabad University exemplifies the typology of an academic quadrangle - a central courtyard garden, flanked by student and faculty rooms. Timeless yet contemporary, this cloister anchors a community of students and scholars - many of whom are the first in their families to attend college.
The structure compliments the sequence of space with an array of columns, creating flexible large-span spaces, suitable for an evolving academic program. The building circulation - in the form of cantilevered stairs and screened galleries - weaves alongside the courtyard, creating a dynamic relationship between landscape and architecture.
The galleries and corridors are designed to facilitate seamless movement, while offering repose with a line of sandstone benches oriented towards views of the garden. The architecture engages an intense climatic condition - summer temperatures soar to 45 degrees Celcius - with sensitivity, employing red sandstone screens to filter the sun while enhancing the play of light and shadow in the rooms.
The landscape design evokes micro-climates within the building: a sunken garden “kund” is situated between the canteen and the auditorium, creating an informal gathering space for students; the roof of the auditorium is designed as a shaded terrace “maidaan” - a paved garden - offering views of the Ahmedabad University plaza. Red sandstone screens weave a kinetic sculpture within the central courtyard, filtering light by day and emitting a soft glow at dusk.
Ahmedabad nurtures a rare and remarkable legacy of excellence in education and in architecture. The Institute of Engineering and Technology at Ahmedabad University celebrates a renewal of this vision.
项目完工照片 | Finished Photos
设计师:Vir.Mueller Architects
分类:University
语言:英语
客服
消息
收藏
下载
最近





























