查看完整案例

收藏

下载
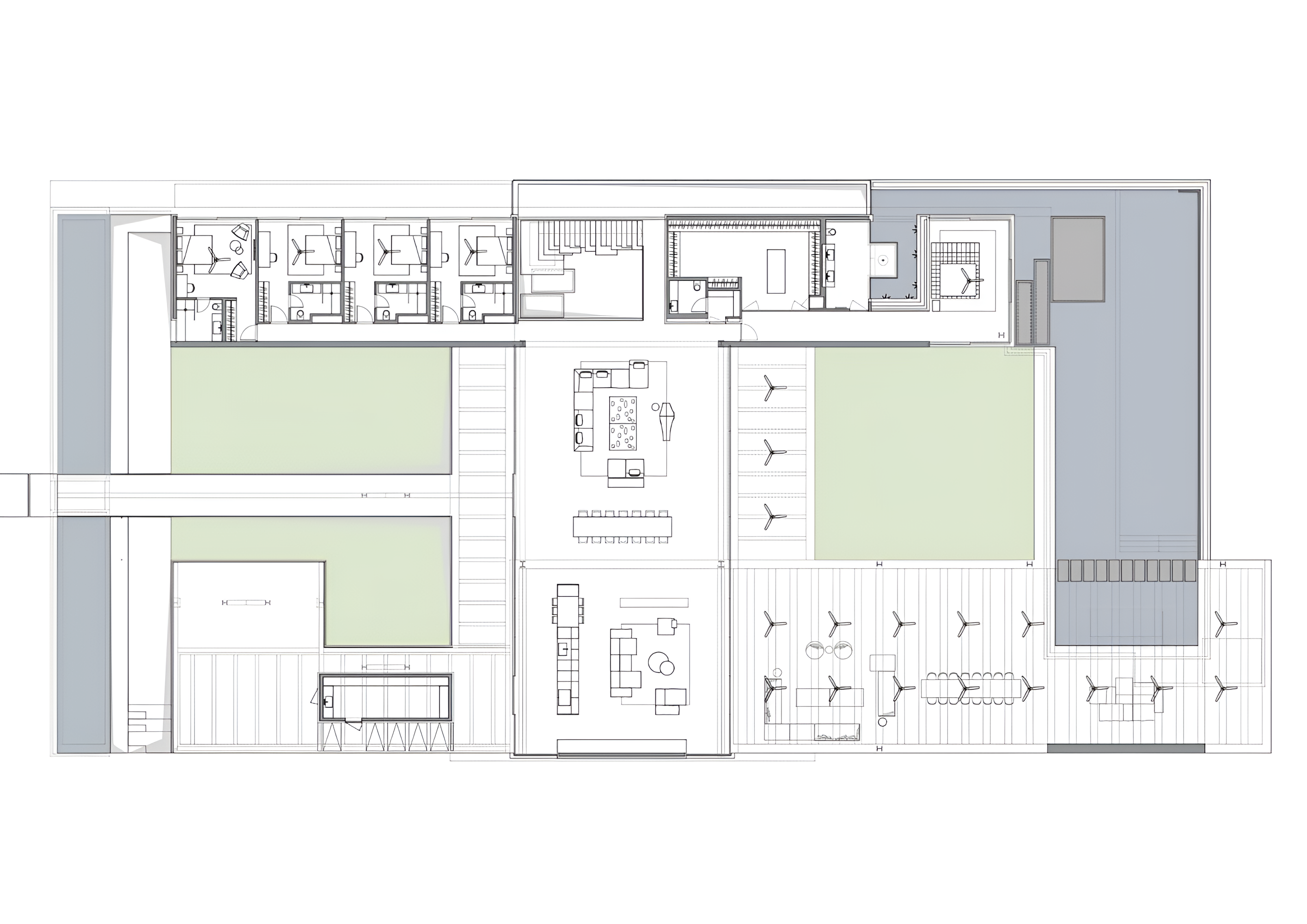
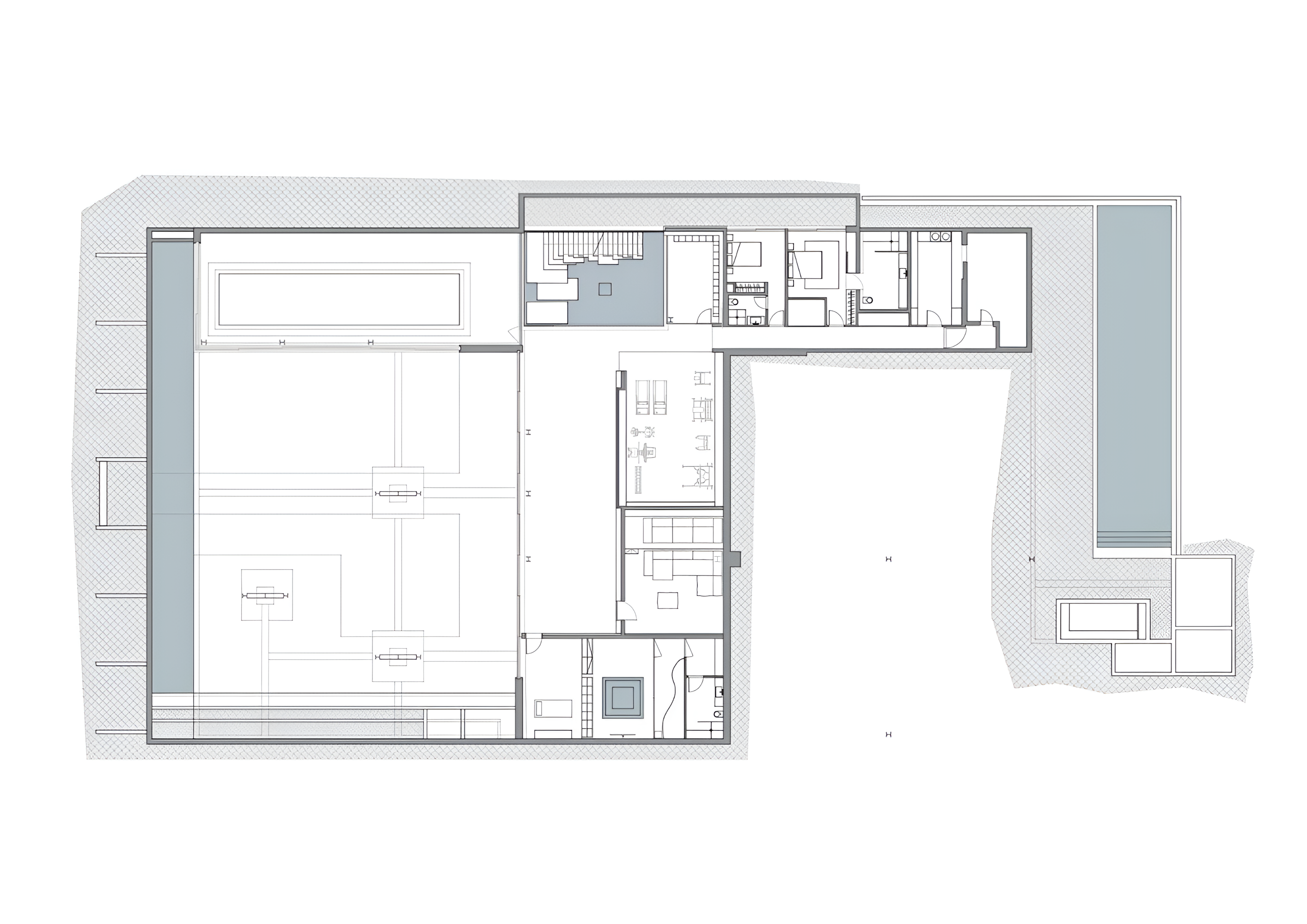
这栋单层住宅坐落在一个安静的住宅区,以 76 米长的外墙迎接游客。一条倾斜的混凝土堤道穿过白色几何
mashrabiya
进入室内,该
mashrabiya
横跨整个外墙,裸露的混凝土墙与其呼应,同时提供隐私。一个郁郁葱葱的下沉式庭院位于通风格子和混凝土墙之间形成的空间中,光线可以照进地下室,地下室用作家庭水疗中心,配有奥林匹克规格的游泳池。沿着游泳池长度延伸的水疗墙以对角线几何形状为特色,与屋顶相呼应,并覆盖有铝,反射出泳池水中的光线图案。
漂浮效果在屋顶上得到重申,屋顶几乎完全脱离房屋的墙壁,似乎悬停在结构上方。屋顶的特点是突出房屋墙壁的独特几何结构。中央空间的天花板上设有不少于 47 个大小和形状各异的天窗,作为额外的自然光源。
客服
消息
收藏
下载
最近












































