查看完整案例

收藏

下载

翻译
Architects:Duarte Fournies Arquitectos
Area:1291ft²
Year:2023
Photographs:Marcos Zegers
Manufacturers:ARRATIA,Ducasse,ETERWIND,Kitchencenter,Opendark,Roca,Volcan
Lead Architects:Hernán Fournies y Juan Pablo Duarte
Calculator:Raul Castellanos
Lighting Design:Elizabeth Dominguez (Opendark)
Program:Housing
City:Las Trancas
Country:Chile
Text description provided by the architects. The site is located in a forest in the Trancas Valley (Andes Mountains), Central Chile. The climate in this area presents extreme conditions. In winter you can find snow and rain, while in summer clear skies and high temperatures are common.
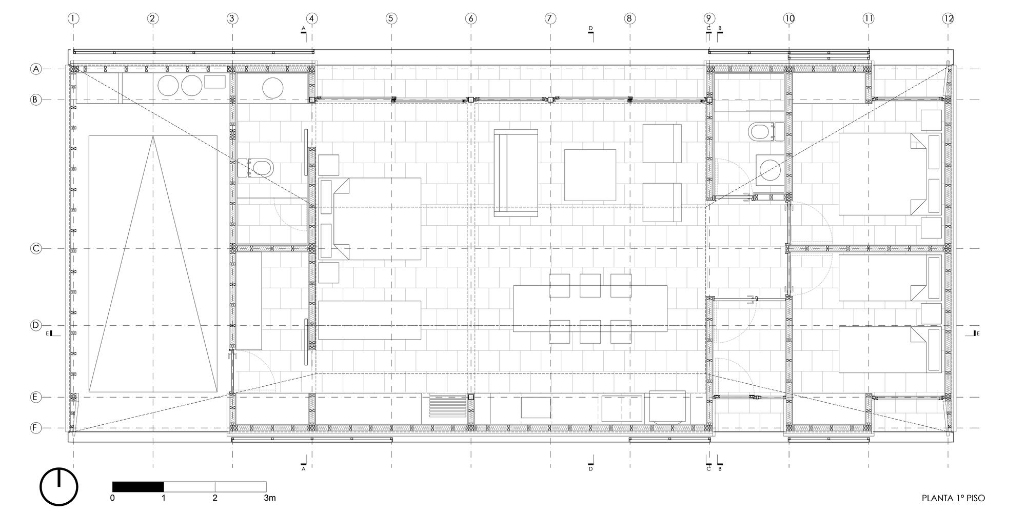
Alejandra will live alone in this secluded location and receive occasional visitors. The requested program includes a master bedroom, two guest bedrooms, living room, dining room and kitchen.
Considering the use of the house and the available budget, we decided to integrate all the spaces for daily use in a single central area, with the visitor and service areas at the ends. In this way, we optimized the square meters built, minimized the circulation areas and achieved greater efficiency in heating and lighting.
The entire program is developed in 100 m² interior and 20 m² semi-exterior for parking and loggia. The main access is from the south, through a hall that distributes the guest bedrooms and the central space. A secondary service access is considered that connects the parking and the loggia with the interior of the house, avoiding external circulations.
The central space is projected with greater height from floor to ceiling, solving the drainage of rainwater and generating a place of greater amplitude, providing cubic meters to a place of limited square meters. The living/dining room/kitchen and the master bedroom are developed here, with a system of folding doors that separates the private and public areas when necessary.
Most of the furniture, both in the kitchen and in the bedrooms, is placed on the south façade, configuring a hermetic image with punctual openings. On the other hand, the north façade is worked with large windows to obtain sunlight and views of the valley.
The entire structure is made of wood, covered with eucalyptus wood on the inside and metal panels on the outside. Few materials have been used to achieve a neutral image that highlights the natural landscape of the surroundings.
In all facade openings, we considered sliding panels with the same metal cladding of the house to solve security and climatic issues.
Project gallery
客服
消息
收藏
下载
最近
























