查看完整案例


收藏

下载
说在前面:
本案是一对夫妻的新居,偏爱黑与白的分明,希望家中尽可能的通透,保证足够的采光,消除黑白的凛冽,润饰出家中不繁杂的合心气质。
设计师基于黑与白,运用大理石、木质、玻璃等元素的质感融入其中,将黑白这样中性色彩的包容性发挥出来,小范围内出现的无论是大理石写意的纹理,还是餐厅摩登的灯带,都可以在这个空间里从容的娓娓道来。
空间布局
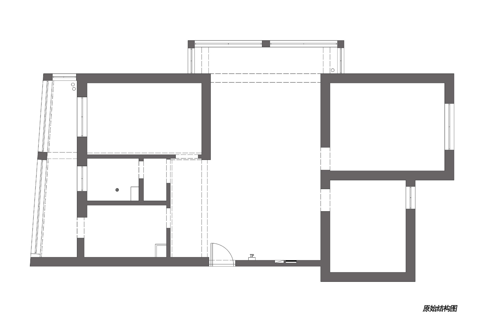
▲原户型问题&居住需求:
1.阳台空间过多,希望可以利用起来补充其他空间的功能。
2.原本卫生间面积就很小,还做了干湿分离变得更小,无法满足需求。厨房面积较小。
3.连接阳台的次卧空间没有直接的采光,需要调整。
4.提升客餐厅区域东西向的通透感。
5.预留独立的衣帽间。
▲解决方案:
1.阳台空间纳入,补充厨房、卫生间、休闲区。
2.拆除卫生间多余墙体,将干区与厨房外的岛台结合。重新规划卫生间与休闲区的隔墙,保证浴缸、淋浴等功能完整,新砌墙体避免阳角。
3.厨房由于阳台空间的纳入得到扩大,开放式厨房柜体延伸至入户处,与卫生间干区结合的岛台都补充了收纳空间与操作空间。
4.原本连接阳台的次卧空间直接将阳台的部分纳入,增加地台与翻转床可以作为临时客房使用。
5.靠近餐厅的房间作为衣帽间,增加移门留出新的通往外部露台的过道,也提升了客餐厅东西方向的通透感。
01
客厅
▲打开家门,餐厅与岛台列于门的两边,视线延伸至拥有两扇大落地窗的客厅处。空间中黑白色的搭配引入克制与安静的力量,不比色彩缤纷所饱含的张力、可传递的丰富情绪,却更适合抓住快节奏的城市生活中难得的静宜。
▲轻盈的竖百叶即使拉上也不会丢失室内的通透,光从中滤过,在地面投下的光影与家具朦胧的倒影一起像这个家沉默的另一面。顶面没有选择造型复杂的灯,黑色内嵌筒灯与线条让白色的天花板有重点的同时,保留应有的洁净感。
▲在包容的黑白之下,电视背景墙选择纹理富于变化的大理石以装饰,包覆造型规整的墙面,如宣纸上的墨色,渲染出蜿蜒地貌、皑皑雪原,无迹可寻的变化里,韵味却油然而生。电视内嵌式挂置,为保持入户处视线中墙面的平整观感。
▲客厅靠近窗户的两侧增加封闭式收纳柜体,与原本的墙面齐平,木色饰面从黑白中透露出温情,是悄悄铺陈好的暖色边界。沙发背景墙是白色亮面饰面板,腰线处点缀黑色线条,是黑白交织的家中的一部分。
▲黑白分明的一角。
餐 厅
▲餐厅与客厅距离较近,为了强调功能界限,利用颜色区分开。如光线照入家中,经过客厅,到了餐厅这边便沉淀了下来。侧面窄墙上的内嵌灯条与如墨的黑色碰撞出时空交叠的科幻感,从暗色的深沉中跳脱出来,摩登而现代。
▲餐厅距离厨房稍远,顾及到南北方向纵深与原本的空间大小,不能选择增加整面的柜体,于是选择沿墙面设计悬空柜,上层添加隔板,这样无论是杂物还是常喝的酒都有合适的位置有序摆放,黑白空间的简洁印象得以在日常生活中延续下去。餐桌沿用大理石元素,呼应电视背景墙与厨房前的岛台,绽放在白色上的纹理是自然挥洒的痕迹,为餐厅摩登的墙面添上一笔细腻。
▲留在餐桌上的镜像。
休闲区
▲休闲区是书房、客房、补充收纳的多功能集合空间,划分出一部分空间让卫生间的功能得以完整,又纳入部分阳台,增添临窗地台与翻转车,可以成为客房使用。书桌选择现场制作,简洁明了,更加契合实地并不规则的房间。
干区&岛台
▲厨房与卫生间向阳台方向的延伸,入户门一侧多出了不小的一块空间,为了满足业主需求的宽敞干区,补充厨房内部空间狭长导致欠缺的收纳,在这块空间中设计了一块综合性操作台,以镜子做分割,一面岛台,另一面是干区,衔接厨房沿墙体设立的整面综合性收纳,既可以存放厨房用品,也方便出入家门时常用之物的取用。
▲充足的空间让卫生间干区可以完善的展开,白色大理石与白色柜体,是美观与收纳兼得。
厨 房
▲阳台空间纳入让厨房空间变得狭长,摒弃吊柜,让光线尽可能多的撒入室内。
主 卧
▲床头背景为通体黑色,上半部分是黑色的哑光烤漆长虹玻璃,细密的条纹从深沉中透出层次,如同低垂的夜幕为每夜的好梦提供庇护。
户型信息:
工程地址:中泰国际社区
设计风格:气质简约
案例格局:130㎡ / 3室2厅1厨1卫
设计:熹维设计
软装家具支持:INNOR'S家居
作品摄影:ingallery
设计材料:乳胶漆,KD板,大理石,墙砖,地板,熹维柜体定制……
&
客服
消息
收藏
下载
最近
























