查看完整案例


收藏

下载
#项目简介#
项目地址:南国明珠
项目风格:现代
建筑面积:165m2
项目设计:三伏设计
项目施工:三伏施工
项目摄影:梵镜空间摄影
总共花费:60万
本案的主人是一个四口之家,夫妻两人和两个帅气的小男孩。因为这是一套改善型住房,所以未来十年内基本都会生活在这个房子里。随着孩子的成长,家里的东西会逐渐增多,对于储物空间有着较高的要求。
而这个家的有趣之处,也正得益于此。根据空间尺寸现场制作的柜体,不仅让家做到收纳有序、通行自由,还是家中一道独特的装饰风景,颜值与实用并存。
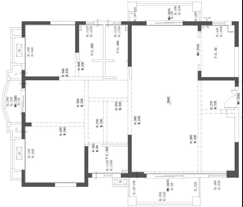
原始平面图
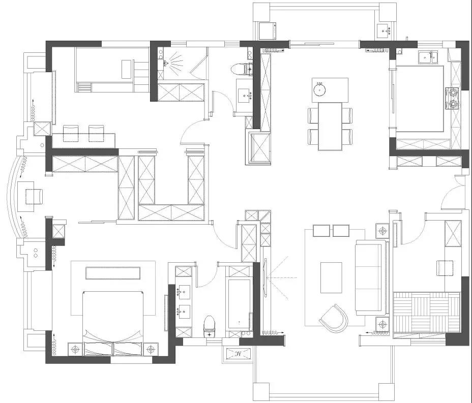
1.客厅:原户型有三个阳台,为了增加客厅的空间感,将相邻阳台与客厅连通,扩大客厅的活动区域,让两个孩子有足够的玩乐空间。 2.餐厅:将冰箱与餐厅储物柜结合,这样厨房可以空出更多空间给橱柜。餐桌旁边设置岛台,岛台下面可以储物,上面作为水吧使用。 3.主卧:靠近主卧的一个房间被改造成衣帽间,同时扩大卫生间,增加浴缸功能,闲暇时光也能泡泡澡,舒缓一天的疲惫。 4.儿童房:在结构上,将原有卫生间进行改动,一分为二,一部分给房间增加储物功能,一部分给公共卫生间作为淋浴空间。利用走道空间,划分出一个小型衣帽间,来满足两个孩子的收纳需求。
浅灰墙面,充沛的光线,首先便为室内营造出清爽与通透感。
阳台拓展进来,让客厅有了最佳的视觉延伸。坐在客厅江景一览无余,此情此景妙不可言。
在电视墙的设计上,以大理石营造出绅士格调,少量木色点缀出舒缓与柔和。
艺术品整齐地摆放于黑色不锈钢置物架上,常看的书籍也可以收纳于此,生活与设计,总能是能被很好的融合。
绒皮主沙发有着不错的触摸质感,造型敦厚让人亲近。
搭配两把线条纤细的懒人沙发椅,以及方正的茶几,就已经能烘托出低调的“高级感”。
放置于沙发上的kaws公仔装饰画,是不容错过的视觉重点。
法斗造型的纸巾盒,给居家生活带来一丝嬉皮的味道。
角落里的落地灯,无论开或是关都有一种归家的温暖感。
客厅没有太多的装饰品,整洁中又有力量。
在简约与素雅之间,一幅抽象主义装饰画,将人引向更深的意境。
餐厅利用墙面空间现场制作了餐边柜,并将冰箱做嵌入式处理,整个餐厅严谨有序,却也轻松悠然。
柜体采用封闭式与开放式结合,视觉上有着微妙的平衡。
穿插其中的隔层,既方便常用物品的取用,也可以摆放装饰品,形成一道“柜中风景”。
岛台与餐桌结合,岛台下方可以作为储物空间,上方又能作为水吧和西厨区使用。
线条简洁的铁艺吊灯弥补上方空白,黑色的烤漆金属材质,稳重中不失大气。
跳动的蝴蝶兰,放置于网购的零食罐中,意外的好看。
耀眼的黄与lomo风的时钟相映成趣,连时光也不舍在此处草草收场。
考虑到采光需求,厨房采用玻璃门。关上时隔绝油烟,拉开时形成开放的餐厨空间。
生活方式的多样选择,也是这个家的特色所在。
厨房三面皆是橱柜,收纳功能齐全。柜门颜色比客餐厅的木饰面深一个度。天然的木纹材质,表达出生活贴近自然的理念。
主卧采用灰色硬包增加卧室的神秘感,金属线条点缀提升空间层次和质感。
两边仅搭配一对床头柜,点到为止,不显拥挤压抑。
棕色的皮床贵气十足,与墨绿色的床品搭配后,时髦得不费力气。
一袭轻纱,一抹灯光,带来白天与夜晚的梦幻感。
开放式的衣柜,一目了然、拿取方便。内衣袜子等小件可以放置于下方抽屉中。
衣帽间与主卧相连,且坐拥超大的弧形落地窗,在此完成一整套造型之余,还能欣赏窗外美景。
高低床增加了趣味性,床底和楼梯都打造了储物区,童趣和实用一个都不能少。
蜘蛛侠沙发椅、威漫主题窗帘……让这里分分钟变身二娃的游乐园。
闲暇之余,男屋主喜欢在这里上网,一旁的榻榻米既能作为柜体使用,又能满足休息功能。
柜体都是根据现场尺寸进行定做,灰色、白色和木色的色调非常温馨。
一排高颜值的壁龛解决收纳问题,自此告别在墙上挂收纳筐的时代。
灰色大理石,营造出高级酒店的既视感。干净整洁,一如家的整个面貌。
客服
消息
收藏
下载
最近
























