查看完整案例


收藏

下载
&
这个案子的屋主他的职业是一位警官,平時工作压力很大,所以我们決定让整個空间都是以白色系為主,色彩心理学上,白色象征纯洁、干净、信任,很符合屋主工作的专业形象,而为了避免太大面积的白色会让人有开放的梳理感,所以适当地穿插木頭及局部灰、黑色點綴,平衡视觉感受。
沙发后方可以通过“一线之间”看到瓯江
客、餐厅串联,空间视野最大化,多面采光进入空间,通透明亮。白色电视背景墙的设计,弱化原始空间结构。
电视背墙通过有规律的抽缝,增强细节。
业主男模身材,哈哈哈。白色的背景,真的是拍照必备。
FLOS吊灯,杂乱又有规律的线路,着实有设计感。
橡木实木桌面及长凳,传统打家具的概念植入空间,保留原有阳台移门及阳台。
CASSINA经典单椅设计
主卧的阳台轨道主卧使用,餐厅外的阳台,划分为了设备阳台和休闲阳台,男业主偶尔抽烟,也能做到很好的隔离。
厨房外,增加西厨空间,增加家庭空间互通性。
中厨通过门的开合,完成与西厨的融合与打断。
石膏板吊顶,射灯与立面灯光结合,让整个使用空间没有暗角,延续公领域色调,放大空间感。
衣帽间看向卧室,镜面效果放大空间。
酒店式床头设计,这个靠背有点硬哈,需要一个大大的靠枕
这个面比较喜欢,窗帘完全打开可以看到客厅的阳台部分。
大大的落地窗,将室外所有的绿意引入室内;右边胖胖的就是我啦哈哈哈,男业主太帅。
主卫串联衣帽间,延续无边框设计,移门安装镜子,完成功能叠加,石膏板吊灯,使得空间不被打断,继续延伸。
儿童房有特殊的七字型窗户,设计师坚持把床头冲着门,做完没挨揍。
阳光洒在书桌上,书桌在床上面做延伸
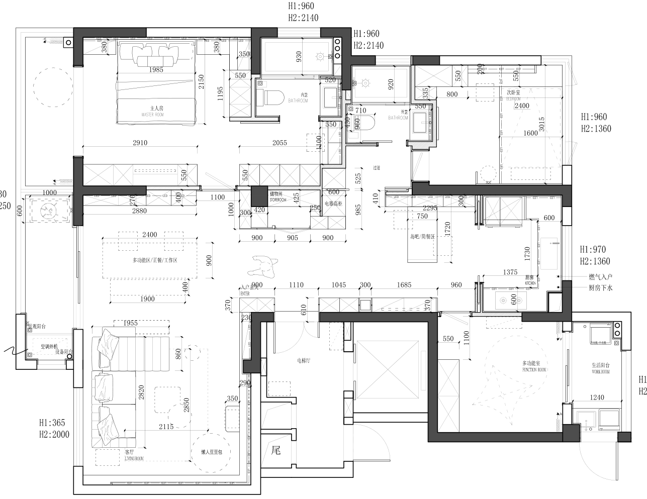
平面图
项目地址丨温州立体城私宅
户型面积丨145㎡
设计单位丨鸿泰室内设计顾问有限公司
施工单位丨老叶装饰
主要材料丨涂料/木作/地板/瓷砖
关于设计师
林贤圣
温州鸿泰室内设计-设计师
客服
消息
收藏
下载
最近














































