查看完整案例

收藏

下载

翻译
Architect:FJ55 Arquitetos
Location:São Paulo, State of São Paulo, Brazil; | ;View Map
Project Year:2024
Category:Bars;Restaurants
Located in the Itaim Bibi neighborhood in São Paulo, the newly inaugurated Italian cuisine restaurant, Il Carpaccio, has its design led by architects Felipe and Jordan Perez from Brazilian architecture company FJ55 Arquitetos.
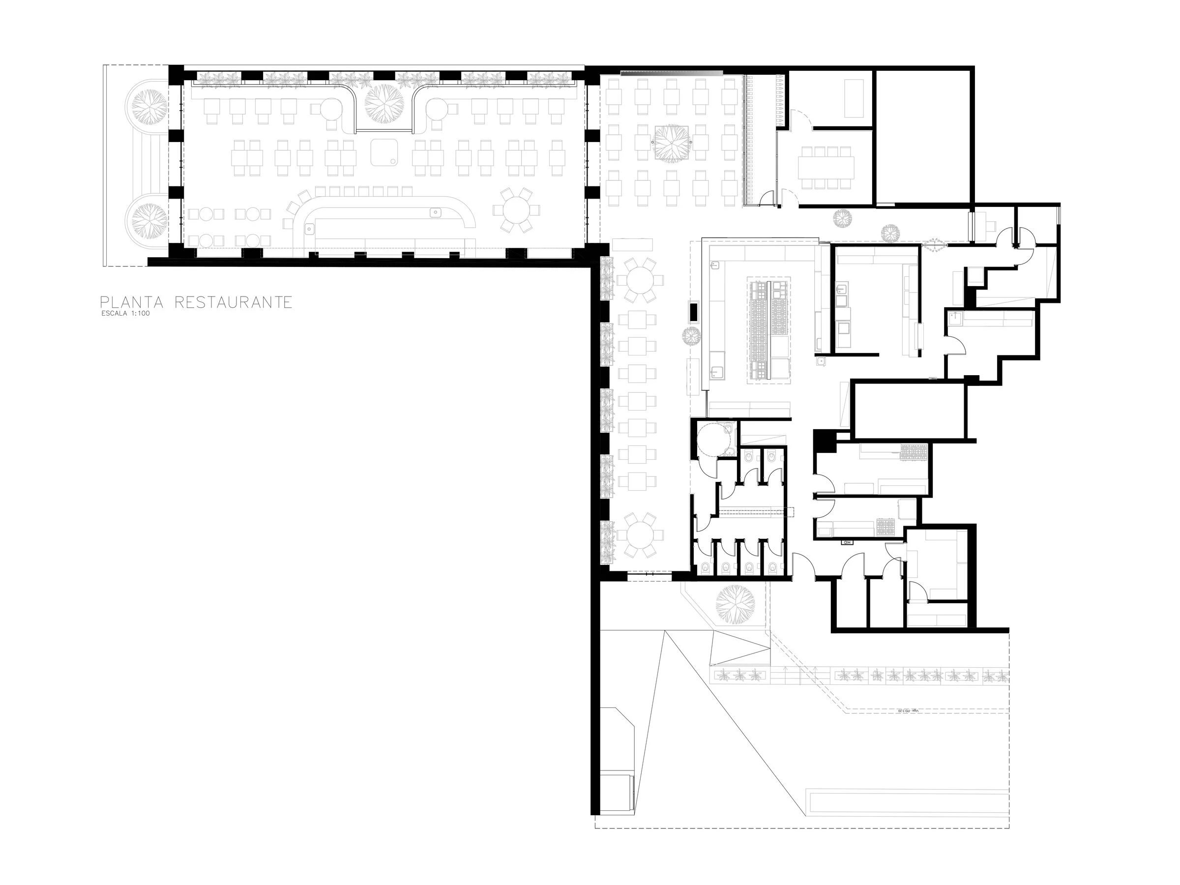
Situated on a busy thoroughfare, the compact plot with its irregular "L" shape surrounded by residential and commercial buildings of varying heights. On one side, there is a twelve-story office building, while on the opposite side, there is a single-story commercial property. Residential towers complete the surroundings at the rear. This context demanded creative solutions for organizing the space programmatically, ensuring privacy amidst intense daytime activity, and providing thermal comfort due to the region's lack of vegetation, resulting in elevated temperatures.
The restaurant divided into four zones, with three dedicated to public reception: the main and outdoor dining areas – positioned along the main axis defining the site; the support lounge – situated on the lateral side perpendicular to the main area; and the kitchen and technical areas – located at the rear of the lot with service access from the lateral road.
Inspired by the heritage of traditional Italian palaces from the 16th to 18th centuries, the new construction seeks a contemporary reinterpretation of classical elements such as arches, bricks, courtyards, and vegetation.
Respecting the plot topography and ensuring greater interior privacy, the building was elevated above the sidewalk. This achieved using slight steps made of exotic brown-red stone, referencing the Roman podium that elevates the structure from the ground. Olive trees frame the building on the sides.
The symmetrical facade features thick brick walls punctuated by three varying-height arches, each bordered by expansive glass windows. The openings at the ends are taller than the central one, which serves as the main entrance.
Upon entering, visitors encounter a vestibule shielded by fabric curtains, creating a welcoming scale and symbolizing a pause before entering the main dining area.
Inside, brick walls with large glazed arches and greenery evoke an ancient courtyard. The retractable roof covering the entire restaurant allows natural light to enter and enables patrons to enjoy the pleasant temperatures of a late afternoon outdoors.
The architectural approach, which reinterprets the simplicity of traditional Italian elements, complemented by refined finishes such as glossy Brazilian native ironwood panels, stainless steel sheets, and various shades of locally sourced natural stones.
In the main dining area, with a ceiling height of five meters, a generous bar occupies the right side, featuring arched vertical elements supporting illuminated shelves. On the opposite side, a garden bed runs through the space, divided by a centuries-old olive tree and tall vegetation in front of the arched windows, creating a constant feeling of being in a garden.
The wooden floor complemented by central areas paved with hydraulic tiles forming a carpet for table reception. Harmonizing with the earthy tones of the base, the furniture predominantly consists of solid wood, while tables feature natural stone bases and a linear sofa in caramel leather.
The lighting design avoids direct systems, favoring indirect lighting for enhanced visual comfort. Light channels have been installed above furniture pieces such as sofas, the bar counter, and garden beds. Small LED lamps above each table contribute to the restaurant's intimate atmosphere.
The second dining area serves as the central block housing the cellar and kitchen, both with visual permeability through stainless steel-clad walls, offering views into the main dining area. Meanwhile, the third area is a lateral space where brick walls with arches and planters filled with dense vegetation reappear. This area features a lower ceiling height, creating a more intimate ambiance ideal for quieter gatherings. The restaurant accommodates up to 140 people.
The kitchen, integrated with a volume of stainless steel and glass framing, allows customers to witness the preparation of dishes.
In the restrooms, inspired by Italian frescoes and Brazilian flora and fauna, walls and ceilings adorned with a painting, creating a welcoming atmosphere.
Location: São Paulo – SP
BrazilYear: 2024
Built Area: 500m²
Client: Il Carpaccio Restaurant
Architecture: FJ55 Arquitetos
Interior Design: FJ55 Arquitetos
Responsible Architects: Felipe Castilho Perez, Jordan Castilho Perez
Design Team: Mariana Barros Torigoshi, Clara Santana Gardelin, Kamila Mathias
Lighting Design: Lightworks Lighting
Landscape Design: Flora Nativa Vale
Construction Company: LK2 Construtora
Text/Communication: Matheus Pereira
Photographs: André Mortatti
Manufacturers: Uniflex Gabriel (Retractable roof), Halton do Brasil (Kitchen exhaust system), Tramontina (Cooking systems), Josper (Wood-fired oven), EDR Adegas (Wine cellars), Nykan do Brasil (Stainless steel cladding), Marmoraria Montblanc (Marbles and quartzites), Dallepiagge (Hydraulic tiles), Marcenaria MK (Carpentry), Ville Decorações (Benches and cushions), Lightworks Lighting (Lighting fixtures), J Pompeo (Olive trees)
▼项目更多图片
客服
消息
收藏
下载
最近







































